岡島ビル
印刷
物件写真
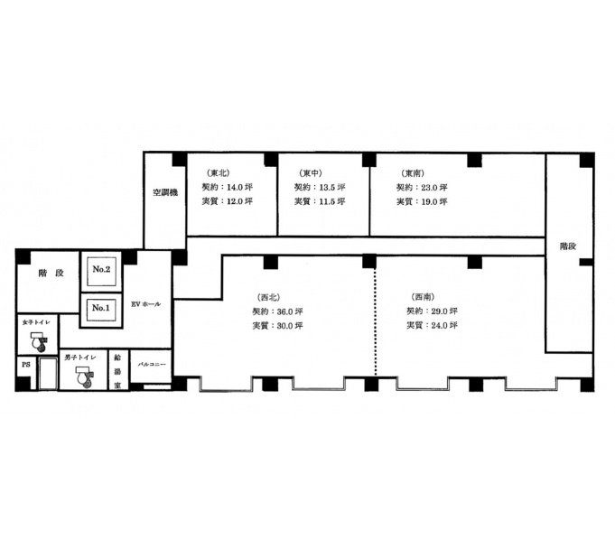
区画図(基準階)
物件概要
| 住所 | 大阪府大阪市西区西本町1-2-14 | 総階数 | 9階/地下1階 |
|---|---|---|---|
| 最寄駅 |
大阪メトロ四つ橋線本町駅 徒歩1分 大阪メトロ御堂筋線本町駅 徒歩3分 大阪メトロ堺筋線堺筋本町駅 徒歩8分 |
延床面積/基準階面積 | 1520.00坪 / 120.00坪 |
| 建物構造 | 鉄筋コンクリート造 | ||
| 竣工年月 | 1974年11月 | 備考 | - |
| リニューアル | 2014年3月 吸収冷温水機 2013年11月 エアコン | ||
基準階面積は共用部面積を含む場合がございます。
物件設備・条件
| エレベーター | あり 総台数 3基 うち荷物用EV 1基 |
トイレ | 男女別 ウォシュレットあり |
|---|---|---|---|
| 空調 | 個別空調 24時間使用可 | 正面玄関 開放時間 |
- |
| 天井高 | 2400mm | 駐車場 | 駐車場あり |
| フロア | - | 駐輪場 | - |
| セキュリティー | 機械警備 | 貸会議室 | あり |
| BCP対応 | - | リフレッシュルーム | なし |
| 立地 | 駅3分以内 大通り沿い |
店舗 | - |
| ビル規模 | 大型ビル (貸床100坪〜200坪) |
建物種別 | オフィスビル |

- 総合評価
-




3
評価の見方
- 立地
- 駅からビルまでの利便性やコンビニや郵便局などの周辺環境で評価がついています。
- 共用
- ビルの共⽤部(エントランス、外壁などのリニューアル、セキュリー他)共⽤施設の充実度で評価がついています。
- 専有
- 貸室内の設備(天井⾼・OAフロア・個別空調など)で評価がついています。
- BCP対応
- 新耐震基準や地震時強い免震・制震構造・停電時に必要な⾮常⽤電源対応などで評価がついています。
- ステージ君
- オフィステージ コンシェルジュ ステージ君のズバリの評価になります。

岡島ビルは、大きく取られた窓が目を引くオフィスビルです。四つ橋筋沿いの角地に建っていることから視認性はバツグン!初めて来社されたお客様でも見つけやすいビルとなっています。「本町駅」から歩いて1分という駅近な立地も嬉しいポイント。毎日の通勤がラクチンなのはもちろん、仕事で外出するときにもとっても便利です!ビルには2つのエレベーターがあるため、朝の通勤ラッシュでも焦ることはありません。オフィスの床は、OAフロアです。配線をすっきり収納できるので、たくさんの機器を扱う職場でも自由なオフィスレイアウトが実現できます!空調はそれぞれの部屋で自由に設定できるため、仕事中は常に快適。セキュリティーもバッチリなので、いつでも安心して仕事に取り組めます!
評価詳細を表示
- 立地
-




- 共用
-




- 専有
-




- BCP対応
-




- ステージ君
-





非公開とは?
賃料が「非公開」の物件は、オーナー様のご希望で賃料が非公開となっております。
賃料の目安についてはお気軽にお問い合わせください。
- 西本町の大型ビルの平均坪単価
- 9,189円






岡島ビルは、1972年1月に竣工したオフィスビルです。大阪市西区西本町1-2-14にある鉄筋コンクリート造地上9階建のオフィスビルで、大阪メトロ四つ橋線「本町駅」26番出口の隣に隣接してます。ビルの外観は、白い外壁が特徴的です。エントランスの内装も、白を基調としています。ビル内にはエレベーターが2基完備され、混雑しがちな朝の通勤時にもスムーズに利用できます。室内はOAフロアに対応可能で、煩雑になりがちなOA機器の配線や電話線を床下に収納することができます。各階共用部にはウォシュレット付き男女別トイレや給湯室を完備。また、入居テナント専用の貸会議室も完備されています。空調は、個別空調です。駐車場は、専用の駐車場が完備されています。ビルは24時間体制の機械警備によって管理されており、セキュリティー面も万全です。