関電不動産西本町ビル(旧)JEI西本町ビル
印刷
物件概要
| 住所 | 大阪府大阪市西区阿波座1-3-15 | 総階数 | 11階/地下1階 |
|---|---|---|---|
| 最寄駅 |
大阪メトロ四つ橋線本町駅 徒歩2分 大阪メトロ御堂筋線本町駅 徒歩5分 大阪メトロ長堀鶴見緑地線心斎橋駅 徒歩7分 |
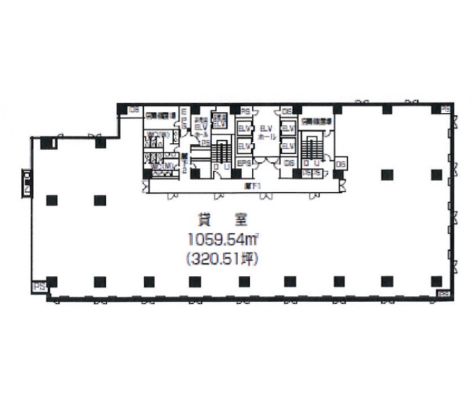
延床面積/基準階面積 | 5085.72坪 / 320.51坪 |
| 建物構造 | 鉄骨鉄筋コンクリート造 | ||
| 竣工年月 | 1988年3月 | 備考 | - |
| リニューアル | - | ||
基準階面積は共用部面積を含む場合がございます。
物件設備・条件
| エレベーター | あり 総台数 5基 うち荷物用EV 1基 |
トイレ | 男女別 ウォシュレットあり |
|---|---|---|---|
| 空調 | セントラル空調 平 日 9 : 00 〜 18 : 00 土 曜 9 : 00 〜 12 : 30 日・祝 - : - 〜 - : - |
正面玄関 開放時間 |
平 日 8 : 00 〜 20 : 00 土 曜 8 : 00 〜 17 : 00 日・祝 - : - 〜 - : - |
| 天井高 | 2530mm | 駐車場 | 駐車場あり |
| フロア | OAフロアあり 50mm | 駐輪場 | 駐輪場あり |
| セキュリティー | 機械警備 | 貸会議室 | なし |
| BCP対応 | 新耐震基準適合 | リフレッシュルーム | あり |
| 立地 | 駅3分以内 大通り沿い |
店舗 | - |
| ビル規模 | 大規模ビル (延床3,000坪以上or貸床200坪以上) |
建物種別 | オフィスビル |

- 総合評価
-




4
評価の見方
- 立地
- 駅からビルまでの利便性やコンビニや郵便局などの周辺環境で評価がついています。
- 共用
- ビルの共⽤部(エントランス、外壁などのリニューアル、セキュリー他)共⽤施設の充実度で評価がついています。
- 専有
- 貸室内の設備(天井⾼・OAフロア・個別空調など)で評価がついています。
- BCP対応
- 新耐震基準や地震時強い免震・制震構造・停電時に必要な⾮常⽤電源対応などで評価がついています。
- ステージ君
- オフィステージ コンシェルジュ ステージ君のズバリの評価になります。

JEI西本町ビルは、タイル貼りの外壁と横に広く取られた窓が目を引くオフィスビルです。四つ橋筋沿いの角地に建っていることから視認性はバツグン!初めて来社されたお客様でも見つけやすいビルとなっています。1988年に建てられたビルであるため耐震基準はしっかりクリア!万が一地震がきても安心です!「本町駅」から歩いて1分という駅近な立地も嬉しいポイント。毎日の通勤がラクチンなのはもちろん、仕事で外出するときにもとっても便利です!オフィスの床はOAフロアになっているので、たくさんの機器を扱う職場でも配線が邪魔になりません。空調はそれぞれの部屋で自由に調節できる個別空調。体調や気温に合わせて温度調節ができるため、いつでも快適な環境で仕事に取り組めます!
- 立地
-




- 共用
-




- 専有
-




- BCP対応
-




- ステージ君
-





非公開とは?
賃料が「非公開」の物件は、オーナー様のご希望で賃料が非公開となっております。
賃料の目安についてはお気軽にお問い合わせください。
- 阿波座・西長堀の大規模ビルの平均坪単価
- 9,078円






JEI西本町ビルは、1988年3月に竣工したオフィスビルです。大阪市西区阿波座1-3-15にあり、鉄骨鉄筋コンクリート造地上11階、地下1階、塔屋2階建のオフィスビルとなっています。最寄駅である大阪メトロ四つ橋線「本町駅」から徒歩1分の距離に位置しており、通勤や外出の際の利便性に優れています。ビルの外壁は白を基調とし、四つ橋筋に面していることから視認性にも優れています。エレベーターは常用4基、非常用1基の計5基設置されているため、時間帯に左右されずスムーズに利用できます。新耐震基準を満たしていることから、地震などの災害時にも一定の安全性が確保されています。天井高は2,530mmで、床面はOAフロアに対応。共用部には男女別トイレが設けられており、ウォシュレットも完備されています。空調は個別空調が導入されているため、各オフィスで細かな温度設定が可能です。