AXIS SOUTH四ツ橋ビル
印刷
物件写真
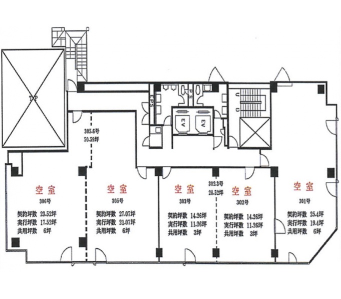
区画図(基準階)
物件概要
| 住所 | 大阪府大阪市西区北堀江1-2-27 | 総階数 | 10階/地下1階 |
|---|---|---|---|
| 最寄駅 |
大阪メトロ四つ橋線四ツ橋駅 徒歩1分 大阪メトロ御堂筋線心斎橋駅 徒歩3分 大阪メトロ長堀鶴見緑地線西大橋駅 徒歩4分 |
延床面積/基準階面積 | 1153.00坪 / 98.00坪 |
| 建物構造 | 鉄骨造 | ||
| 竣工年月 | 1991年12月 | 備考 | - |
| リニューアル | - | ||
基準階面積は共用部面積を含む場合がございます。
物件設備・条件
| エレベーター | あり 総台数 2基 |
トイレ | 男女別 |
|---|---|---|---|
| 空調 | 個別空調 24時間使用可 | 正面玄関 開放時間 |
平 日 7 : 00 〜 20 : 00 土 曜 - : - 〜 - : - 日・祝 - : - 〜 - : - |
| 天井高 | - | 駐車場 | 駐車場あり |
| フロア | - | 駐輪場 | - |
| セキュリティー | 機械警備 | 貸会議室 | - |
| BCP対応 | 新耐震基準適合 | リフレッシュルーム | なし |
| 立地 | 駅3分以内 | 店舗 | - |
| ビル規模 | 中型ビル (貸床50坪〜100坪) |
建物種別 | オフィスビル |

- 総合評価
-




3.5
評価の見方
- 立地
- 駅からビルまでの利便性やコンビニや郵便局などの周辺環境で評価がついています。
- 共用
- ビルの共⽤部(エントランス、外壁などのリニューアル、セキュリー他)共⽤施設の充実度で評価がついています。
- 専有
- 貸室内の設備(天井⾼・OAフロア・個別空調など)で評価がついています。
- BCP対応
- 新耐震基準や地震時強い免震・制震構造・停電時に必要な⾮常⽤電源対応などで評価がついています。
- ステージ君
- オフィステージ コンシェルジュ ステージ君のズバリの評価になります。

AXIS SOUTH四ツ橋ビルは1991年竣工(新耐震基準)のビルです。最寄駅は地下鉄四ツ橋線「四ツ橋駅」徒歩1分、御堂筋線「心斎橋駅」徒歩3分という立地にあり、少し歩けば、「JR難波駅」や千日前線もあり、電車通勤にも便利です。ガラスウォールで、スタイリッシュな外観で、視認性も抜群!!東・北角に位置しており、道のご案内もしやすいのでエステやネイル・物販店などの、来店型の店舗なども多くご入居されております。エレベーターも2基あるので、朝・夕方の時間帯も待ち時間が少なくスムーズ!!1Fにはオシャレなカフェもあり、アメリカ村・堀江との中間にあるので飲食店も多く便利な環境です。区画も10坪台〜30坪台が多く新規開業や個人開業にも初期費用が少ないのでおすすめの物件です。
評価詳細を表示
- 立地
-




- 共用
-




- 専有
-




- BCP対応
-




- ステージ君
-





非公開とは?
賃料が「非公開」の物件は、オーナー様のご希望で賃料が非公開となっております。
賃料の目安についてはお気軽にお問い合わせください。
- 四ツ橋・堀江の中型ビルの平均坪単価
- 9,241円





