本町YSビル
印刷
物件概要
| 住所 | 大阪府大阪市中央区本町4-5-18 | 総階数 | 11階/地下1階 |
|---|---|---|---|
| 最寄駅 |
大阪メトロ御堂筋線本町駅 徒歩2分 大阪メトロ四つ橋線本町駅 徒歩2分 大阪メトロ中央線本町駅 徒歩3分 |
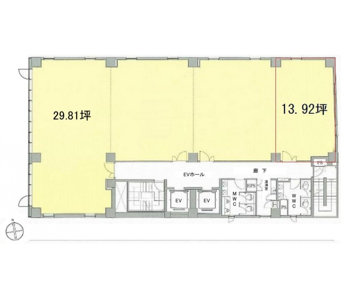
延床面積/基準階面積 | 1105.79坪 / 83.03坪 |
| 建物構造 | 鉄筋コンクリート造 | ||
| 竣工年月 | 2008年8月 | 備考 | - |
| リニューアル | - | ||
基準階面積は共用部面積を含む場合がございます。
物件設備・条件
| エレベーター | あり 総台数 2基 |
トイレ | 男女別 ウォシュレットあり |
|---|---|---|---|
| 空調 | 個別空調 24時間使用可 | 正面玄関 開放時間 |
平 日 7 : 30 〜 21 : 00 土 曜 7 : 30 〜 21 : 00 日・祝 7 : 30 〜 21 : 00 |
| 天井高 | 2650mm | 駐車場 | 駐車場あり 総台数 7台 |
| フロア | OAフロアあり 50mm | 駐輪場 | - |
| セキュリティー | 機械警備 | 貸会議室 | - |
| BCP対応 | 新耐震基準適合 | リフレッシュルーム | なし |
| 立地 | 駅3分以内 | 店舗 | - |
| ビル規模 | 中型ビル (貸床50坪〜100坪) |
建物種別 | オフィスビル |

- 総合評価
-




4
評価の見方
- 立地
- 駅からビルまでの利便性やコンビニや郵便局などの周辺環境で評価がついています。
- 共用
- ビルの共⽤部(エントランス、外壁などのリニューアル、セキュリー他)共⽤施設の充実度で評価がついています。
- 専有
- 貸室内の設備(天井⾼・OAフロア・個別空調など)で評価がついています。
- BCP対応
- 新耐震基準や地震時強い免震・制震構造・停電時に必要な⾮常⽤電源対応などで評価がついています。
- ステージ君
- オフィステージ コンシェルジュ ステージ君のズバリの評価になります。

本町YSビルは、御堂筋と四ツ橋筋に挟まれた中央区本町4丁目に建つ地上11階地下1階建てのオフィスビルです。2008年竣工の新耐震基準適合ビルで、コンクリート打ちっぱなしの外壁と淡いブルーに見えるガラスカーテンウォールの外観が、近代的で清潔感ある印象を与えます。大阪メトロ御堂筋線・四つ橋線・中央線の3路線が乗り入れる「本町駅」から徒歩3分という好立地。従業員様の通勤や営業活動、新規人材採用に際しても大変有利な環境です。オフィススペースはワンフロア約83坪で、分割した区画も使い勝手の良い四角形。高さ50mmのフリーアクセスフロアなのでレイアウトも自在です。空調は個別方式で細かな温度調整が可能、ウォシュレット付きの男女別トイレが完備され、女性の多い企業様でも快適にご使用いただけます。ビル周辺にはコンビニ、カフェ、飲食店などが多数あり、お昼の買い出しや外食の場所に困る心配もありません。機械式駐車場が設備され、南北の移動には四つ橋筋、東西の移動には本町通が近い環境なので、営業に車をお使いの企業様にもおすすめです。
- 立地
-




- 共用
-




- 専有
-




- BCP対応
-




- ステージ君
-





非公開とは?
賃料が「非公開」の物件は、オーナー様のご希望で賃料が非公開となっております。
賃料の目安についてはお気軽にお問い合わせください。
- 本町の中型ビルの平均坪単価
- 9,084円






本町YSビルは、2008年8月に竣工したオフィスビルです。大阪市中央区本町4-5-18にある鉄筋コンクリート造地上11階、地下1階建のオフィスビルで、大阪メトロ御堂筋線「本町駅」から徒歩2分の距離にあります。ビルの外観は、通りに面した一面がガラス張りとなっている外壁が特徴的です。エントランスの内装は、グレーを基調としています。ビル内にはエレベーターが2基完備され、混雑しがちな朝の通勤時にもスムーズに利用できます。室内はOAフロア対応で、煩雑になりがちなOA機器の配線や電話線を床下に収納することが可能です。天井高は2,650mmです。各階共用部には、ウォシュレット付き男女別トイレや給湯室を完備。空調は、個別空調です。正面玄関の開放時間は全日7時30~21時00分となっています。駐車場は、専用の駐車場が完備されています。ビルは機械警備によって管理されており、セキュリティー面も万全です。