マツモト産業ビル
印刷
物件概要
| 住所 | 大阪府大阪市西区靱本町1-12-6 | 総階数 | 14階 |
|---|---|---|---|
| 最寄駅 |
大阪メトロ四つ橋線本町駅 徒歩2分 大阪メトロ御堂筋線本町駅 徒歩4分 大阪メトロ中央線本町駅 徒歩4分 |
延床面積/基準階面積 | 2216.52坪 / - |
| 建物構造 | 鉄骨造 | ||
| 竣工年月 | 1992年7月 | 備考 | - |
| リニューアル | - | ||
基準階面積は共用部面積を含む場合がございます。
物件設備・条件
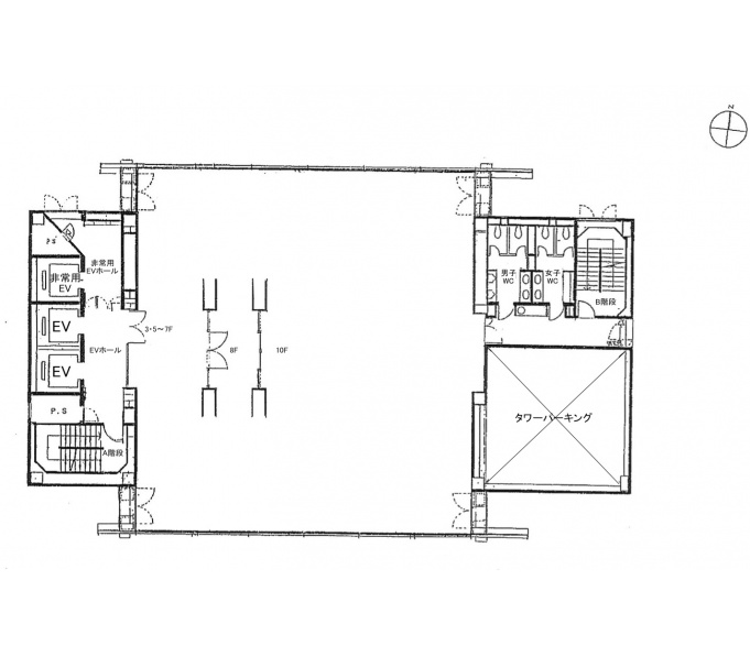
| エレベーター | あり 総台数 3基 うち荷物用EV 1基 |
トイレ | 男女別 ウォシュレットあり |
|---|---|---|---|
| 空調 | 個別空調 24時間使用可 | 正面玄関 開放時間 |
- |
| 天井高 | - | 駐車場 | 駐車場あり |
| フロア | OAフロアあり 50mm | 駐輪場 | - |
| セキュリティー | 機械警備 | 貸会議室 | あり |
| BCP対応 | 新耐震基準適合 | リフレッシュルーム | なし |
| 立地 | 駅3分以内 大通り沿い |
店舗 | - |
| ビル規模 | - | 建物種別 | オフィスビル |

- 総合評価
-




4
評価の見方
- 立地
- 駅からビルまでの利便性やコンビニや郵便局などの周辺環境で評価がついています。
- 共用
- ビルの共⽤部(エントランス、外壁などのリニューアル、セキュリー他)共⽤施設の充実度で評価がついています。
- 専有
- 貸室内の設備(天井⾼・OAフロア・個別空調など)で評価がついています。
- BCP対応
- 新耐震基準や地震時強い免震・制震構造・停電時に必要な⾮常⽤電源対応などで評価がついています。
- ステージ君
- オフィステージ コンシェルジュ ステージ君のズバリの評価になります。

マツモト産業ビルは、四ツ橋筋と本町通が交差する信濃橋交差点から西へ2ブロック目、靭本町1丁目に建つオフィスビルです。本町通に面して建つ14階建で、1992年7月竣工なので新耐震基準に適合しています。最寄り駅は大阪メトロ四つ橋線「本町駅」で、四つ橋線・御堂筋線・中央線の28号出入り口から徒歩2分の立地です。ビルにはタワー式の駐車場が設備され、出入り口は静かな通りに面しているため出入りもスムーズに行えます。東西を行き来できる本町通、南北を結ぶなにわ筋のいずれにもすぐに出られ、車を使われる企業さまにも大変有利な環境です。また、周囲にコインパーキングも点在しており、車での来客時も安心です。ビルに入ると天井の高い広々としたエントランスに3基のエレベーターがあり、通勤ラッシュやお昼時の混み合う時間帯でもストレスなく利用できます。空調は全館個別空調方式、男女別でウォシュレット付きトイレが完備、さらに各階ワンフロア1テナント仕様となっているため共用部を他社と共有することなく専有できます。そのためプライベートな空間をしっかりと確保できるのが魅力で、女性の多い企業様には特におすすめの物件です。周辺にはコンビニや飲食店も複数あり、従業員様がランチの場所に困る心配はなさそうです。また、ビルの北側には都会のオアシスと呼ぶにふさわしい「靱公園」があるため、バラ園やケヤキ並木といった四季折々の美しい自然美を楽しめます。気候の良い時期には公園でランチなど、就業中の気分転換を図ることもでき、業務効率アップが望めます。
- 立地
-




- 共用
-




- 専有
-




- BCP対応
-




- ステージ君
-





非公開とは?
賃料が「非公開」の物件は、オーナー様のご希望で賃料が非公開となっております。
賃料の目安についてはお気軽にお問い合わせください。
- 西本町の平均坪単価
- 8,888円






