KASUGA BUILD
印刷
物件写真
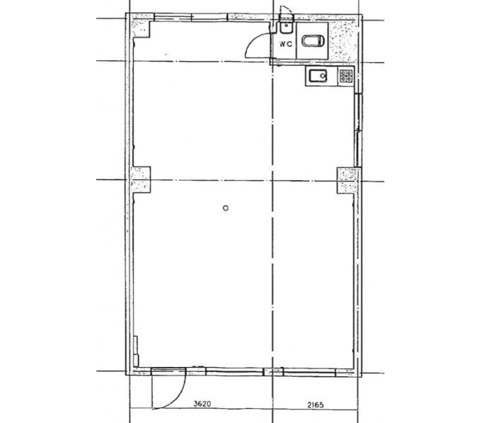
区画図(基準階)
物件概要
| 住所 | 大阪府大阪市西区江戸堀1-22-5 | 総階数 | 5階 |
|---|---|---|---|
| 最寄駅 |
大阪メトロ四つ橋線肥後橋駅 徒歩4分 京阪中之島線渡辺橋駅 徒歩5分 大阪メトロ四つ橋線本町駅 徒歩7分 |
延床面積/基準階面積 | - / 15.44坪 |
| 建物構造 | 鉄筋コンクリート造 | ||
| 竣工年月 | 1989年7月 | 備考 | - |
| リニューアル | - | ||
基準階面積は共用部面積を含む場合がございます。
物件設備・条件
| エレベーター | なし | トイレ | 混合 |
|---|---|---|---|
| 空調 | 個別空調 24時間使用可 | 正面玄関 開放時間 |
- |
| 天井高 | - | 駐車場 | 駐車場なし |
| フロア | - | 駐輪場 | - |
| セキュリティー | 機械警備 | 貸会議室 | - |
| BCP対応 | 新耐震基準適合 | リフレッシュルーム | なし |
| 立地 | - | 店舗 | - |
| ビル規模 | 小型ビル (貸床〜50坪) |
建物種別 | オフィスビル マンション・SOHOタイプ |

- 総合評価
-




2.5
評価の見方
- 立地
- 駅からビルまでの利便性やコンビニや郵便局などの周辺環境で評価がついています。
- 共用
- ビルの共⽤部(エントランス、外壁などのリニューアル、セキュリー他)共⽤施設の充実度で評価がついています。
- 専有
- 貸室内の設備(天井⾼・OAフロア・個別空調など)で評価がついています。
- BCP対応
- 新耐震基準や地震時強い免震・制震構造・停電時に必要な⾮常⽤電源対応などで評価がついています。
- ステージ君
- オフィステージ コンシェルジュ ステージ君のズバリの評価になります。

KASUGA BUILDは、打ちっぱなしになっているコンクリートの外壁と青く塗装された柵が目を引くオフィスビルです。エントランスの内装は、白を基調とした落ち着いた雰囲気となっています。1988年に建てられたビルであるため耐震基準はしっかりクリア!万が一地震がきても安心です!歩いて5分ほどの距離には、「肥後橋駅」があります。オフィスは、1フロアに1テナントの入居となっています。インターネット回線は光ファイバー!高速通信で快適なインターネット環境を実現しています。空調はそれぞれの部屋で自由に設定できる個別空調。気温や体調に合わせて最適な温度に調節できるため、仕事中は常に快適な環境を保てます!セキュリティーもバッチリなので、いつでも安心して仕事に取り組めます!
評価詳細を表示
- 立地
-




- 共用
-




- 専有
-




- BCP対応
-




- ステージ君
-





非公開とは?
賃料が「非公開」の物件は、オーナー様のご希望で賃料が非公開となっております。
賃料の目安についてはお気軽にお問い合わせください。
- 肥後橋の小型ビルの平均坪単価
- 8,520円






KASUGA BUILDは、1988年7月に竣工したオフィスビルです。大阪市西区江戸堀1-22-5にある鉄筋コンクリート造地上5階建のオフィスビルで、大阪メトロ四つ橋線「肥後橋駅」から徒歩5分の距離にあります。ビルの外観は、コンクリート打ちっぱなしの外壁とバルコニーの青い柵が特徴的です。エントランスの内装は、白を基調としています。ビルは新耐震基準を満たした設計となっており、万が一の災害時にも一定の安全性を確保しています。1フロアにつき1つのテナントが入居可能で、室内は光ファイバー引込済です。各階共用部には、トイレや給湯室を完備。空調は個別空調で、各オフィスで細かな温度設定が可能です。ビルは機械警備によって管理されており、セキュリティー面も万全です。