マルトモビル
印刷
物件写真
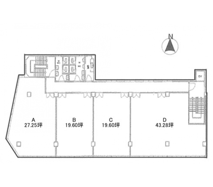
区画図(基準階)
物件概要
| 住所 | 大阪府大阪市西区靱本町3-6-8 | 総階数 | 6階 |
|---|---|---|---|
| 最寄駅 |
大阪メトロ千日前線阿波座駅 徒歩2分 大阪メトロ中央線阿波座駅 徒歩2分 大阪メトロ長堀鶴見緑地線西長堀駅 徒歩8分 |
延床面積/基準階面積 | - / - |
| 建物構造 | 鉄筋コンクリート造 | ||
| 竣工年月 | 1970年2月 | 備考 | - |
| リニューアル | 2011年1月 リニューアル工事 | ||
基準階面積は共用部面積を含む場合がございます。
物件設備・条件
| エレベーター | あり 総台数 1基 |
トイレ | 男女別 ウォシュレットあり |
|---|---|---|---|
| 空調 | 個別空調 24時間使用可 | 正面玄関 開放時間 |
- |
| 天井高 | - | 駐車場 | 駐車場あり |
| フロア | OAフロアなし | 駐輪場 | - |
| セキュリティー | - | 貸会議室 | - |
| BCP対応 | - | リフレッシュルーム | なし |
| 立地 | 駅3分以内 | 店舗 | - |
| ビル規模 | - | 建物種別 | オフィスビル |

- 総合評価
-




2.5
評価の見方
- 立地
- 駅からビルまでの利便性やコンビニや郵便局などの周辺環境で評価がついています。
- 共用
- ビルの共⽤部(エントランス、外壁などのリニューアル、セキュリー他)共⽤施設の充実度で評価がついています。
- 専有
- 貸室内の設備(天井⾼・OAフロア・個別空調など)で評価がついています。
- BCP対応
- 新耐震基準や地震時強い免震・制震構造・停電時に必要な⾮常⽤電源対応などで評価がついています。
- ステージ君
- オフィステージ コンシェルジュ ステージ君のズバリの評価になります。

「総合評価」は「立地」「共有」「専有」「BCP対応」「ステージ君」の評価の総合評価になります。
内容の詳細は「評価詳細を表示」からご確認ください。
また、「評価の見方」から各個別評価の概要を見ることができます。
評価詳細を表示
- 立地
-




- 共用
-




- 専有
-




- BCP対応
-




- ステージ君
-





非公開とは?
賃料が「非公開」の物件は、オーナー様のご希望で賃料が非公開となっております。
賃料の目安についてはお気軽にお問い合わせください。
- 西本町の平均坪単価
- 8,888円






