江野ビル
印刷
物件写真
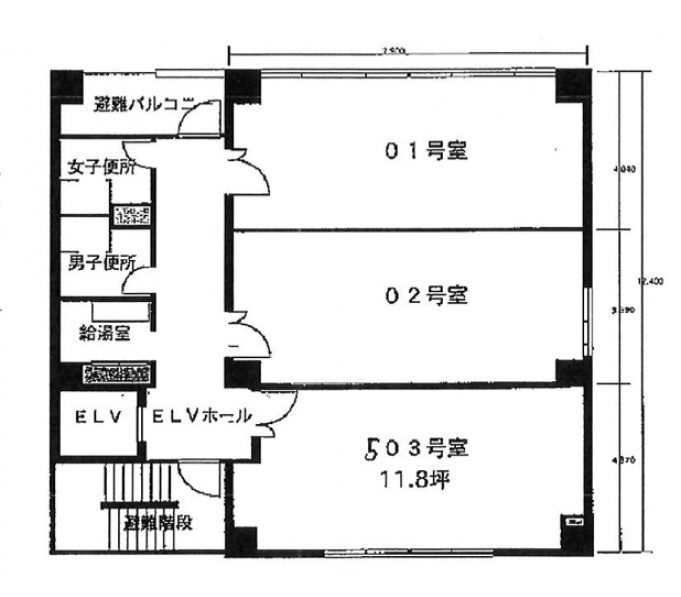
区画図(基準階)
物件概要
| 住所 | 大阪府大阪市西区阿波座1-14-16 | 総階数 | 9階 |
|---|---|---|---|
| 最寄駅 |
大阪メトロ四つ橋線本町駅 徒歩4分 大阪メトロ中央線阿波座駅 徒歩5分 大阪メトロ長堀鶴見緑地線西大橋駅 徒歩6分 |
延床面積/基準階面積 | - / 33.50坪 |
| 建物構造 | 鉄筋コンクリート造 | ||
| 竣工年月 | 1991年6月 | 備考 | - |
| リニューアル | - | ||
基準階面積は共用部面積を含む場合がございます。
物件設備・条件
| エレベーター | あり 総台数 1基 |
トイレ | 男女別 ウォシュレットあり |
|---|---|---|---|
| 空調 | 個別空調 24時間使用可 | 正面玄関 開放時間 |
平 日 8 : 00 〜 23 : 00 土 曜 8 : 00 〜 23 : 00 日・祝 8 : 00 〜 23 : 00 |
| 天井高 | 2500mm | 駐車場 | 駐車場なし |
| フロア | OAフロアなし | 駐輪場 | 駐輪場なし |
| セキュリティー | 機械警備 | 貸会議室 | なし |
| BCP対応 | 新耐震基準適合 | リフレッシュルーム | なし |
| 立地 | - | 店舗 | - |
| ビル規模 | 小型ビル (貸床〜50坪) |
建物種別 | オフィスビル 商業ビル |

- 総合評価
-




3
評価の見方
- 立地
- 駅からビルまでの利便性やコンビニや郵便局などの周辺環境で評価がついています。
- 共用
- ビルの共⽤部(エントランス、外壁などのリニューアル、セキュリー他)共⽤施設の充実度で評価がついています。
- 専有
- 貸室内の設備(天井⾼・OAフロア・個別空調など)で評価がついています。
- BCP対応
- 新耐震基準や地震時強い免震・制震構造・停電時に必要な⾮常⽤電源対応などで評価がついています。
- ステージ君
- オフィステージ コンシェルジュ ステージ君のズバリの評価になります。

江野ビルは、通し目地の外観が目を引くオフィスビルです。1990年に建てられたビルなので耐震基準はしっかりクリア!万が一地震がきても安心です。歩いて4分の距離には、「本町駅」があります。御堂筋線と中央線、四つ橋線の3路線が利用できるため、通勤はもちろん仕事で外出するときにもとっても便利です!インターネット回線は、光ファイバー!高速通信でストレスのない快適なネット環境が実現できます。トイレは男女別となっており、プライバシーもしっかり確保!男性、女性ともに安心してご利用いただけます。空調はそれぞれの部屋で自由に温度が調節できる個別空調。気温や体調に合わせて最適な室温が保てるため、仕事中は常に快適です。ビルは機械警備で24時間守られていることから、いつでも安心して仕事に取り組めます!
評価詳細を表示
- 立地
-




- 共用
-




- 専有
-




- BCP対応
-




- ステージ君
-





非公開とは?
賃料が「非公開」の物件は、オーナー様のご希望で賃料が非公開となっております。
賃料の目安についてはお気軽にお問い合わせください。
- 阿波座・西長堀の小型ビルの平均坪単価
- 8,131円






江野ビルは、1990年5月に竣工したオフィスビルです。大阪市西区阿波座1-14-16にあり、鉄骨造地上9階建のオフィスビルとなっています。最寄駅である大阪メトロ四つ橋線「本町駅」からは、徒歩4分の距離に位置しています。ビルの外観は、タイル張りの白い外壁が特徴的です。エレベーターは1基設置。新耐震基準を満たしていることから、地震などの災害時にも一定の安全性が確保されています。光ファイバーは引込済です。共用部には男女別のトイレが設けられているほか、給湯室も完備されています。空調は個別空調が導入されており、各オフィスで細かな温度設定が可能です。24時間対応の機械警備によって管理されていることから、セキュリティー面も万全です。