大阪アニックスビル
印刷
物件概要
| 住所 | 大阪府大阪市西区立売堀1-14-20 | 総階数 | 11階/地下2階 |
|---|---|---|---|
| 最寄駅 |
大阪メトロ四つ橋線本町駅 徒歩5分 大阪メトロ長堀鶴見緑地線西大橋駅 徒歩4分 大阪メトロ長堀鶴見緑地線心斎橋駅 徒歩7分 |
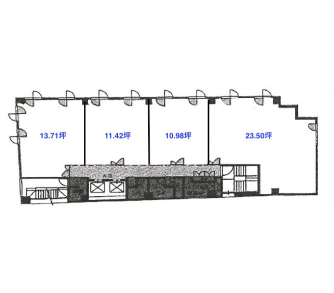
延床面積/基準階面積 | 960.00坪 / 59.61坪 |
| 建物構造 | 鉄骨鉄筋コンクリート造 | ||
| 竣工年月 | 1987年2月 | 備考 | - |
| リニューアル | - | ||
基準階面積は共用部面積を含む場合がございます。
物件設備・条件
| エレベーター | あり 総台数 2基 |
トイレ | 男女別 ウォシュレットあり |
|---|---|---|---|
| 空調 | 個別空調 24時間使用可 | 正面玄関 開放時間 |
- |
| 天井高 | - | 駐車場 | 駐車場あり |
| フロア | OAフロアあり | 駐輪場 | - |
| セキュリティー | 機械警備 | 貸会議室 | - |
| BCP対応 | 新耐震基準適合 | リフレッシュルーム | なし |
| 立地 | 大通り沿い | 店舗 | - |
| ビル規模 | 中型ビル (貸床50坪〜100坪) |
建物種別 | オフィスビル |

- 総合評価
-




3.5
評価の見方
- 立地
- 駅からビルまでの利便性やコンビニや郵便局などの周辺環境で評価がついています。
- 共用
- ビルの共⽤部(エントランス、外壁などのリニューアル、セキュリー他)共⽤施設の充実度で評価がついています。
- 専有
- 貸室内の設備(天井⾼・OAフロア・個別空調など)で評価がついています。
- BCP対応
- 新耐震基準や地震時強い免震・制震構造・停電時に必要な⾮常⽤電源対応などで評価がついています。
- ステージ君
- オフィステージ コンシェルジュ ステージ君のズバリの評価になります。

大阪アニックスビルは大阪市西区立売堀一丁目、なにわ筋沿いに建つ1987年竣工、新耐震基準のオフィスビルです。ライトブラウンのタイル張りが特徴的で、角地に位置している事から周囲からの視認性は良好です。小規模ビルではありますが、EVは2基設置されている為、混み合う心配がなくストレスフリーで出社出来ます。セキュリティ面は機械警備が採用。トイレは男女別でウォシュレットが設置されている為、女性にも嬉しい設備です。最寄り駅は大阪メトロ長堀鶴見緑地線「西大橋駅」から徒歩4分。もしくは四つ橋線「本町駅」から徒歩5分になります。少し駅から歩く印象ですが、「西大橋駅」は心斎橋まで、「本町駅」は梅田や難波までのアクセスを可能にしている為、交通の便は比較的良好と言えます。ビル付属の駐車場もございますので、お車を使われたい企業様にも柔軟に対応が出来ます。営業拠点として、大阪市内に事務所をお探しの方におすすめ出来る物件です。
- 立地
-




- 共用
-




- 専有
-




- BCP対応
-




- ステージ君
-





非公開とは?
賃料が「非公開」の物件は、オーナー様のご希望で賃料が非公開となっております。
賃料の目安についてはお気軽にお問い合わせください。
- 阿波座・西長堀の中型ビルの平均坪単価
- 8,477円





