本町岡村ビル
印刷
物件写真
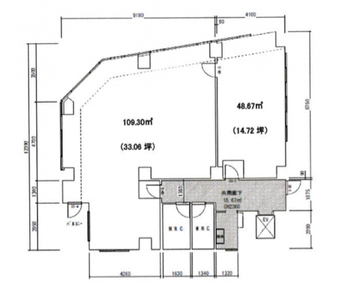
区画図(基準階)
物件概要
| 住所 | 大阪府大阪市西区阿波座1-2-10 | 総階数 | 10階 |
|---|---|---|---|
| 最寄駅 |
大阪メトロ中央線本町駅 徒歩1分 大阪メトロ四つ橋線本町駅 徒歩2分 大阪メトロ御堂筋線本町駅 徒歩4分 |
延床面積/基準階面積 | 438.00坪 / 47.78坪 |
| 建物構造 | 鉄筋コンクリート造 | ||
| 竣工年月 | 1988年4月 | 備考 | - |
| リニューアル | 1月 専有部、一部共用部 | ||
基準階面積は共用部面積を含む場合がございます。
物件設備・条件
| エレベーター | あり 総台数 1基 |
トイレ | 男女別 ウォシュレットなし |
|---|---|---|---|
| 空調 | 個別空調 24時間使用可 | 正面玄関 開放時間 |
- |
| 天井高 | 2850mm | 駐車場 | 駐車場なし |
| フロア | OAフロアあり 50mm | 駐輪場 | - |
| セキュリティー | 機械警備 | 貸会議室 | - |
| BCP対応 | 新耐震基準適合 | リフレッシュルーム | なし |
| 立地 | 駅3分以内 大通り沿い |
店舗 | - |
| ビル規模 | 小型ビル (貸床〜50坪) |
建物種別 | オフィスビル |

- 総合評価
-




4
評価の見方
- 立地
- 駅からビルまでの利便性やコンビニや郵便局などの周辺環境で評価がついています。
- 共用
- ビルの共⽤部(エントランス、外壁などのリニューアル、セキュリー他)共⽤施設の充実度で評価がついています。
- 専有
- 貸室内の設備(天井⾼・OAフロア・個別空調など)で評価がついています。
- BCP対応
- 新耐震基準や地震時強い免震・制震構造・停電時に必要な⾮常⽤電源対応などで評価がついています。
- ステージ君
- オフィステージ コンシェルジュ ステージ君のズバリの評価になります。

本町岡村ビルは、四つ橋筋から少し離れたところにあるオフィスビル。近くには阪神高速1号環状線の入り口があるため、車を使った出張が多い企業様にぴったりです。ビルから歩いて1分のところに「本町駅」があるので、地下鉄3路線を使って大阪のさまざまなエリアにアクセスできます。2015年にはビル内のリノベーションが行われ、エントランスやトイレといった部分がきれいに生まれ変わりました。床はOAフロア対応なので、配線にとらわれない自由なオフィスレイアウトが可能です。インターネット回線は、高速通信もラクラクの光ファイバーを引き込んでいます。オフィスの空調は、利用時間が制限されない個別空調。いつでも快適な温度に設定できるのが嬉しいポイントです。
評価詳細を表示
- 立地
-




- 共用
-




- 専有
-




- BCP対応
-




- ステージ君
-





非公開とは?
賃料が「非公開」の物件は、オーナー様のご希望で賃料が非公開となっております。
賃料の目安についてはお気軽にお問い合わせください。
- 阿波座・西長堀の小型ビルの平均坪単価
- 8,131円






本町岡村ビルは、1988年4月に竣工したオフィスビルです。大阪市西区阿波座1-2-10にある鉄筋コンクリート造地上10階建のオフィスビルで、大阪メトロ四つ橋線「本町駅」から徒歩1分、中央線「本町駅」から徒歩3分、御堂筋線「本町駅」から徒歩5分の距離にあります。ビルの外装は、白い外壁が特徴的です。エントランスの内装も、白を基調としています。新耐震基準を満たした設計となっているため、万が一の災害時にも一定の安全性を確保しています。室内はOAフロア対応となっており、OA機器の配線や電話線を床下に収納することが可能です。天井高は2,350mmです。各階の共用部には、男女別トイレや給湯室を完備。空調は、個別空調となっています。ビルは24時間対応の機械警備によって管理されており、セキュリティー面も万全です。