ザ・セヤマビル
印刷
物件写真
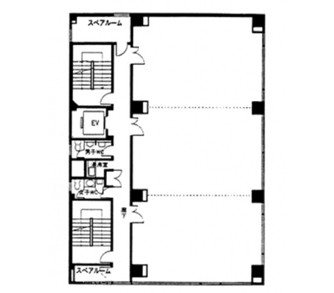
区画図(基準階)
物件概要
| 住所 | 大阪府大阪市北区西天満5-1-1 | 総階数 | 9階 |
|---|---|---|---|
| 最寄駅 |
大阪メトロ谷町線南森町駅 徒歩2分 JR東西線大阪天満宮駅 徒歩4分 大阪メトロ堺筋線扇町駅 徒歩7分 |
延床面積/基準階面積 | 804.00坪 / 58.00坪 |
| 建物構造 | 鉄骨鉄筋コンクリート造 | ||
| 竣工年月 | 1989年1月 | 備考 | ・アスベストの使用も一切なし |
| リニューアル | - | ||
基準階面積は共用部面積を含む場合がございます。
物件設備・条件
| エレベーター | あり 総台数 1基 |
トイレ | 男女別 ウォシュレットあり |
|---|---|---|---|
| 空調 | 個別空調 24時間使用可 | 正面玄関 開放時間 |
- |
| 天井高 | 2600mm | 駐車場 | 駐車場あり |
| フロア | - | 駐輪場 | - |
| セキュリティー | 機械警備 | 貸会議室 | - |
| BCP対応 | 新耐震基準適合 | リフレッシュルーム | なし |
| 立地 | 駅3分以内 大通り沿い |
店舗 | - |
| ビル規模 | 中型ビル (貸床50坪〜100坪) |
建物種別 | オフィスビル |

- 総合評価
-




3.5
評価の見方
- 立地
- 駅からビルまでの利便性やコンビニや郵便局などの周辺環境で評価がついています。
- 共用
- ビルの共⽤部(エントランス、外壁などのリニューアル、セキュリー他)共⽤施設の充実度で評価がついています。
- 専有
- 貸室内の設備(天井⾼・OAフロア・個別空調など)で評価がついています。
- BCP対応
- 新耐震基準や地震時強い免震・制震構造・停電時に必要な⾮常⽤電源対応などで評価がついています。
- ステージ君
- オフィステージ コンシェルジュ ステージ君のズバリの評価になります。

ザ・セヤマビルは、タイル貼りの外壁と横に長く取られた窓が目を引くオフィスビルです。京阪国道沿いの角地に建っていることから視認性はバツグン!初めて来社されたお客様でも見つけやすいビルとなっています。1989年に建てられたビルであるため、耐震基準はしっかりクリア!万が一地震がきても安心です!「南森町駅」から歩いて2分という駅近な立地も嬉しいポイント。毎日の通勤がラクチンなのはもちろん、仕事で外出するときにもとっても便利です!インターネット回線は光ファイバー!高速通信で快適にインターネットを利用できます。空調はそれぞれの部屋で自由に設定できるため、仕事中は常に快適!セキュリティーもバッチリなので、いつでも安心して仕事に取り組めます!
評価詳細を表示
- 立地
-




- 共用
-




- 専有
-




- BCP対応
-




- ステージ君
-





非公開とは?
賃料が「非公開」の物件は、オーナー様のご希望で賃料が非公開となっております。
賃料の目安についてはお気軽にお問い合わせください。
- 西天満の中型ビルの平均坪単価
- 9,274円






ザ・セヤマビルは、1989年1月に竣工したオフィスビルです。大阪市北区西天満5-1-1にあり、鉄骨鉄筋コンクリート造地上9階建のオフィスビルとなっています。最寄駅である大阪メトロ堺筋線「南森町駅」から徒歩2分の距離に位置しており、通勤や外出の際の利便性に優れています。エレベーターは1基設置。新耐震基準を満たしていることから、地震などの災害時にも一定の安全性が確保されています。天井高は2,600mmで、光ファイバーは引込済です。共用部には男女別のトイレが設けられているほか、給湯室も完備されています。空調は個別空調が導入されており、各オフィスで細かな温度設定が可能です。機械警備によって管理されていることから、セキュリティー面も万全です。