大阪小学館ビル
印刷
物件写真
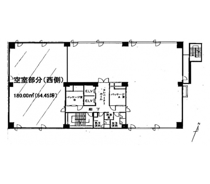
区画図(基準階)
物件概要
| 住所 | 大阪府大阪市北区曽根崎新地2-6-12 | 総階数 | 9階/地下1階 |
|---|---|---|---|
| 最寄駅 |
阪神本線福島駅 徒歩3分 大阪メトロ四つ橋線西梅田駅 徒歩4分 JR東西線北新地駅 徒歩5分 |
延床面積/基準階面積 | 1649.00坪 / 136.00坪 |
| 建物構造 | 鉄骨鉄筋コンクリート造 | ||
| 竣工年月 | 1983年1月 | 備考 | - |
| リニューアル | - | ||
基準階面積は共用部面積を含む場合がございます。
物件設備・条件
| エレベーター | あり 総台数 2基 |
トイレ | 男女別 ウォシュレットなし |
|---|---|---|---|
| 空調 | セントラル空調 補助空調あり |
正面玄関 開放時間 |
- |
| 天井高 | - | 駐車場 | 駐車場あり 総台数 24台 |
| フロア | OAフロアあり 40mm | 駐輪場 | - |
| セキュリティー | 機械警備 常駐警備 |
貸会議室 | - |
| BCP対応 | - | リフレッシュルーム | なし |
| 立地 | 駅3分以内 大通り沿い |
店舗 | - |
| ビル規模 | 大型ビル (貸床100坪〜200坪) |
建物種別 | オフィスビル |

- 総合評価
-




3
評価の見方
- 立地
- 駅からビルまでの利便性やコンビニや郵便局などの周辺環境で評価がついています。
- 共用
- ビルの共⽤部(エントランス、外壁などのリニューアル、セキュリー他)共⽤施設の充実度で評価がついています。
- 専有
- 貸室内の設備(天井⾼・OAフロア・個別空調など)で評価がついています。
- BCP対応
- 新耐震基準や地震時強い免震・制震構造・停電時に必要な⾮常⽤電源対応などで評価がついています。
- ステージ君
- オフィステージ コンシェルジュ ステージ君のズバリの評価になります。

大阪小学館ビルは、タイル貼りの外壁と横に広く取られた窓が目を引くオフィスビルです。国道2号線沿いの角地に建っていることから視認性はバツグン!初めて来社されたお客様でも見つけやすいビルとなっています。1983年に建てられたビルであるため耐震基準はしっかりクリア!万が一地震がきても安心です!ビルには2つのエレベーターがあるので、朝の通勤ラッシュでも焦らずに出社できます。インターネット回線は光ファイバー!高速通信で快適なインターネット環境を実現しています。床はOAフロアになっているため、たくさんの機器を扱う職場でも配線が邪魔にならずオフィスレイアウトは自由自在です!セキュリティーもバッチリなので、いつでも安心して仕事に取り組めます!
評価詳細を表示
- 立地
-




- 共用
-




- 専有
-




- BCP対応
-




- ステージ君
-





非公開とは?
賃料が「非公開」の物件は、オーナー様のご希望で賃料が非公開となっております。
賃料の目安についてはお気軽にお問い合わせください。
- 堂島・中之島の大型ビルの平均坪単価
- 12,481円






大阪小学館ビルは、1983年1月に竣工したオフィスビルです。大阪市北区曽根崎新地2-6-12にある鉄骨鉄筋コンクリート造地上9階、地下1階建のオフィスビルで、最寄駅は大阪メトロ四つ橋線「西梅田駅」です。駅からは、徒歩4分の距離にあります。また、JR東西線「北新地駅」からも徒歩6分でアクセス可能です。外観は、グレーのタイル張りの外壁が特徴的です。エントランスは、広々とした空間となっています。ビル内には、乗用エレベーターを2基完備。天井高は、2,480mmです。床面はOAフロアに対応しており、光ファイバーも引込済。トイレは男女別で、ウォシュレットも完備されています。駐車場は、24台収容可能な機械式駐車場を完備。ビルは機械警備で管理されており、一定の安全性を確保しています。