セントアネックスビル(旧)新大阪木村第一ビル
印刷
物件概要
| 住所 | 大阪府大阪市淀川区西中島5-11-8 | 総階数 | 9階/地下1階 |
|---|---|---|---|
| 最寄駅 |
大阪メトロ御堂筋線西中島南方駅 徒歩2分 阪急京都本線南方駅 徒歩4分 大阪メトロ御堂筋線新大阪駅 徒歩6分 |
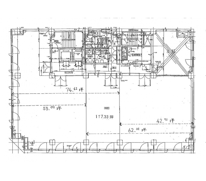
延床面積/基準階面積 | - / 117.33坪 |
| 建物構造 | 鉄骨鉄筋コンクリート造 | ||
| 竣工年月 | 1988年4月 | 備考 | - |
| リニューアル | - | ||
基準階面積は共用部面積を含む場合がございます。
物件設備・条件
| エレベーター | あり 総台数 2基 |
トイレ | 男女別 ウォシュレットなし |
|---|---|---|---|
| 空調 | 個別空調 24時間使用可 | 正面玄関 開放時間 |
- |
| 天井高 | 2650mm | 駐車場 | 駐車場あり 総台数 20台 |
| フロア | OAフロアあり 50mm | 駐輪場 | - |
| セキュリティー | - | 貸会議室 | - |
| BCP対応 | 新耐震基準適合 | リフレッシュルーム | なし |
| 立地 | 駅3分以内 大通り沿い |
店舗 | - |
| ビル規模 | 大型ビル (貸床100坪〜200坪) |
建物種別 | オフィスビル |

- 総合評価
-




4
評価の見方
- 立地
- 駅からビルまでの利便性やコンビニや郵便局などの周辺環境で評価がついています。
- 共用
- ビルの共⽤部(エントランス、外壁などのリニューアル、セキュリー他)共⽤施設の充実度で評価がついています。
- 専有
- 貸室内の設備(天井⾼・OAフロア・個別空調など)で評価がついています。
- BCP対応
- 新耐震基準や地震時強い免震・制震構造・停電時に必要な⾮常⽤電源対応などで評価がついています。
- ステージ君
- オフィステージ コンシェルジュ ステージ君のズバリの評価になります。

セントアネックスビル(旧)新大阪木村第一ビルは、大阪市淀川区西中島5丁目に建つ鉄骨鉄筋コンクリート造のオフィスビルです。1988年竣工なので、新耐震基準に適合しており地震に対して一定の耐震能力を備えております。最寄駅は、大阪メトロ御堂筋線「西中島南方駅」から徒歩2分、阪急京都本線「南方駅」から徒歩4分と通勤や営業先へのアクセスは大変良く、JR東海道線「新大阪駅」からも近いので、東京や九州方面へ新幹線を使用される際も大変便利な立地です。区画は、約13坪から約118坪まで幅広く対応しており、空調は個別方式なので区画ごとに細かな室温設定が可能です。24時間使用可能で、機械警備も導入されているためセキュリティ面も安心です。居室内はLED照明に交換済みなのでとても明るく、電気代もコスト削減ができます。OAフロアなので、事務机などのレイアウトが配線を気にせずでき、後からのレイアウト変更なども容易です。光ファイバーも建物共用部まで引き込みしているので、高速インターネットが利用可能です。新大阪周辺はホテルや飲食店が充実しており、遠方からお見えになるお客様の宿泊先や接待などにも便利です。
- 立地
-




- 共用
-




- 専有
-




- BCP対応
-




- ステージ君
-





非公開とは?
賃料が「非公開」の物件は、オーナー様のご希望で賃料が非公開となっております。
賃料の目安についてはお気軽にお問い合わせください。
- 西中島の大型ビルの平均坪単価
- 10,988円





