梅新ファーストビル
印刷
物件概要
| 住所 | 大阪府大阪市北区曽根崎1-2-9 | 総階数 | 10階/地下1階 |
|---|---|---|---|
| 最寄駅 |
JR東西線北新地駅 徒歩3分 大阪メトロ谷町線東梅田駅 徒歩4分 大阪メトロ御堂筋線梅田駅 徒歩9分 |
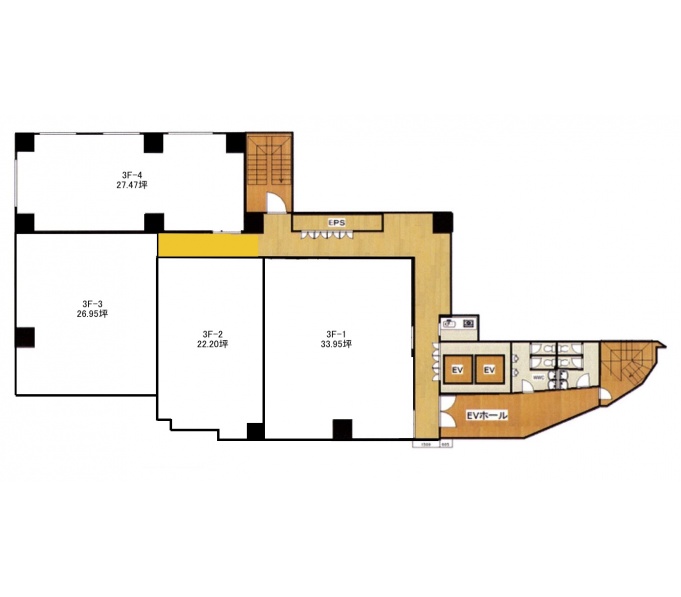
延床面積/基準階面積 | 1646.00坪 / 157.00坪 |
| 建物構造 | 鉄骨造 | ||
| 竣工年月 | 1997年7月 | 備考 | - |
| リニューアル | - | ||
基準階面積は共用部面積を含む場合がございます。
物件設備・条件
| エレベーター | あり 総台数 2基 |
トイレ | 男女別 ウォシュレットあり |
|---|---|---|---|
| 空調 | 個別空調 24時間使用可 | 正面玄関 開放時間 |
平 日 7 : 00 〜 22 : 00 土 曜 - : - 〜 - : - 日・祝 - : - 〜 - : - |
| 天井高 | 2540mm | 駐車場 | 駐車場あり 総台数 20台 |
| フロア | OAフロアあり 50mm | 駐輪場 | 駐輪場なし |
| セキュリティー | 機械警備 | 貸会議室 | なし |
| BCP対応 | 新耐震基準適合 | リフレッシュルーム | なし |
| 立地 | 駅3分以内 大通り沿い |
店舗 | - |
| ビル規模 | 大型ビル (貸床100坪〜200坪) |
建物種別 | オフィスビル |

- 総合評価
-




4
評価の見方
- 立地
- 駅からビルまでの利便性やコンビニや郵便局などの周辺環境で評価がついています。
- 共用
- ビルの共⽤部(エントランス、外壁などのリニューアル、セキュリー他)共⽤施設の充実度で評価がついています。
- 専有
- 貸室内の設備(天井⾼・OAフロア・個別空調など)で評価がついています。
- BCP対応
- 新耐震基準や地震時強い免震・制震構造・停電時に必要な⾮常⽤電源対応などで評価がついています。
- ステージ君
- オフィステージ コンシェルジュ ステージ君のズバリの評価になります。

梅新ファーストビルは、大阪市北区曽根崎に建つ1997年竣工、新耐震基準のオフィスビルです。梅新東の角地に建ち、ガラス張りのスタイリッシュなデザインの外観により、一際目を引きます。細長い形状は共用部までになっており、専有部はスクエア型でレイアウトの融通が利きますので、様々な業種や働き方に対応可能です。ワンフロアからの募集も行っており、周辺ビルではあまりない、まとまった面積の確保が出来ます。床面にはOAフロアが採用。フレキシブルな配線が可能です。ビル内は機械警備によりセキュリティは十分。ウォシュレット付き男女別トイレ完備で女性にも嬉しい設備が整っています。またビル付属の機械式駐車場完備。まとまった台数の確保も相談可能なので、お車をよく使われる企業様にも適しています。最寄り駅はJR東西線「北新地駅」より徒歩3分。人気の梅田エリアからのアクセスが容易です。また、大阪メトロ谷町線「東梅田駅」へは徒歩4分。様々な方面へのアクセスが出来ます。大阪市北区でお探しの企業様、是非一度ご内覧くださいませ。
- 立地
-




- 共用
-




- 専有
-




- BCP対応
-




- ステージ君
-





非公開とは?
賃料が「非公開」の物件は、オーナー様のご希望で賃料が非公開となっております。
賃料の目安についてはお気軽にお問い合わせください。
- 梅田の大型ビルの平均坪単価
- 13,859円






梅新ファーストビルは、1997年7月に竣工したオフィスビルです。大阪市北区曽根崎1-2-9にあり、鉄骨造地上10階、地下1階建のオフィスビルとなっています。最寄駅であるJR東西線「北新地駅」から徒歩3分の距離に位置しており、通勤や外出の際の利便性に優れています。ビルの外観は、ガラス張りの外壁が特徴的です。エントランスの内装は、ベージュを基調としています。エレベーターは2基設置されているため、時間帯に左右されずスムーズに利用できます。新耐震基準を満たしていることから、地震などの災害時にも一定の安全性が確保されています。光ファイバーは引込済で、床面はOAフロアに対応。配線を床下に収納できるため、柔軟なオフィスレイアウトが可能です。共用部には男女別のトイレが設けられています。空調は個別空調が導入されており、各オフィスで細かな温度設定ができます。