明治安田生命大阪御堂筋ビル
印刷
物件概要
| 住所 | 大阪府大阪市中央区伏見町4-1-1 | 総階数 | 14階/地下3階 |
|---|---|---|---|
| 最寄駅 |
大阪メトロ御堂筋線淀屋橋駅 徒歩2分 京阪本線淀屋橋駅 徒歩3分 大阪メトロ四つ橋線肥後橋駅 徒歩4分 |
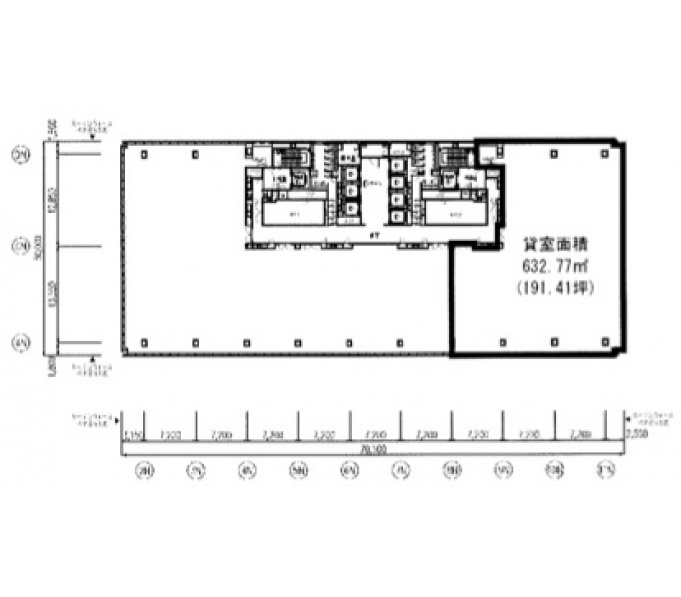
延床面積/基準階面積 | 10240.00坪 / 481.00坪 |
| 建物構造 | 鉄骨鉄筋コンクリート造 | ||
| 竣工年月 | 2001年8月 | 備考 | - |
| リニューアル | - | ||
基準階面積は共用部面積を含む場合がございます。
物件設備・条件
| エレベーター | あり 総台数 10基 うち荷物用EV 1基 |
トイレ | 男女別 ウォシュレットあり |
|---|---|---|---|
| 空調 | セントラル空調 平 日 8 : 00 〜 18 : 00 土 曜 8 : 00 〜 13 : 00 日・祝 - : - 〜 - : - |
正面玄関 開放時間 |
平 日 7 : 00 〜 19 : 00 土 曜 7 : 00 〜 14 : 00 日・祝 - : - 〜 - : - |
| 天井高 | 2800mm | 駐車場 | 駐車場あり 総台数 113台 |
| フロア | OAフロアあり 100mm | 駐輪場 | 駐輪場あり |
| セキュリティー | 機械警備 常駐警備 |
貸会議室 | あり |
| BCP対応 | 新耐震基準適合 | リフレッシュルーム | あり |
| 立地 | 駅3分以内 大通り沿い |
店舗 | - |
| ビル規模 | 大規模ビル (延床3,000坪以上or貸床200坪以上) |
建物種別 | オフィスビル |

- 総合評価
-




4.5
評価の見方
- 立地
- 駅からビルまでの利便性やコンビニや郵便局などの周辺環境で評価がついています。
- 共用
- ビルの共⽤部(エントランス、外壁などのリニューアル、セキュリー他)共⽤施設の充実度で評価がついています。
- 専有
- 貸室内の設備(天井⾼・OAフロア・個別空調など)で評価がついています。
- BCP対応
- 新耐震基準や地震時強い免震・制震構造・停電時に必要な⾮常⽤電源対応などで評価がついています。
- ステージ君
- オフィステージ コンシェルジュ ステージ君のズバリの評価になります。

明治安田生命大阪御堂筋ビルは、ガラス張りのスタイリッシュな外観が目を引くオフィスビルです。エントランスは天井高が高く、採光性にも優れているため開放感があります。2001年に建てられたビルであることから耐震基準はしっかりクリア!万が一地震がきても大丈夫です。御堂筋沿いに建っていることから視認性はバツグン!初めて来社されるお客様でも見つけやすいビルとなっています。御堂筋線「淀屋橋駅」とは地下で直結しているため、道に迷う必要もありません。京阪「淀屋橋駅」にも歩いて2分でアクセスできるので、通勤はもちろん仕事で外出する際にもとっても便利です!ビルには7つのエレベーターがあることから、朝の通勤ラッシュ時でも焦る必要はありません。床はOAフロアに対応しており、たくさんのOA機器を扱う職場でも配線が邪魔になることはありません。
- 立地
-




- 共用
-




- 専有
-




- BCP対応
-




- ステージ君
-





非公開とは?
賃料が「非公開」の物件は、オーナー様のご希望で賃料が非公開となっております。
賃料の目安についてはお気軽にお問い合わせください。
- 淀屋橋・北浜の大規模ビルの平均坪単価
- 12,816円






明治安田生命大阪御堂筋ビルは、2001年8月に竣工したオフィスビルです。大阪市中央区伏見町4-1-1にあり、鉄骨造地上14階、地下3階、塔屋1階建のオフィスビルとなっています。最寄駅である大阪メトロ御堂筋線「淀屋橋駅」とは地下1階で直結しているため、通勤や外出の際の利便性に優れています。京阪本線「淀屋橋駅」からも徒歩2分でアクセス可能です。ビルの外観は、ガラス張りの外壁が特徴的です。エントランスの内装は、白を基調としています。エレベーターは7基設置されていることから、時間帯に左右されずスムーズに利用できます。免震構造であることから、地震などの災害時にも一定の安全性が確保されています。天井高は2,800mmで、床面はOAフロアに対応。共用部には男女別のトイレが設けられています。空調は、各階のエリア毎に管理されています。