新大阪トラストタワー

印刷
  • 新大阪トラストタワー
  • 区画図
物件写真
  • 新大阪トラストタワー
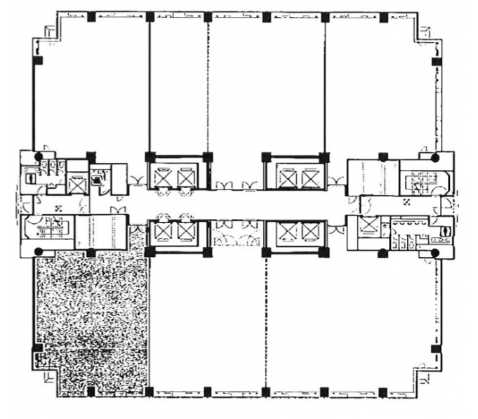
区画図(基準階)
  • 区画図

物件概要

住所 大阪府大阪市淀川区宮原3-5-36 総階数 21階/地下2階
最寄駅 大阪メトロ御堂筋線新大阪駅 徒歩4分
JR東海道線新大阪駅 徒歩4分
大阪メトロ御堂筋線東三国駅 徒歩10分
延床面積/基準階面積 14554.81坪 / 439.00坪
建物構造 鉄筋コンクリート造
竣工年月 1994年1月 備考 -
リニューアル 2015年1月 共用部、リニューアル

基準階面積は共用部面積を含む場合がございます。

物件設備・条件

エレベーター あり
総台数 10基
うち荷物用EV 2基
トイレ 男女別
ウォシュレットあり
空調 セントラル空調
補助空調あり
正面玄関
開放時間
平 日 7 : 30 〜 21 : 00
土 曜 7 : 30 〜 18 : 00
日・祝 - : - 〜 - : -
天井高 2690mm 駐車場 駐車場あり
総台数 223台
フロア OAフロアあり 70mm 駐輪場 -
セキュリティー 機械警備
常駐警備
貸会議室 -
BCP対応 新耐震基準適合 リフレッシュルーム なし
立地 大通り沿い 店舗 -
ビル規模 大規模ビル
(延床3,000坪以上or貸床200坪以上)
建物種別 オフィスビル
総合評価
3.5

評価の見方

立地
駅からビルまでの利便性やコンビニや郵便局などの周辺環境で評価がついています。
共用
ビルの共⽤部(エントランス、外壁などのリニューアル、セキュリー他)共⽤施設の充実度で評価がついています。
専有
貸室内の設備(天井⾼・OAフロア・個別空調など)で評価がついています。
BCP対応
新耐震基準や地震時強い免震・制震構造・停電時に必要な⾮常⽤電源対応などで評価がついています。
ステージ君
オフィステージ コンシェルジュ ステージ君のズバリの評価になります。

新大阪で人気エリアの宮原3丁目に位置し、交通はJR東海道線「新大阪」駅徒歩4分、地下鉄御堂筋線「新大阪」駅徒歩4分でご利用いただけます。東京やその他エリアへの出張が多い企業様にも大変便利な立地となっております。また建物は整型無形のハイグレードビルで2015年には全館共有部リニューアルも実施しました。1994年1月竣工の新耐震基準、耐震構造となっております。エレベーターは全12台(内、貨物用2台)あり、貸室内は天井高2,690mm、OA対応、その他トイレ男女別、ウォシュレット、光ファイバー、機械警備、駐車場223台がございます。

評価詳細を表示
立地
共用
専有
BCP対応
ステージ君

非公開とは?

賃料が「非公開」の物件は、オーナー様のご希望で賃料が非公開となっております。
賃料の目安についてはお気軽にお問い合わせください。

新大阪北の大規模ビルの平均坪単価
14,104円