創空KYUTARO
印刷
物件概要
| 住所 | 大阪府大阪市中央区久太郎町2-4-16 | 総階数 | 13階 |
|---|---|---|---|
| 最寄駅 |
大阪メトロ堺筋線堺筋本町駅 徒歩2分 大阪メトロ御堂筋線本町駅 徒歩5分 大阪メトロ中央線堺筋本町駅 徒歩2分 |
延床面積/基準階面積 | - / 38.00坪 |
| 建物構造 | 鉄筋コンクリート造 | ||
| 竣工年月 | 2006年7月 | 備考 | - |
| リニューアル | - | ||
基準階面積は共用部面積を含む場合がございます。
物件設備・条件
| エレベーター | あり 総台数 1基 |
トイレ | 混合 ウォシュレットあり |
|---|---|---|---|
| 空調 | 個別空調 24時間使用可 | 正面玄関 開放時間 |
- |
| 天井高 | - | 駐車場 | 駐車場なし |
| フロア | - | 駐輪場 | 駐輪場あり |
| セキュリティー | 機械警備 | 貸会議室 | - |
| BCP対応 | 新耐震基準適合 | リフレッシュルーム | なし |
| 立地 | 駅3分以内 | 店舗 | - |
| ビル規模 | 小型ビル (貸床〜50坪) デザイナーズ・レトロ・アンティーク |
建物種別 | オフィスビル マンション・SOHOタイプ |

- 総合評価
-




3.5
評価の見方
- 立地
- 駅からビルまでの利便性やコンビニや郵便局などの周辺環境で評価がついています。
- 共用
- ビルの共⽤部(エントランス、外壁などのリニューアル、セキュリー他)共⽤施設の充実度で評価がついています。
- 専有
- 貸室内の設備(天井⾼・OAフロア・個別空調など)で評価がついています。
- BCP対応
- 新耐震基準や地震時強い免震・制震構造・停電時に必要な⾮常⽤電源対応などで評価がついています。
- ステージ君
- オフィステージ コンシェルジュ ステージ君のズバリの評価になります。

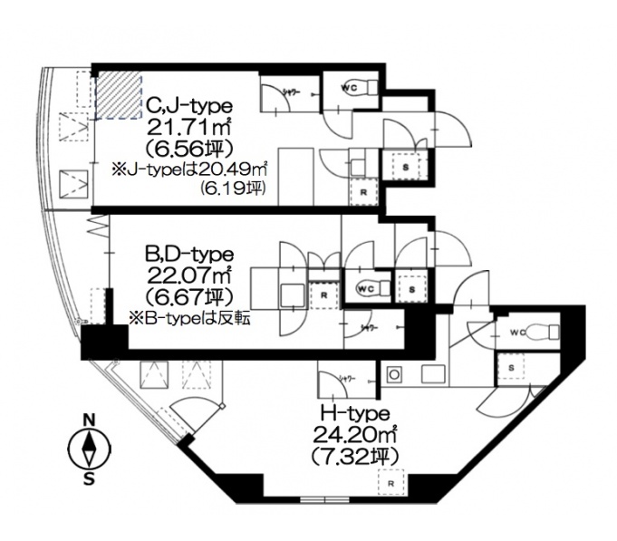
創空KYUTAROは、御堂筋と堺筋に挟まれた中央区久太郎町2丁目、中央大通りの1本南側の通りに面して建つ、SOHO利用も可能なデザイナーズオフィスビルです。コンクリート打ちっぱなしの外壁が印象的な13階建ての建物で、1階部分には飲食店舗が入居しているため、来客時には目印になります。大阪メトロ御堂筋線「本町駅」と堺筋線「堺筋本町駅」から徒歩3〜5分、どちらの駅も複数路線の乗り入れ駅なので通勤や営業回りに便利な立地です。竣工は2006年、新耐震基準に適合しており、阪神大震災クラスの震度6〜7の強い揺れにも損壊・倒壊しない構造となっています。前述の通りSOHOとしても利用できますので、それぞれの区画が独立した間取りで、シャワールームが設備されています。スタートアップにおすすめの10坪程度お部屋から少人数オフィス向きの20坪弱の部屋まであり、様々なニーズに対応。エアコン、ミニキッチン、ウォシュレット付きトイレが完備です。周辺にはコンビニや飲食店も複数あるのでランチや買出しに不便はなく、船場郵便局もすぐ近くですので業務上も大変便利です。
- 立地
-




- 共用
-




- 専有
-




- BCP対応
-




- ステージ君
-





非公開とは?
賃料が「非公開」の物件は、オーナー様のご希望で賃料が非公開となっております。
賃料の目安についてはお気軽にお問い合わせください。
- 本町の小型ビルの平均坪単価
- 8,699円





