松柏ビル
印刷
物件概要
| 住所 | 大阪府大阪市北区茶屋町6-23 | 総階数 | 9階/地下1階 |
|---|---|---|---|
| 最寄駅 |
阪急神戸本線大阪梅田駅 徒歩2分 大阪メトロ谷町線中崎町駅 徒歩4分 大阪メトロ谷町線東梅田駅 徒歩6分 |
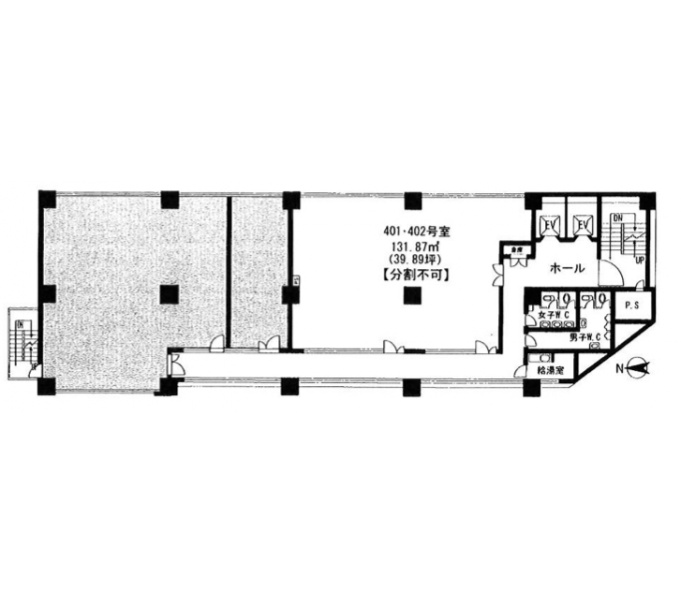
延床面積/基準階面積 | 1023.81坪 / - |
| 建物構造 | 鉄骨鉄筋コンクリート造 | ||
| 竣工年月 | 1971年10月 | 備考 | - |
| リニューアル | - | ||
基準階面積は共用部面積を含む場合がございます。
物件設備・条件
| エレベーター | あり 総台数 2基 |
トイレ | 男女別 ウォシュレットなし |
|---|---|---|---|
| 空調 | 個別空調 24時間使用可 | 正面玄関 開放時間 |
平 日 7 : 00 〜 22 : 00 土 曜 7 : 00 〜 22 : 00 日・祝 9 : 00 〜 20 : 30 |
| 天井高 | - | 駐車場 | 駐車場なし |
| フロア | - | 駐輪場 | - |
| セキュリティー | 機械警備 | 貸会議室 | - |
| BCP対応 | - | リフレッシュルーム | なし |
| 立地 | 駅3分以内 大通り沿い |
店舗 | - |
| ビル規模 | - | 建物種別 | オフィスビル |

- 総合評価
-




3
評価の見方
- 立地
- 駅からビルまでの利便性やコンビニや郵便局などの周辺環境で評価がついています。
- 共用
- ビルの共⽤部(エントランス、外壁などのリニューアル、セキュリー他)共⽤施設の充実度で評価がついています。
- 専有
- 貸室内の設備(天井⾼・OAフロア・個別空調など)で評価がついています。
- BCP対応
- 新耐震基準や地震時強い免震・制震構造・停電時に必要な⾮常⽤電源対応などで評価がついています。
- ステージ君
- オフィステージ コンシェルジュ ステージ君のズバリの評価になります。

松柏ビルは大阪市北区茶屋町にある昭和46年10月竣工の鉄骨鉄筋コンクリート造地上9階地下1階建てのビルです。最寄駅は阪急各線「梅田駅」より徒歩2分、大阪メトロ御堂筋線「梅田駅」より徒歩5分、谷町線「中崎町駅」より徒歩4分、「東梅田駅」より徒歩6分、JR環状線「大阪駅」より徒歩7分にある東側に新御堂、西に茶屋町と視認性のある立地です。ビル西側には梅田の「Nu茶屋町」や「阪急百貨店」、「阪急三番街」などがあり、ビル1階にはカフェやコンビニ等も入居しており、ご来社お客様の道案内も容易ですので梅田周辺で事務所・店舗をお探しのお客様にオススメの物件です。区画は20坪台から40坪台まであり、正面玄関も月曜〜土曜は7:00〜22:00まで、日・祝は9:00〜20:30まで開放しているので来店型店舗や士業関係のテナント様が多くご入居されています。周辺には物販店や飲食店等も多く出店されている梅田の人気スポットです!!
- 立地
-




- 共用
-




- 専有
-




- BCP対応
-




- ステージ君
-





非公開とは?
賃料が「非公開」の物件は、オーナー様のご希望で賃料が非公開となっております。
賃料の目安についてはお気軽にお問い合わせください。
- 梅田の平均坪単価
- 12,518円





