SA堀江ビル

印刷
  • SA堀江ビル
  • 正面玄関
  • エントランス
  • EVホール(1階)
  • EVホール(基準階)
  • 廊下
  • トイレ1
  • トイレ2
  • 給湯室
  • 室内(空間1)
  • 室内(空間2)
  • 室内(空間3)
  • 室内(その他1)
  • 郵便受け
  • その他ビル
  • その他ビル
  • その他
  • 区画図
物件写真
  • SA堀江ビル
  • 正面玄関
  • エントランス
  • EVホール(1階)
  • EVホール(基準階)
  • 廊下
  • トイレ1
  • トイレ2
  • 給湯室
  • 室内(空間1)
  • 室内(空間2)
  • 室内(空間3)
  • 室内(その他1)
  • 郵便受け
  • その他ビル
  • その他ビル
  • その他
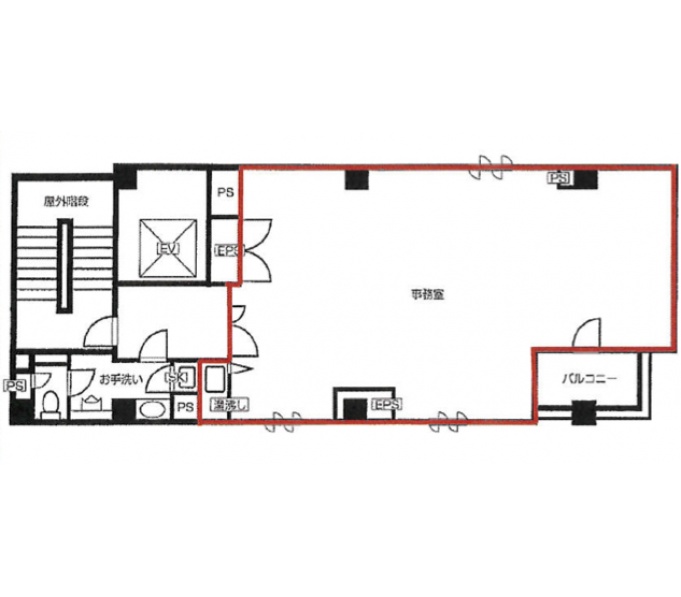
区画図(基準階)
  • 区画図

物件概要

住所 大阪府大阪市西区南堀江2-5-27 総階数 10階/地下2階
最寄駅 大阪メトロ千日前線桜川駅 徒歩5分
JR関西本線難波駅 徒歩5分
大阪メトロ千日前線西長堀駅 徒歩6分
延床面積/基準階面積 277.00坪 / 24.00坪
建物構造 鉄骨造
竣工年月 1992年4月 備考 -
リニューアル -

基準階面積は共用部面積を含む場合がございます。

物件設備・条件

エレベーター あり
総台数 1基
トイレ 混合
ウォシュレットなし
空調 個別空調 24時間使用可 正面玄関
開放時間
-
天井高 2400mm 駐車場 駐車場なし
フロア OAフロアあり 
1フロア1テナント
室内キッチン・トイレ
駐輪場 -
セキュリティー 機械警備 貸会議室 -
BCP対応 新耐震基準適合 リフレッシュルーム なし
立地 - 店舗 -
ビル規模 小型ビル
(貸床〜50坪)
建物種別 オフィスビル
総合評価
3

評価の見方

立地
駅からビルまでの利便性やコンビニや郵便局などの周辺環境で評価がついています。
共用
ビルの共⽤部(エントランス、外壁などのリニューアル、セキュリー他)共⽤施設の充実度で評価がついています。
専有
貸室内の設備(天井⾼・OAフロア・個別空調など)で評価がついています。
BCP対応
新耐震基準や地震時強い免震・制震構造・停電時に必要な⾮常⽤電源対応などで評価がついています。
ステージ君
オフィステージ コンシェルジュ ステージ君のズバリの評価になります。

SA堀江ビルは、ガラス張りの外壁が目を引くスタイリッシュなオフィスビルです。エントランスの内装は、モノトーンを基調とした大理石調。落ち着いたなかにも高級感があり、来社されたお客様にも好印象です。1992年に建てられたビルで、地震対策もバッチリ!それぞれの部屋には、光ファイバーが引き込まれています。高速通信が利用できるため、インターネット環境は快適です。床はOAフロアに対応しているので、邪魔になりがちな配線をスッキリ収納できます。オフィスを広く使えることから、レイアウトの幅が大きく広がります。空調は自由に設定できる個別空調。体調や気温に合わせて細かい温度調節ができるため、仕事中は常に快適です。セキュリティーもバッチリなので、いつでも安心して仕事に取り組めます!

評価詳細を表示
立地
共用
専有
BCP対応
ステージ君

SA堀江ビルは、1992年4月に竣工したオフィスビルです。大阪市西区南堀江2-5-27にある鉄骨造地上10階、地下2階建のオフィスビルで、大阪メトロ千日前線「桜川駅」から徒歩5分、大阪メトロ長堀鶴見緑地線「西大橋駅」から徒歩8分、大阪メトロ四つ橋線「なんば駅」から徒歩10分の距離に位置しています。エレベーターは、11人乗りが1基設置されています。ビルは新耐震基準を満たしているため、災害時にも一定の安全性を確保しています。天井高は、2,400mmです。光ファイバー引込済で、OAフロアに対応しています。トイレと給湯室は、各フロアに設置されています。空調は個別空調で、各オフィスで細かな温度調節が可能です。ビルは24時間体制の機械警備で管理され、正面玄関にはオートロックも設置されているため、セキュリティー面も万全です。

非公開とは?

賃料が「非公開」の物件は、オーナー様のご希望で賃料が非公開となっております。
賃料の目安についてはお気軽にお問い合わせください。

四ツ橋・堀江の小型ビルの平均坪単価
8,924円