Vianode SHIN-OSAKA(旧)GRANODE新大阪

印刷
  • Vianode SHIN-OSAKA(旧)GRANODE新大阪
  • 区画図
物件写真
  • Vianode SHIN-OSAKA(旧)GRANODE新大阪
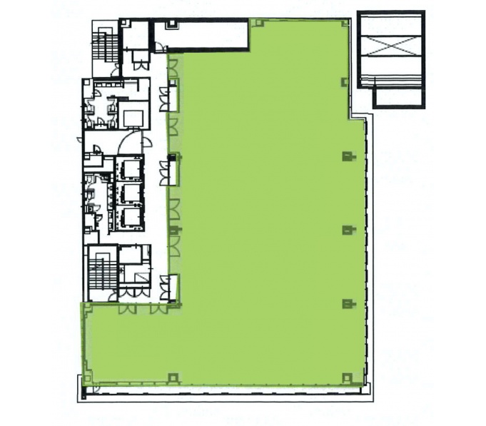
区画図(基準階)
  • 区画図

物件概要

住所 大阪府大阪市淀川区西宮原1-8-4 総階数 11階
最寄駅 大阪メトロ御堂筋線新大阪駅 徒歩6分
大阪メトロ御堂筋線東三国駅 徒歩14分
延床面積/基準階面積 3164.58坪 / 212.79坪
建物構造 鉄骨造
竣工年月 2022年2月 備考 -
リニューアル -

基準階面積は共用部面積を含む場合がございます。

物件設備・条件

エレベーター あり
総台数 4基
トイレ 男女別
ウォシュレットあり
空調 個別空調 24時間使用可 正面玄関
開放時間
-
天井高 2800mm 駐車場 駐車場あり
総台数 44台
フロア OAフロアあり 100mm 駐輪場 -
セキュリティー 機械警備 貸会議室 -
BCP対応 新耐震基準適合
非常用電源対応
リフレッシュルーム あり
立地 - 店舗 -
ビル規模 大規模ビル
(延床3,000坪以上or貸床200坪以上)
建物種別 オフィスビル
総合評価
4

評価の見方

立地
駅からビルまでの利便性やコンビニや郵便局などの周辺環境で評価がついています。
共用
ビルの共⽤部(エントランス、外壁などのリニューアル、セキュリー他)共⽤施設の充実度で評価がついています。
専有
貸室内の設備(天井⾼・OAフロア・個別空調など)で評価がついています。
BCP対応
新耐震基準や地震時強い免震・制震構造・停電時に必要な⾮常⽤電源対応などで評価がついています。
ステージ君
オフィステージ コンシェルジュ ステージ君のズバリの評価になります。

「総合評価」は「立地」「共有」「専有」「BCP対応」「ステージ君」の評価の総合評価になります。
内容の詳細は「評価詳細を表示」からご確認ください。
また、「評価の見方」から各個別評価の概要を見ることができます。

評価詳細を表示
立地
共用
専有
BCP対応
ステージ君

非公開とは?

賃料が「非公開」の物件は、オーナー様のご希望で賃料が非公開となっております。
賃料の目安についてはお気軽にお問い合わせください。

新大阪北の大規模ビルの平均坪単価
14,104円

おすすめ物件

面積が近い エリアが同じ 最寄駅が同じ ビルの規模が近い