大拓ビル17
印刷
物件概要
| 住所 | 大阪府大阪市淀川区西中島4-13-22 | 総階数 | 9階 |
|---|---|---|---|
| 最寄駅 |
大阪メトロ御堂筋線西中島南方駅 徒歩5分 阪急京都本線南方駅 徒歩7分 大阪メトロ御堂筋線新大阪駅 徒歩9分 |
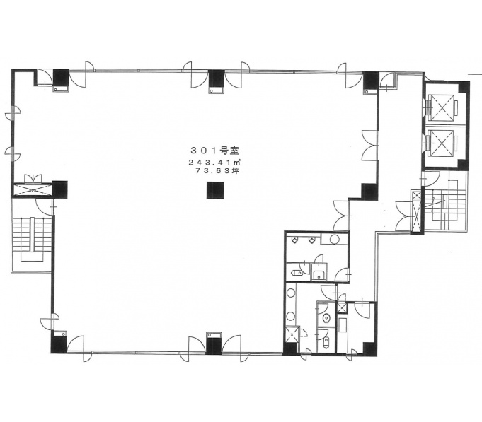
延床面積/基準階面積 | 820.93坪 / 73.63坪 |
| 建物構造 | 鉄筋コンクリート造 | ||
| 竣工年月 | 1989年8月 | 備考 | - |
| リニューアル | - | ||
基準階面積は共用部面積を含む場合がございます。
物件設備・条件
| エレベーター | あり 総台数 2基 |
トイレ | 男女別 |
|---|---|---|---|
| 空調 | 個別空調 24時間使用可 | 正面玄関 開放時間 |
平 日 7 : 00 〜 23 : 00 土 曜 7 : 00 〜 23 : 00 日・祝 - : - 〜 - : - |
| 天井高 | 2500mm | 駐車場 | 駐車場あり |
| フロア | OAフロアあり | 駐輪場 | 駐輪場あり |
| セキュリティー | 機械警備 | 貸会議室 | - |
| BCP対応 | 新耐震基準適合 | リフレッシュルーム | なし |
| 立地 | 大通り沿い | 店舗 | - |
| ビル規模 | 中型ビル (貸床50坪〜100坪) |
建物種別 | オフィスビル |

- 総合評価
-




3.5
評価の見方
- 立地
- 駅からビルまでの利便性やコンビニや郵便局などの周辺環境で評価がついています。
- 共用
- ビルの共⽤部(エントランス、外壁などのリニューアル、セキュリー他)共⽤施設の充実度で評価がついています。
- 専有
- 貸室内の設備(天井⾼・OAフロア・個別空調など)で評価がついています。
- BCP対応
- 新耐震基準や地震時強い免震・制震構造・停電時に必要な⾮常⽤電源対応などで評価がついています。
- ステージ君
- オフィステージ コンシェルジュ ステージ君のズバリの評価になります。

大拓ビル17は、大阪市淀川区西中島4丁目に建つ鉄筋コンクリート造のオフィスビルです。1989年竣工なので、新耐震基準に適合しており地震に対して一定の耐震能力を備えております。最寄駅は、大阪メトロ御堂筋線「西中島南方駅」から徒歩5分、阪急京都本線「南方駅」から徒歩7分と通勤や営業先へのアクセスは大変便利です。白を基調としたエントランスが来訪者に爽やかな印象を与えます。9階建てのビルですが、エレベーターが2基設備されているため、通勤やランチの混み合う時間帯も待ち時間が少なくストレスがありません。区画内は、24時間使用が可能で、個別空調方式なので季節を問わずお好みの室温設定ができます。機械警備も導入されているためセキュリティ面も安心です。また、光ファイバーを建物共用部まで、引込みしているので高速インターネットが利用可能です。トイレも男女別ウォシュレット付きなので、女性の方には特に喜ばれます。新大阪周辺はホテルや飲食店が充実しており、遠方からお見えになるお客様の宿泊先や接待などにも便利です。
- 立地
-




- 共用
-




- 専有
-




- BCP対応
-




- ステージ君
-





非公開とは?
賃料が「非公開」の物件は、オーナー様のご希望で賃料が非公開となっております。
賃料の目安についてはお気軽にお問い合わせください。
- 西中島の中型ビルの平均坪単価
- 9,217円





