新大阪サンアールビル北館
印刷
物件概要
| 住所 | 大阪府大阪市淀川区西中島5-8-3 | 総階数 | 10階 |
|---|---|---|---|
| 最寄駅 |
大阪メトロ御堂筋線西中島南方駅 徒歩4分 阪急京都本線南方駅 徒歩6分 JR東海道線新大阪駅 徒歩7分 |
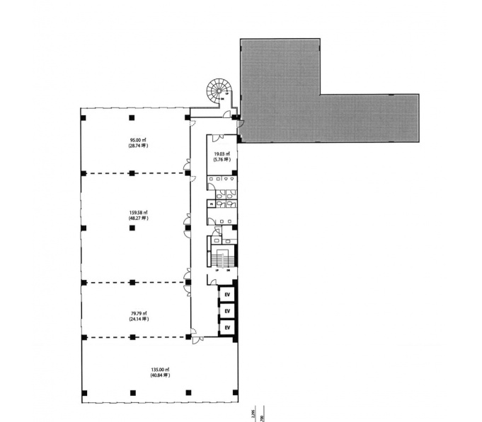
延床面積/基準階面積 | 1966.00坪 / 263.00坪 |
| 建物構造 | 鉄骨鉄筋コンクリート造 | ||
| 竣工年月 | 1985年10月 | 備考 | - |
| リニューアル | 2016年6月 リニューアル、廊下照明順次LEDに変更 2016年1月 秋、エレベーターリニューアル予定 | ||
基準階面積は共用部面積を含む場合がございます。
物件設備・条件
| エレベーター | あり 総台数 3基 |
トイレ | 男女別 ウォシュレットあり |
|---|---|---|---|
| 空調 | 個別空調 24時間使用可 | 正面玄関 開放時間 |
平 日 6 : 00 〜 20 : 00 土 曜 6 : 00 〜 20 : 00 日・祝 - : - 〜 - : - |
| 天井高 | 2350mm | 駐車場 | 駐車場あり |
| フロア | OAフロアあり | 駐輪場 | 駐輪場あり |
| セキュリティー | 機械警備 | 貸会議室 | - |
| BCP対応 | 新耐震基準適合 | リフレッシュルーム | なし |
| 立地 | - | 店舗 | - |
| ビル規模 | 大規模ビル (延床3,000坪以上or貸床200坪以上) |
建物種別 | オフィスビル |

- 総合評価
-




3.5
評価の見方
- 立地
- 駅からビルまでの利便性やコンビニや郵便局などの周辺環境で評価がついています。
- 共用
- ビルの共⽤部(エントランス、外壁などのリニューアル、セキュリー他)共⽤施設の充実度で評価がついています。
- 専有
- 貸室内の設備(天井⾼・OAフロア・個別空調など)で評価がついています。
- BCP対応
- 新耐震基準や地震時強い免震・制震構造・停電時に必要な⾮常⽤電源対応などで評価がついています。
- ステージ君
- オフィステージ コンシェルジュ ステージ君のズバリの評価になります。

新大阪サンアールビル北館は淀川区西中島5丁目に建つオフィスビルです。1985年11月竣工の新耐震基準適合ビルで、2016年にはリニューアル工事も完了しており、外観はもちろんトイレ等の共用部を含む内装もきれいです。最寄り駅は大阪メトロ御堂筋線「西中島南方駅」1号出入口から徒歩5分ですが、他にも阪急京都線「南方駅」から徒歩6分、さらに「新大阪駅」へも徒歩9分と、3駅4路線が利用可能な交通アクセスの充実した環境なので、毎日の通勤や営業活動、新幹線での出張の際にもとても便利です。室内は窓が多くて明るく、細かな温度調節が可能な個別空調方式が全室採用されています。エレベーターは3基設備され、利用者の多い時間帯でも待ち時間のストレスを感じることはありません。ビル敷地内には機械式の駐車場が完備され、新御堂筋にも近いため、車をお使いの企業様にもおすすめです。また駐車場の一角はテナント様専用の駐輪場となっています。ビルからは銀行や郵便局も近く、飲食店やコンビニも周辺に多数並んでいるので、オフィスで働く方がランチや息抜きの場所に困ることはありません。
- 立地
-




- 共用
-




- 専有
-




- BCP対応
-




- ステージ君
-





非公開とは?
賃料が「非公開」の物件は、オーナー様のご希望で賃料が非公開となっております。
賃料の目安についてはお気軽にお問い合わせください。
- 西中島の大規模ビルの平均坪単価
- 11,339円





