中津センタービル

印刷
  • 中津センタービル
  • 外観2
  • その他
  • 区画図
物件写真
  • 中津センタービル
  • 外観2
  • その他
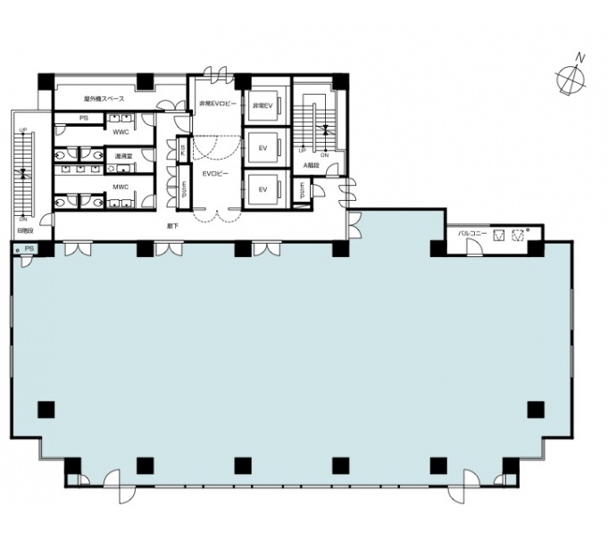
区画図(基準階)
  • 区画図

物件概要

住所 大阪府大阪市北区中津1-11-1 総階数 14階/地下1階
最寄駅 大阪メトロ御堂筋線中津駅 徒歩1分
阪急神戸本線大阪梅田駅 徒歩7分
大阪メトロ谷町線中崎町駅 徒歩10分
延床面積/基準階面積 3491.77坪 / 151.37坪
建物構造 鉄骨造
竣工年月 1991年11月 備考 -
リニューアル -

基準階面積は共用部面積を含む場合がございます。

物件設備・条件

エレベーター あり
総台数 3基
うち荷物用EV 1基
トイレ 男女別
ウォシュレットあり
空調 個別空調 24時間使用可 正面玄関
開放時間
-
天井高 2600mm 駐車場 駐車場あり
総台数 63台
フロア OAフロアあり 60mm 駐輪場 -
セキュリティー 機械警備
常駐警備
貸会議室 -
BCP対応 新耐震基準適合 リフレッシュルーム なし
立地 駅3分以内
大通り沿い
店舗 -
ビル規模 大規模ビル
(延床3,000坪以上or貸床200坪以上)
建物種別 オフィスビル
総合評価
4.5

評価の見方

立地
駅からビルまでの利便性やコンビニや郵便局などの周辺環境で評価がついています。
共用
ビルの共⽤部(エントランス、外壁などのリニューアル、セキュリー他)共⽤施設の充実度で評価がついています。
専有
貸室内の設備(天井⾼・OAフロア・個別空調など)で評価がついています。
BCP対応
新耐震基準や地震時強い免震・制震構造・停電時に必要な⾮常⽤電源対応などで評価がついています。
ステージ君
オフィステージ コンシェルジュ ステージ君のズバリの評価になります。

地下鉄御堂筋線「中津」駅徒歩1分に位置しており、平成3年11月竣工(新耐震基準)の中津エリアでは希少な大型ビルでございます。梅田にも徒歩圏内という立地で、ビジネスの拠点として人気のあるエリアです。ビル1階にはコンビニエンスストアが入っており、入居者様にも便利な環境となっております。また全フロアが南向きとなっており、明るい室内となっております。エレベーターは3基、レイアウト自在のフリーアクセスフロア対応、24時間集中監視システム、24時間入退館可能と快適にご使用頂けるビルです。設計施工は株式会社大林組で、30坪台から100坪を超える区画までございます。こちらの物件の詳細に関してお気軽にお問い合わせ下さい。

評価詳細を表示
立地
共用
専有
BCP対応
ステージ君

非公開とは?

賃料が「非公開」の物件は、オーナー様のご希望で賃料が非公開となっております。
賃料の目安についてはお気軽にお問い合わせください。

中津の大規模ビルの平均坪単価
12,682円