真和エステートビル
印刷
物件写真
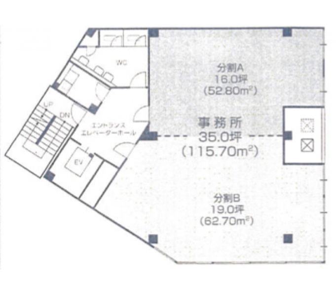
区画図(基準階)
物件概要
| 住所 | 大阪府大阪市北区中津6-8-10 | 総階数 | 6階 |
|---|---|---|---|
| 最寄駅 |
阪急神戸本線中津駅 徒歩3分 大阪メトロ御堂筋線中津駅 徒歩7分 阪急神戸本線大阪梅田駅 徒歩9分 |
延床面積/基準階面積 | 209.20坪 / 35.00坪 |
| 建物構造 | 鉄骨造 | ||
| 竣工年月 | 1991年4月 | 備考 | - |
| リニューアル | - | ||
基準階面積は共用部面積を含む場合がございます。
物件設備・条件
| エレベーター | あり 総台数 2基 |
トイレ | 男女別 ウォシュレットあり |
|---|---|---|---|
| 空調 | 個別空調 24時間使用可 | 正面玄関 開放時間 |
- |
| 天井高 | 2450mm | 駐車場 | 駐車場なし |
| フロア | OAフロアあり 50mm | 駐輪場 | 駐輪場あり |
| セキュリティー | 機械警備 | 貸会議室 | なし |
| BCP対応 | 新耐震基準適合 | リフレッシュルーム | なし |
| 立地 | 駅3分以内 大通り沿い |
店舗 | - |
| ビル規模 | 小型ビル (貸床〜50坪) |
建物種別 | オフィスビル |

- 総合評価
-




3.5
評価の見方
- 立地
- 駅からビルまでの利便性やコンビニや郵便局などの周辺環境で評価がついています。
- 共用
- ビルの共⽤部(エントランス、外壁などのリニューアル、セキュリー他)共⽤施設の充実度で評価がついています。
- 専有
- 貸室内の設備(天井⾼・OAフロア・個別空調など)で評価がついています。
- BCP対応
- 新耐震基準や地震時強い免震・制震構造・停電時に必要な⾮常⽤電源対応などで評価がついています。
- ステージ君
- オフィステージ コンシェルジュ ステージ君のズバリの評価になります。

真和エステートビルは、五角形の形をしたオフィスビルです。ベージュと白の外壁が可愛らしい印象を与えており、ビル入口の赤いひさしが差し色になっています。ビルの近くには「中津駅」と「大阪駅」があり、多方面へのアクセスもスムーズです。ビルは1991年に建てられているため、耐震性はバッチリ!地震がきても大丈夫です。床はOAフロアに対応しているので、配線も邪魔になりません。トイレはウォシュレット付きという充実の設備!さらに男女別なので、プライバシーはしっかりと確保されています。部屋ごとに空調が設定できることから、常に快適な室温のなかで仕事ができます。セキュリティーは24時間体制!いつでも安心してオフィスを利用できます。
評価詳細を表示
- 立地
-




- 共用
-




- 専有
-




- BCP対応
-




- ステージ君
-





非公開とは?
賃料が「非公開」の物件は、オーナー様のご希望で賃料が非公開となっております。
賃料の目安についてはお気軽にお問い合わせください。
- 中津の小型ビルの平均坪単価
- 8,733円






真和エステートビルは、1991年4月に竣工したオフィスビルです。大阪市北区中津6-8-10にある鉄骨造地上6階建のオフィスビルで、最寄駅である阪急神戸本線「中津駅」から徒歩5分、大阪メトロ御堂筋線「中津駅」から徒歩8分、JR大阪環状線「大阪駅」から徒歩10分の距離に位置しています。3路線からのアクセスが可能となっている点が特徴です。新耐震基準を満たしているため、地震の際にも一定の安全性が確保されています。天井高は2,450mm。床面はOAフロアに対応しており、煩わしい配線を床下に収納することができます。共用部に設けられているトイレは男女別で、ウォシュレットも完備。空調は個別空調が導入されているため、オフィス毎に細かい温度設定が可能です。機械警備によって管理されていることから、セキュリティー面も万全です。