豊崎いずみビル
印刷
物件概要
| 住所 | 大阪府大阪市北区豊崎2-7-9 | 総階数 | 9階/地下1階 |
|---|---|---|---|
| 最寄駅 |
大阪メトロ御堂筋線中津駅 徒歩4分 阪急神戸本線大阪梅田駅 徒歩6分 大阪メトロ谷町線中崎町駅 徒歩6分 |
延床面積/基準階面積 | 976.00坪 / 84.00坪 |
| 建物構造 | 鉄骨鉄筋コンクリート造 | ||
| 竣工年月 | 1993年7月 | 備考 | - |
| リニューアル | - | ||
基準階面積は共用部面積を含む場合がございます。
物件設備・条件
| エレベーター | あり 総台数 2基 |
トイレ | 男女別 ウォシュレットあり |
|---|---|---|---|
| 空調 | 個別空調 24時間使用可 | 正面玄関 開放時間 |
平 日 7 : 00 〜 19 : 00 土 曜 7 : 00 〜 19 : 00 日・祝 - : - 〜 - : - |
| 天井高 | 2500mm | 駐車場 | 駐車場あり |
| フロア | OAフロアあり 50mm | 駐輪場 | 駐輪場あり |
| セキュリティー | 機械警備 | 貸会議室 | なし |
| BCP対応 | 新耐震基準適合 | リフレッシュルーム | なし |
| 立地 | 大通り沿い | 店舗 | - |
| ビル規模 | 中型ビル (貸床50坪〜100坪) |
建物種別 | オフィスビル |

- 総合評価
-




3.5
評価の見方
- 立地
- 駅からビルまでの利便性やコンビニや郵便局などの周辺環境で評価がついています。
- 共用
- ビルの共⽤部(エントランス、外壁などのリニューアル、セキュリー他)共⽤施設の充実度で評価がついています。
- 専有
- 貸室内の設備(天井⾼・OAフロア・個別空調など)で評価がついています。
- BCP対応
- 新耐震基準や地震時強い免震・制震構造・停電時に必要な⾮常⽤電源対応などで評価がついています。
- ステージ君
- オフィステージ コンシェルジュ ステージ君のズバリの評価になります。

新御堂筋沿いに位置している、1993年7月完成の新耐震基準の建物です。外観はブラウンで落ち着きのある印象となっております。交通は地下鉄御堂筋線「中津」駅が徒歩5分で最寄駅りとなり、阪急神戸線「梅田」駅、地下鉄谷町線「中崎町」駅も徒歩6分で利用可能です。建物はエレベーターは2基、駐車場も完備しており、貸室はOA対(50mm)、24時間使用可、省エネ型空調機となっております。また、南面に窓がある為、採光も良好で明るい貸室となっております。ますます賑わいをみせる、ビジネスと商業の中心の梅田を拠点にお考えの企業様に、最適なオフィスです。
- 立地
-




- 共用
-




- 専有
-




- BCP対応
-




- ステージ君
-





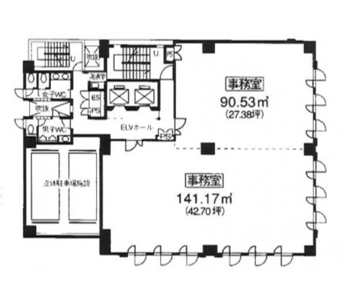
天井高は2,500mmで、1階のみ2,700mmとなっています。床面はOAフロアに対応しており、光ファイバーは引込済です。給湯室と男女別トイレは、共用部に完備されています。空調は個別空調のため、オフィスごとに細かな温度設定が可能です。正面玄関の開放時間は、月~土曜日の7時から19時です。駐車場は、26台収容可能な機械式駐車場が完備されています。ビルは24時間対応の機械警備によって管理されていることから、セキュリティー面も万全です。
非公開とは?
賃料が「非公開」の物件は、オーナー様のご希望で賃料が非公開となっております。
賃料の目安についてはお気軽にお問い合わせください。
- 中津の中型ビルの平均坪単価
- 11,015円






豊崎いずみビルは、1993年7月に竣工したオフィスビルです。大阪市北区豊崎2-7-9にある鉄骨鉄筋コンクリート造地上9階、地下1階、塔屋1階建のオフィスビルとなっています。最寄駅である大阪メトロ御堂筋線「中津駅」からは徒歩5分の距離に位置しています。ビルの外観は、ブラウンを基調とした外壁と整然と並んだ窓が特徴的です。エレベーターは2基設置。新耐震基準を満たした設計となっているため、地震などの災害時にも一定の安全性が確保されています。