三栄ビル
印刷
物件概要
| 住所 | 大阪府大阪市北区豊崎3-20-9 | 総階数 | 11階/地下1階 |
|---|---|---|---|
| 最寄駅 |
大阪メトロ御堂筋線中津駅 徒歩2分 阪急神戸本線中津駅 徒歩4分 大阪メトロ御堂筋線梅田駅 徒歩7分 |
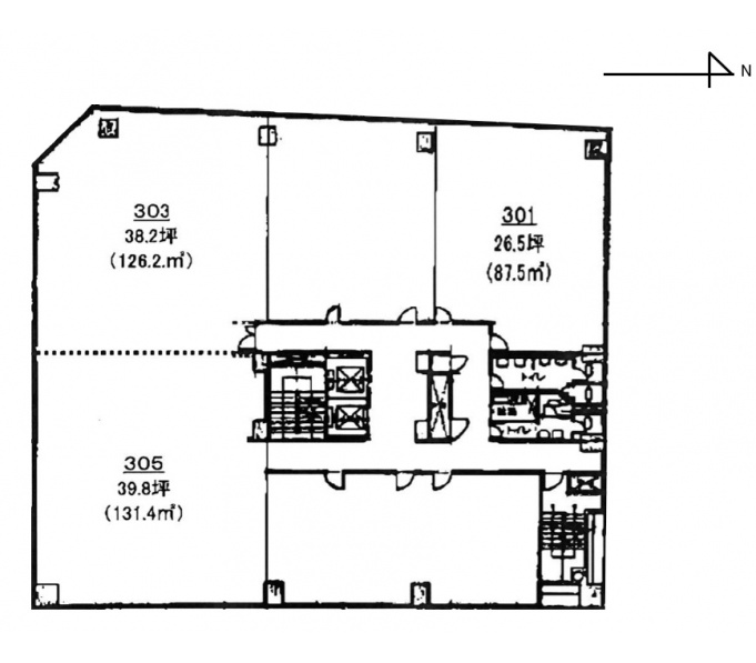
延床面積/基準階面積 | 2032.00坪 / 211.00坪 |
| 建物構造 | 鉄骨鉄筋コンクリート造 | ||
| 竣工年月 | 1975年2月 | 備考 | - |
| リニューアル | - | ||
基準階面積は共用部面積を含む場合がございます。
物件設備・条件
| エレベーター | あり 総台数 2基 |
トイレ | 男女別 |
|---|---|---|---|
| 空調 | セントラル空調 平 日 7 : 30 〜 23 : 00 土 曜 - : - 〜 - : - 日・祝 - : - 〜 - : - |
正面玄関 開放時間 |
- |
| 天井高 | - | 駐車場 | 駐車場あり |
| フロア | - | 駐輪場 | - |
| セキュリティー | 機械警備 | 貸会議室 | - |
| BCP対応 | - | リフレッシュルーム | なし |
| 立地 | 駅3分以内 大通り沿い |
店舗 | - |
| ビル規模 | 大規模ビル (延床3,000坪以上or貸床200坪以上) |
建物種別 | オフィスビル |

- 総合評価
-




2.5
評価の見方
- 立地
- 駅からビルまでの利便性やコンビニや郵便局などの周辺環境で評価がついています。
- 共用
- ビルの共⽤部(エントランス、外壁などのリニューアル、セキュリー他)共⽤施設の充実度で評価がついています。
- 専有
- 貸室内の設備(天井⾼・OAフロア・個別空調など)で評価がついています。
- BCP対応
- 新耐震基準や地震時強い免震・制震構造・停電時に必要な⾮常⽤電源対応などで評価がついています。
- ステージ君
- オフィステージ コンシェルジュ ステージ君のズバリの評価になります。

三栄ビルは、大阪屈指の繁華街、ビジネス街である梅田エリアのすぐ北側、北区豊崎3丁目に建つ、地上11階地下1階建てのオフィスビルです。角地に建っていることと、1階テナントとして入居するコンビニが目印になるので視認性は良好です。最寄り駅は大阪メトロ御堂筋線の「中津駅」で徒歩2分、阪急線「梅田駅」の一番北側に当たる茶屋町口から徒歩5分程度、JR「大阪駅」も7・8分ですので、人気の梅田エリアが徒歩圏内という、大変魅力的な立地です。ビルには駐車場も完備、社有車をお持ちの企業様も安心してご入居いただけます。ワンフロア200坪ほどで、様々な大きさに分割され、来店型オフィスなど、業種の相談も幅広く可能です。空調は月曜日から金曜日の7時30分から23時までの費用が共益費に含まれるセントラル空調方式ですが、業種によっては個別空調対応もできます。周辺には飲食店、物販店も多く、従業員様のランチや買出しにも不便はありません。
- 立地
-




- 共用
-




- 専有
-




- BCP対応
-




- ステージ君
-





非公開とは?
賃料が「非公開」の物件は、オーナー様のご希望で賃料が非公開となっております。
賃料の目安についてはお気軽にお問い合わせください。
- 中津の大規模ビルの平均坪単価
- 12,682円





