新大阪第27松屋ビル(旧)新大阪サンアールセンタービル
印刷
物件写真
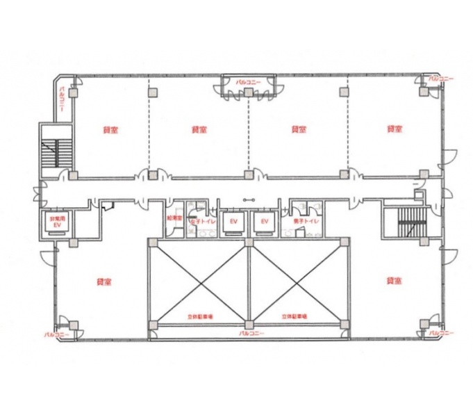
区画図(基準階)
物件概要
| 住所 | 大阪府大阪市淀川区宮原5-1-18 | 総階数 | 16階/地下1階 |
|---|---|---|---|
| 最寄駅 |
大阪メトロ御堂筋線東三国駅 徒歩2分 大阪メトロ御堂筋線新大阪駅 徒歩8分 JR東海道線東淀川駅 徒歩9分 |
延床面積/基準階面積 | 4144.00坪 / 218.00坪 |
| 建物構造 | 鉄骨鉄筋コンクリート造 | ||
| 竣工年月 | 1991年8月 | 備考 | - |
| リニューアル | - | ||
基準階面積は共用部面積を含む場合がございます。
物件設備・条件
| エレベーター | あり 総台数 3基 うち荷物用EV 1基 |
トイレ | 男女別 ウォシュレットあり |
|---|---|---|---|
| 空調 | 個別空調 24時間使用可 | 正面玄関 開放時間 |
- |
| 天井高 | - | 駐車場 | 駐車場あり 総台数 109台 |
| フロア | OAフロアあり | 駐輪場 | 駐輪場なし |
| セキュリティー | 機械警備 | 貸会議室 | あり |
| BCP対応 | 新耐震基準適合 | リフレッシュルーム | あり |
| 立地 | 駅3分以内 大通り沿い |
店舗 | - |
| ビル規模 | 大規模ビル (延床3,000坪以上or貸床200坪以上) |
建物種別 | オフィスビル |

- 総合評価
-




4
評価の見方
- 立地
- 駅からビルまでの利便性やコンビニや郵便局などの周辺環境で評価がついています。
- 共用
- ビルの共⽤部(エントランス、外壁などのリニューアル、セキュリー他)共⽤施設の充実度で評価がついています。
- 専有
- 貸室内の設備(天井⾼・OAフロア・個別空調など)で評価がついています。
- BCP対応
- 新耐震基準や地震時強い免震・制震構造・停電時に必要な⾮常⽤電源対応などで評価がついています。
- ステージ君
- オフィステージ コンシェルジュ ステージ君のズバリの評価になります。

新大阪第27松屋ビルは1991年8月(新耐震基準)のビルです。最寄駅は大阪地下鉄御堂筋線「新大阪駅」徒歩8分、「東三国駅」徒歩2分にあり、新御堂筋沿いの東・西・北の3方角地の立地でビルは敷地よりセットバックしており、広々とした緑化空間になっています。正面玄関は1面ガラス張りで1エントランスにはコンシェルジュがおり、ビルに来社のお客様にも対応しております。なんといってもビルご入居社様へのサービスが充実しており、ビル内にパーティールームや貸会議室、カーシェアリング、各種備品の貸出などもしており、普段使わないけど少し必要といったものが揃っているので、サービスを気に入ってご入居されるお客様もいます。お部屋も20〜170坪まで広い面積があり、お客様のご要望に応じて間仕切りすることも可能です。人材派遣やメーカー業種のお客様が多くご利用されております。
評価詳細を表示
- 立地
-




- 共用
-




- 専有
-




- BCP対応
-




- ステージ君
-





非公開とは?
賃料が「非公開」の物件は、オーナー様のご希望で賃料が非公開となっております。
賃料の目安についてはお気軽にお問い合わせください。
- 新大阪北の大規模ビルの平均坪単価
- 14,104円





