大阪駅前第3ビル
印刷
物件写真
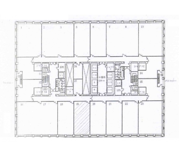
区画図(基準階)
物件概要
| 住所 | 大阪府大阪市北区梅田1-1-3 | 総階数 | 34階/地下4階 |
|---|---|---|---|
| 最寄駅 |
JR東西線北新地駅 徒歩2分 阪神本線大阪梅田駅 徒歩4分 大阪メトロ谷町線東梅田駅 徒歩4分 |
延床面積/基準階面積 | 36685.99坪 / 521.00坪 |
| 建物構造 | 鉄骨鉄筋コンクリート造 | ||
| 竣工年月 | 1979年9月 | 備考 | - |
| リニューアル | - | ||
基準階面積は共用部面積を含む場合がございます。
物件設備・条件
| エレベーター | あり 総台数 16基 |
トイレ | 男女別 ウォシュレットあり |
|---|---|---|---|
| 空調 | セントラル空調 補助空調あり 平 日 8 : 30 〜 18 : 30 土 曜 - : - 〜 - : - 日・祝 - : - 〜 - : - |
正面玄関 開放時間 |
- |
| 天井高 | 2500mm | 駐車場 | 駐車場あり |
| フロア | - | 駐輪場 | - |
| セキュリティー | 機械警備 常駐警備 |
貸会議室 | - |
| BCP対応 | - | リフレッシュルーム | なし |
| 立地 | 駅3分以内 大通り沿い |
店舗 | - |
| ビル規模 | 大規模ビル (延床3,000坪以上or貸床200坪以上) |
建物種別 | オフィスビル |

- 総合評価
-




3
評価の見方
- 立地
- 駅からビルまでの利便性やコンビニや郵便局などの周辺環境で評価がついています。
- 共用
- ビルの共⽤部(エントランス、外壁などのリニューアル、セキュリー他)共⽤施設の充実度で評価がついています。
- 専有
- 貸室内の設備(天井⾼・OAフロア・個別空調など)で評価がついています。
- BCP対応
- 新耐震基準や地震時強い免震・制震構造・停電時に必要な⾮常⽤電源対応などで評価がついています。
- ステージ君
- オフィステージ コンシェルジュ ステージ君のズバリの評価になります。

大阪駅前第3ビルは、等間隔に並んだ窓が目を引くオフィスビルです。御堂筋と国道2号線が交わる角地に建っていることから視認性はバツグン!初めて来社されたお客様でも見つけやすいビルとなっています。エントランスの内装は、白を基調とした落ち着いた雰囲気です。「北新地駅」から歩いて2分という駅近な立地も嬉しいポイント!毎日の通勤がラクチンなのはもちろん、仕事で外出するときにもとっても便利です!それぞれの部屋には、光ファイバーが引き込まれています。高速通信が利用できるので、インターネット環境は快適です!トイレは男女別で、ウォシュレットもしっかり完備。空調はそれぞれの部屋で自由に設定できるため、いつでも快適な環境で仕事に取り組めます!
評価詳細を表示
- 立地
-




- 共用
-




- 専有
-




- BCP対応
-




- ステージ君
-





非公開とは?
賃料が「非公開」の物件は、オーナー様のご希望で賃料が非公開となっております。
賃料の目安についてはお気軽にお問い合わせください。
- 梅田の大規模ビルの平均坪単価
- 17,305円






大阪駅前第3ビルは、1979年9月に竣工したオフィスビルです。大阪市北区梅田1-1-3にあり、鉄骨鉄筋コンクリート造地上34階建のオフィスビルとなっています。最寄駅であるJR東西線「北新地駅」から徒歩2分の距離に位置しており、通勤や外出の際の利便性に優れています。また、阪神本線「梅田駅」、大阪メトロ谷町線「東梅田駅」からも徒歩4分でアクセス可能となっています。エレベーターは7基設置されているため、出退勤の混雑時にも待ち時間少なくスムーズに利用できます。天井高は2,500mmで、光ファイバーが引込済。共用部に設けられているトイレは男女別で、ウォシュレットも完備されています。空調は個別空調が導入されており、各オフィスで細かな温度設定が可能です。