銀泉桜橋ビル
印刷
物件写真
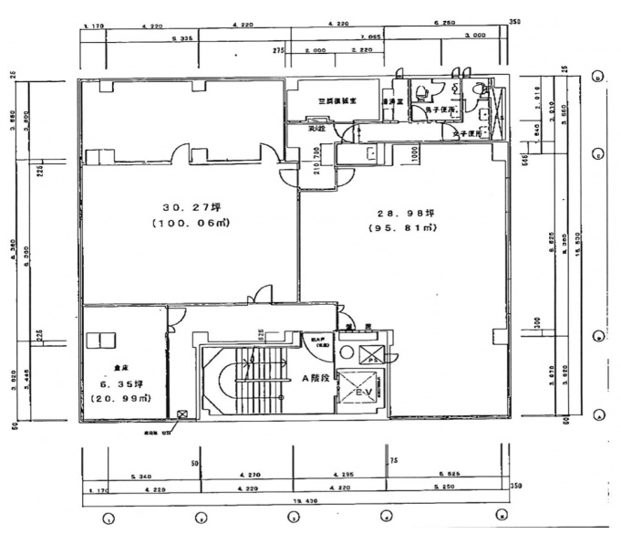
区画図(基準階)
物件概要
| 住所 | 大阪府大阪市北区曽根崎新地1-4-10 | 総階数 | 9階/地下2階 |
|---|---|---|---|
| 最寄駅 |
JR東西線北新地駅 徒歩1分 大阪メトロ四つ橋線西梅田駅 徒歩2分 阪神本線大阪梅田駅 徒歩3分 |
延床面積/基準階面積 | 929.91坪 / 74.77坪 |
| 建物構造 | 鉄骨鉄筋コンクリート造 | ||
| 竣工年月 | 1973年10月 | 備考 | - |
| リニューアル | - | ||
基準階面積は共用部面積を含む場合がございます。
物件設備・条件
| エレベーター | あり 総台数 1基 |
トイレ | 男女別 ウォシュレットあり |
|---|---|---|---|
| 空調 | 個別空調 24時間使用可 | 正面玄関 開放時間 |
平 日 7 : 30 〜 21 : 00 土 曜 7 : 30 〜 21 : 00 日・祝 9 : 00 〜 21 : 00 |
| 天井高 | 2600mm | 駐車場 | 駐車場あり |
| フロア | OAフロアあり | 駐輪場 | - |
| セキュリティー | 機械警備 | 貸会議室 | - |
| BCP対応 | 新耐震基準適合 | リフレッシュルーム | なし |
| 立地 | 駅3分以内 大通り沿い |
店舗 | - |
| ビル規模 | 中型ビル (貸床50坪〜100坪) |
建物種別 | オフィスビル |

- 総合評価
-




3.5
評価の見方
- 立地
- 駅からビルまでの利便性やコンビニや郵便局などの周辺環境で評価がついています。
- 共用
- ビルの共⽤部(エントランス、外壁などのリニューアル、セキュリー他)共⽤施設の充実度で評価がついています。
- 専有
- 貸室内の設備(天井⾼・OAフロア・個別空調など)で評価がついています。
- BCP対応
- 新耐震基準や地震時強い免震・制震構造・停電時に必要な⾮常⽤電源対応などで評価がついています。
- ステージ君
- オフィステージ コンシェルジュ ステージ君のズバリの評価になります。

銀泉桜橋ビルは、横に広く取られた窓が目を引くオフィスビルです。四つ橋筋沿いの角地に建っていることから視認性はバツグン!初めて来社されたお客様でも見つけやすいビルとなっています。「西梅田駅」や「北新地駅」から歩いて1分という駅近な立地も嬉しいポイント。毎日の通勤がラクチンなのはもちろん、仕事で外出するときにもとっても便利です!インターネット回線は光ファイバー!高速通信で快適なインターネット環境を実現しています。床はOAフロアになっているので、たくさんの機器を使う職場でも配線が邪魔になりません。空調はそれぞれの部屋で自由に設定できるため、仕事中は常に快適。セキュリティーもバッチリなので、いつでも安心して仕事に取り組めます!
評価詳細を表示
- 立地
-




- 共用
-




- 専有
-




- BCP対応
-




- ステージ君
-





非公開とは?
賃料が「非公開」の物件は、オーナー様のご希望で賃料が非公開となっております。
賃料の目安についてはお気軽にお問い合わせください。
- 堂島・中之島の中型ビルの平均坪単価
- 14,629円






銀泉桜橋ビルは、1973年10月に竣工したオフィスビルです。大阪市北区曽根崎新地1-4-10にあり、鉄骨鉄筋コンクリート造地上9階、地下2階、塔屋1階建のオフィスビルとなっています。最寄駅である大阪メトロ四つ橋線「西梅田駅」、JR東西線「北新地駅」から徒歩1分の距離に位置しており、通勤や外出の際の利便性に優れています。エレベーターは1基設置。天井高は2,545mmで、光ファイバーが引込済です。床面はOAフロアに対応しているため、配線を床下に収納できます。共用部に設けられているトイレは男女別。空調は個別空調が導入されており、各オフィスで細かな温度設定が可能です。機械警備によって管理されていることから、セキュリティー面も万全です。