堺筋MS第2ビル
印刷
物件写真
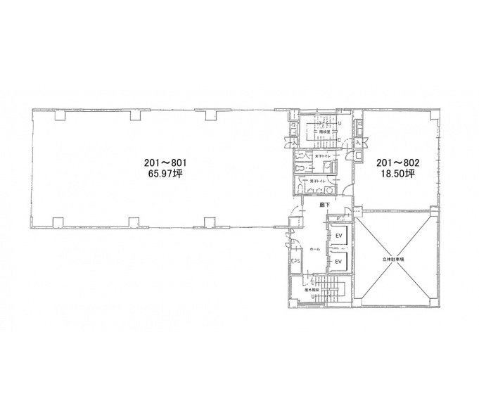
区画図(基準階)
物件概要
| 住所 | 大阪府大阪市中央区博労町1-9-8 | 総階数 | 11階/地下1階 |
|---|---|---|---|
| 最寄駅 |
大阪メトロ中央線堺筋本町駅 徒歩4分 大阪メトロ長堀鶴見緑地線長堀橋駅 徒歩4分 大阪メトロ堺筋線長堀橋駅 徒歩5分 |
延床面積/基準階面積 | 1122.24坪 / 84.47坪 |
| 建物構造 | 鉄骨鉄筋コンクリート造 | ||
| 竣工年月 | 1991年11月 | 備考 | - |
| リニューアル | 2018年7月 エントランス、共用部 | ||
基準階面積は共用部面積を含む場合がございます。
物件設備・条件
| エレベーター | あり 総台数 2基 |
トイレ | 男女別 ウォシュレットあり |
|---|---|---|---|
| 空調 | 個別空調 24時間使用可 | 正面玄関 開放時間 |
平 日 8 : 00 〜 20 : 00 土 曜 8 : 00 〜 20 : 00 日・祝 - : - 〜 - : - |
| 天井高 | 2450mm | 駐車場 | 駐車場あり |
| フロア | OAフロアあり 50mm | 駐輪場 | 駐輪場あり |
| セキュリティー | 機械警備 | 貸会議室 | なし |
| BCP対応 | 新耐震基準適合 | リフレッシュルーム | なし |
| 立地 | - | 店舗 | - |
| ビル規模 | 中型ビル (貸床50坪〜100坪) |
建物種別 | オフィスビル |

- 総合評価
-




3.5
評価の見方
- 立地
- 駅からビルまでの利便性やコンビニや郵便局などの周辺環境で評価がついています。
- 共用
- ビルの共⽤部(エントランス、外壁などのリニューアル、セキュリー他)共⽤施設の充実度で評価がついています。
- 専有
- 貸室内の設備(天井⾼・OAフロア・個別空調など)で評価がついています。
- BCP対応
- 新耐震基準や地震時強い免震・制震構造・停電時に必要な⾮常⽤電源対応などで評価がついています。
- ステージ君
- オフィステージ コンシェルジュ ステージ君のズバリの評価になります。

大阪市中央区博労町1丁目にございます。最寄り駅は地下鉄堺筋線「堺筋本町」駅徒歩5分、地下鉄堺筋線「長堀橋」駅徒歩5分となっております。平成3年11月竣工の新耐震基準のオフィスビルで、外観はグレーの御影石造りで高級感がございます。ビル内にはエレベーター2基、貸室はOA、個別空調、24時間使用可で、トイレは男女別ウォシュレット付きです。また地下に機械式駐車場を併設しております。契約時には電気基本料、水道代が掛かりますので、事前に確認が必要です。
評価詳細を表示
- 立地
-




- 共用
-




- 専有
-




- BCP対応
-




- ステージ君
-





非公開とは?
賃料が「非公開」の物件は、オーナー様のご希望で賃料が非公開となっております。
賃料の目安についてはお気軽にお問い合わせください。
- 心斎橋・南船場の中型ビルの平均坪単価
- 9,984円






堺筋MS第2ビルは、1991年11月に竣工したオフィスビルです。大阪市中央区博労町1-9-8にあり、鉄骨鉄筋コンクリート造地上11階、地下1階建のオフィスビルとなっています。最寄駅である大阪メトロ堺筋線「堺筋本町駅」からは、徒歩4分の距離に位置しています。ビルの外観は、グレーを基調とした外壁と各階で横に広く設計された窓が特徴的です。エレベーターは2基設置されているため、時間帯に左右されずスムーズに利用できます。新耐震基準を満たしていることから、地震などの災害時にも一定の安全性が確保されています。光ファイバーは引込済で、床面はOAフロアに対応。共用部には男女別のトイレが設けられています。空調は個別空調が導入されており、各オフィスで細かな温度設定が可能です。