マキセビル
印刷
物件写真
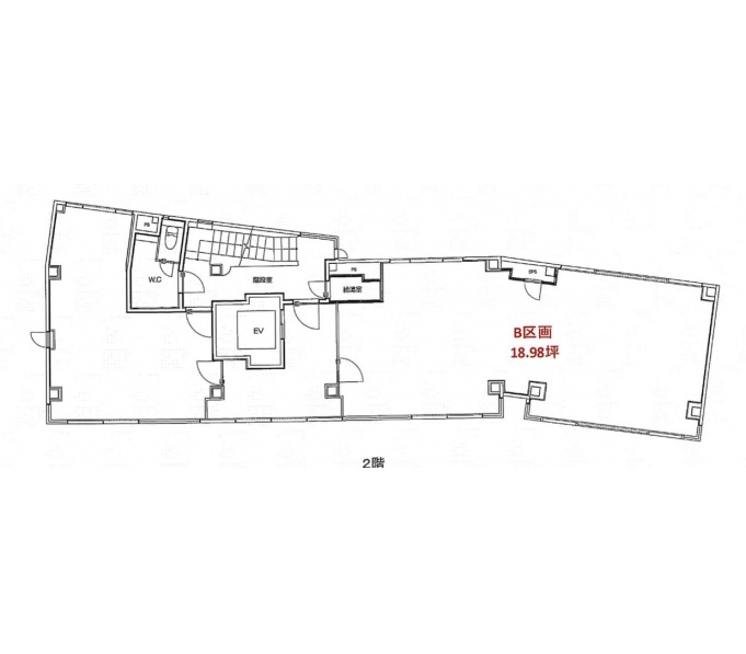
区画図(基準階)
物件概要
| 住所 | 大阪府大阪市西区土佐堀1-1-21 | 総階数 | 5階 |
|---|---|---|---|
| 最寄駅 |
大阪メトロ四つ橋線肥後橋駅 徒歩1分 京阪中之島線渡辺橋駅 徒歩2分 京阪中之島線大江橋駅 徒歩5分 |
延床面積/基準階面積 | - / 29.00坪 |
| 建物構造 | 鉄骨造 | ||
| 竣工年月 | 1999年2月 | 備考 | - |
| リニューアル | - | ||
基準階面積は共用部面積を含む場合がございます。
物件設備・条件
| エレベーター | あり 総台数 1基 |
トイレ | 男女別 ウォシュレットあり |
|---|---|---|---|
| 空調 | 個別空調 24時間使用可 | 正面玄関 開放時間 |
平 日 7 : 00 〜 20 : 00 土 曜 7 : 00 〜 20 : 00 日・祝 7 : 00 〜 20 : 00 |
| 天井高 | 2400mm | 駐車場 | 駐車場なし |
| フロア | OAフロアあり | 駐輪場 | - |
| セキュリティー | 機械警備 | 貸会議室 | - |
| BCP対応 | 新耐震基準適合 | リフレッシュルーム | なし |
| 立地 | 駅3分以内 | 店舗 | - |
| ビル規模 | 小型ビル (貸床〜50坪) |
建物種別 | オフィスビル |

- 総合評価
-




3.5
評価の見方
- 立地
- 駅からビルまでの利便性やコンビニや郵便局などの周辺環境で評価がついています。
- 共用
- ビルの共⽤部(エントランス、外壁などのリニューアル、セキュリー他)共⽤施設の充実度で評価がついています。
- 専有
- 貸室内の設備(天井⾼・OAフロア・個別空調など)で評価がついています。
- BCP対応
- 新耐震基準や地震時強い免震・制震構造・停電時に必要な⾮常⽤電源対応などで評価がついています。
- ステージ君
- オフィステージ コンシェルジュ ステージ君のズバリの評価になります。

マキセビルは、タイル貼りの外壁と横に広く取られた窓が目を引くオフィスビルです。1999年に建てられたビルであるため耐震基準はしっかりクリア!万が一地震がきても安心です!「肥後橋駅」から歩いて3分という駅近な立地も嬉しいポイント。毎日の通勤がラクチンなのはもちろん、仕事で外出するときにもとっても便利です!オフィスの床はOAフロアになっているので、配線を床下にスッキリ収納できます。たくさんの機器を扱う職場でも配線が邪魔にならないため、オフィスレイアウトは自由自在です!空調はそれぞれの部屋で自由に設定できる個別空調。気温や体調に合わせて最適な温度調節ができることから、いつでも快適な環境で仕事に取り組めます!
評価詳細を表示
- 立地
-




- 共用
-




- 専有
-




- BCP対応
-




- ステージ君
-





非公開とは?
賃料が「非公開」の物件は、オーナー様のご希望で賃料が非公開となっております。
賃料の目安についてはお気軽にお問い合わせください。
- 肥後橋の小型ビルの平均坪単価
- 8,520円






マキセビルは、1999年2月に竣工したオフィスビルです。大阪市西区土佐堀1-1-21にあり、鉄骨造地上5階建のオフィスビルとなっています。最寄駅である大阪メトロ四つ橋線「肥後橋駅」から徒歩3分の距離に位置しており、通勤や外出の際の利便性に優れています。ビルの外観は、タイル張りとなっているグレーの外壁と、各階で横幅いっぱいに設計された窓が特徴的です。エレベーターは1基設置。新耐震基準を満たしていることから、地震などの災害時にも一定の安全性が確保されています。天井高は2,400mmで、床面はOAフロアに対応。共用部にはトイレが設けられているほか、給湯室も完備されています。空調は個別空調が導入されており、各オフィスで細かな温度設定が可能です。