三洋ビル
印刷
物件写真
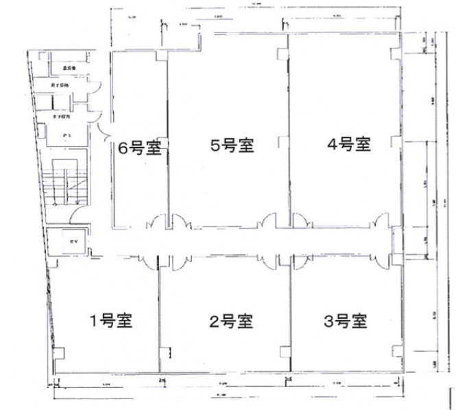
区画図(基準階)
物件概要
| 住所 | 大阪府大阪市西区江戸堀1-22-38 | 総階数 | 6階 |
|---|---|---|---|
| 最寄駅 |
大阪メトロ四つ橋線肥後橋駅 徒歩4分 京阪中之島線渡辺橋駅 徒歩5分 大阪メトロ四つ橋線本町駅 徒歩7分 |
延床面積/基準階面積 | 944.00坪 / 134.00坪 |
| 建物構造 | 鉄骨鉄筋コンクリート造 | ||
| 竣工年月 | 1976年 | 備考 | - |
| リニューアル | - | ||
基準階面積は共用部面積を含む場合がございます。
物件設備・条件
| エレベーター | あり 総台数 1基 |
トイレ | 男女別 ウォシュレットあり |
|---|---|---|---|
| 空調 | 個別空調 24時間使用可 | 正面玄関 開放時間 |
- |
| 天井高 | 2500mm | 駐車場 | 駐車場あり |
| フロア | OAフロアなし | 駐輪場 | 駐輪場なし |
| セキュリティー | 機械警備 | 貸会議室 | なし |
| BCP対応 | - | リフレッシュルーム | なし |
| 立地 | - | 店舗 | - |
| ビル規模 | 大型ビル (貸床100坪〜200坪) |
建物種別 | オフィスビル |

- 総合評価
-




2.5
評価の見方
- 立地
- 駅からビルまでの利便性やコンビニや郵便局などの周辺環境で評価がついています。
- 共用
- ビルの共⽤部(エントランス、外壁などのリニューアル、セキュリー他)共⽤施設の充実度で評価がついています。
- 専有
- 貸室内の設備(天井⾼・OAフロア・個別空調など)で評価がついています。
- BCP対応
- 新耐震基準や地震時強い免震・制震構造・停電時に必要な⾮常⽤電源対応などで評価がついています。
- ステージ君
- オフィステージ コンシェルジュ ステージ君のズバリの評価になります。

三洋ビルは、一部がガラス張りになっている外壁が目を引くオフィスビルです。ガラス張り部分が前にせり出しているユニークな形をしているので、初めて来社されるお客様でも見つけやすいビルとなっています。エントランスの内装は白い大理石調で、清潔感のある落ち着いた雰囲気です。1976年に建てられたビルですが、古さをあまり感じさせません。「淀屋橋駅」から歩いて3分という駅近な立地も大きなポイント。毎日の通勤や、仕事で外出するときにも便利です!それぞれの部屋には光ファイバーが引き込まれていて、快適にインターネットが利用できます。トイレは男女別で、ウォシュレットもしっかり完備!空調はそれぞれの部屋で自由に調節できるので、快適なオフィス環境が保てます。セキュリティーもバッチリなので、どんなときでも安心して仕事に取り組めます。
評価詳細を表示
- 立地
-




- 共用
-




- 専有
-




- BCP対応
-




- ステージ君
-





非公開とは?
賃料が「非公開」の物件は、オーナー様のご希望で賃料が非公開となっております。
賃料の目安についてはお気軽にお問い合わせください。
- 肥後橋の大型ビルの平均坪単価
- 8,480円






三洋ビルは、1976年に竣工したオフィスビルです。大阪市西区江戸堀1-22-38にある鉄骨鉄筋コンクリート造地上6階建のオフィスビルで、大阪メトロ四つ橋線「肥後橋駅」から徒歩3分の距離にあります。また、近くには京阪中之島線「渡辺橋駅」、大阪メトロ御堂筋線・京阪本線「淀屋橋駅」もあり、4路線3駅からアクセスできるため通勤・外出時の利便性に優れています。オフィス内には光ファイバーが引込済。各階共用部には、男女別のウォシュレットトイレや給湯室が完備されています。個別空調が導入されているため、オフィス毎に細かい空調管理が可能です。ビル内は24時間対応の機械警備によって管理されているため、セキュリティー面も万全です。