JMFビル肥後橋01(旧)肥後橋MIDビル
印刷
物件概要
| 住所 | 大阪府大阪市西区江戸堀1-5-16 | 総階数 | 11階/地下1階 |
|---|---|---|---|
| 最寄駅 |
大阪メトロ四つ橋線肥後橋駅 徒歩1分 京阪中之島線渡辺橋駅 徒歩4分 大阪メトロ御堂筋線淀屋橋駅 徒歩4分 |
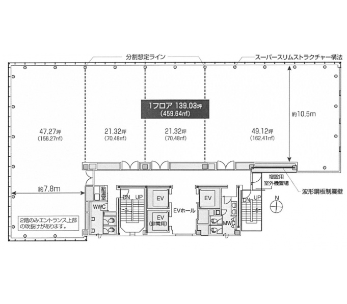
延床面積/基準階面積 | 2047.15坪 / 139.04坪 |
| 建物構造 | 鉄骨造 | ||
| 竣工年月 | 2010年1月 | 備考 | - |
| リニューアル | - | ||
基準階面積は共用部面積を含む場合がございます。
物件設備・条件
| エレベーター | あり 総台数 3基 うち荷物用EV 1基 |
トイレ | 男女別 ウォシュレットあり |
|---|---|---|---|
| 空調 | 個別空調 24時間使用可 | 正面玄関 開放時間 |
平 日 8 : 00 〜 19 : 00 土 曜 - : - 〜 - : - 日・祝 - : - 〜 - : - |
| 天井高 | 2800mm グリッド天井 |
駐車場 | 駐車場あり 総台数 18台 |
| フロア | OAフロアあり 100mm | 駐輪場 | 駐輪場あり |
| セキュリティー | 機械警備 | 貸会議室 | なし |
| BCP対応 | 新耐震基準適合 | リフレッシュルーム | あり |
| 立地 | 駅3分以内 大通り沿い |
店舗 | - |
| ビル規模 | 大型ビル (貸床100坪〜200坪) |
建物種別 | オフィスビル |

- 総合評価
-




4.5
評価の見方
- 立地
- 駅からビルまでの利便性やコンビニや郵便局などの周辺環境で評価がついています。
- 共用
- ビルの共⽤部(エントランス、外壁などのリニューアル、セキュリー他)共⽤施設の充実度で評価がついています。
- 専有
- 貸室内の設備(天井⾼・OAフロア・個別空調など)で評価がついています。
- BCP対応
- 新耐震基準や地震時強い免震・制震構造・停電時に必要な⾮常⽤電源対応などで評価がついています。
- ステージ君
- オフィステージ コンシェルジュ ステージ君のズバリの評価になります。

肥後橋MIDビルは、2010年1月竣工(新耐震基準)のビルです。外観はガラスウォールが目を引く、スタイリッシュなオフィスビルです。四つ橋筋沿いの北西角地に位置することから視認性はバツグン!地下鉄四ツ橋線「肥後橋駅」からも徒歩1分という近さで、初めて来社されたお客様でも見つけやすいビルとなっています。毎日の通勤がラクチンなのはもちろん、仕事で外出する時にもとっても便利です!ビルには3つのエレベーターがあるため、朝の通勤ラッシュでも焦ることはありません。1フロアは139坪で約21坪からの分割も対応可能です。天井高は2,800mmもあり、開放感のある無柱空間になっており、グリット天井なのでフレキシブルなレイアウトも可能!!床はOAフロアが100mmあるので、コールセンターなどの通信機器の多いお客様にも配線が邪魔になることがないのでオススメです!!また、波形鋼板制震壁を採用しておるので地震があっても安心です!!屋上には屋上緑化とリフレッシュルームがあるのでビル内での気分転換もできるオフィス環境です。
- 立地
-




- 共用
-




- 専有
-




- BCP対応
-




- ステージ君
-





非公開とは?
賃料が「非公開」の物件は、オーナー様のご希望で賃料が非公開となっております。
賃料の目安についてはお気軽にお問い合わせください。
- 肥後橋の大型ビルの平均坪単価
- 8,480円






肥後橋MIDビルは、2010年1月に竣工したオフィスビルです。大阪市西区江戸堀1-1-38にあり、鉄骨鉄筋コンクリート造地上11階、地下1階、塔屋1階建のオフィスビルとなっています。最寄駅である大阪メトロ四つ橋線「肥後橋駅」から徒歩1分の距離に位置しており、通勤や外出の際の利便性に優れています。エレベーターは乗用が2基、非常用が1基の計3基設置されているため、時間帯に左右されずスムーズに利用できます。新耐震基準を満たしていることから、地震などの災害時にも一定の安全性が確保されています。天井高は2,800mmで、光ファイバーが引込済。床面はOAフロアに対応しており、煩わしい配線を床下に収納できます。共用部には男女別のトイレが設けられているほか、給湯室も完備されています。空調は個別空調が導入されているため、各オフィスで細かな温度設定が可能です。