山下ビル
印刷
物件写真
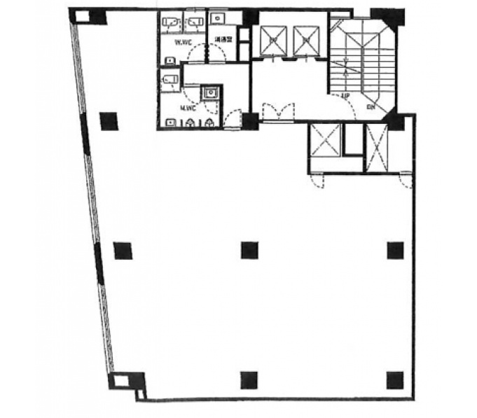
区画図(基準階)
物件概要
| 住所 | 大阪府大阪市西区江戸堀1-2-16 | 総階数 | 10階/地下2階 |
|---|---|---|---|
| 最寄駅 |
大阪メトロ四つ橋線肥後橋駅 徒歩1分 京阪中之島線渡辺橋駅 徒歩3分 大阪メトロ御堂筋線淀屋橋駅 徒歩4分 |
延床面積/基準階面積 | - / 67.00坪 |
| 建物構造 | 鉄骨鉄筋コンクリート造 | ||
| 竣工年月 | 1967年5月 | 備考 | - |
| リニューアル | - | ||
基準階面積は共用部面積を含む場合がございます。
物件設備・条件
| エレベーター | あり 総台数 2基 |
トイレ | 男女別 ウォシュレットなし |
|---|---|---|---|
| 空調 | 個別空調 24時間使用可 | 正面玄関 開放時間 |
平 日 7 : 30 〜 19 : 00 土 曜 7 : 30 〜 17 : 00 日・祝 - : - 〜 - : - |
| 天井高 | - | 駐車場 | 駐車場なし |
| フロア | OAフロアあり | 駐輪場 | - |
| セキュリティー | 機械警備 | 貸会議室 | なし |
| BCP対応 | - | リフレッシュルーム | なし |
| 立地 | 駅3分以内 大通り沿い |
店舗 | - |
| ビル規模 | 中型ビル (貸床50坪〜100坪) |
建物種別 | オフィスビル |

- 総合評価
-




3
評価の見方
- 立地
- 駅からビルまでの利便性やコンビニや郵便局などの周辺環境で評価がついています。
- 共用
- ビルの共⽤部(エントランス、外壁などのリニューアル、セキュリー他)共⽤施設の充実度で評価がついています。
- 専有
- 貸室内の設備(天井⾼・OAフロア・個別空調など)で評価がついています。
- BCP対応
- 新耐震基準や地震時強い免震・制震構造・停電時に必要な⾮常⽤電源対応などで評価がついています。
- ステージ君
- オフィステージ コンシェルジュ ステージ君のズバリの評価になります。

山下ビルは、グレーの外壁と横に広く取られた窓が目を引くオフィスビルです。四つ橋筋沿いに建っていることから視認性はバツグン!初めて来社されたお客様でも見つけやすいビルとなっています。「肥後橋駅」から歩いて1分という駅近な立地も嬉しいポイント。毎日の通勤がラクチンなのはもちろん、仕事で外出するときにもとっても便利です!ビルには2つのエレベーターがあるので、朝の通勤ラッシュでも焦ることはありません。オフィスの床はOAフロアになっているため、配線を床下にスッキリ収納できます。たくさんの機器を扱う職場でも配線が邪魔にならないので、オフィスレイアウトは自由自在です!空調はそれぞれの部屋で自由に設定できることから、仕事中は常に快適。セキュリティーもバッチリなので、いつでも安心して仕事に取り組めます!
評価詳細を表示
- 立地
-




- 共用
-




- 専有
-




- BCP対応
-




- ステージ君
-





非公開とは?
賃料が「非公開」の物件は、オーナー様のご希望で賃料が非公開となっております。
賃料の目安についてはお気軽にお問い合わせください。
- 肥後橋の中型ビルの平均坪単価
- 9,042円






山下ビルは、1967年5月に竣工したオフィスビルです。大阪市西区江戸堀1-2-16にある鉄骨鉄筋コンクリート造地上8階、地下2階建のオフィスビルで、大阪メトロ四つ橋線「肥後橋駅」から徒歩1分の距離にあります。ビルの外観は、グレーの外壁が特徴的です。エントランスの内装は、白を基調としています。ビル内にはエレベーターが2基完備され、混雑しがちな朝の通勤時にもスムーズに利用できます。室内はOAフロア対応で、煩雑になりがちなOA機器の配線や電話線を床下に収納することが可能です。各階共用部には、男女別トイレや給湯室を完備。空調は、個別空調です。正面玄関の開放時間は月~金曜日が7時30分~19時00分、土曜日が7時30分~17時00分です。ビルは機械警備によって管理されており、セキュリティー面も万全です。