三共肥後橋ビル
印刷
物件写真
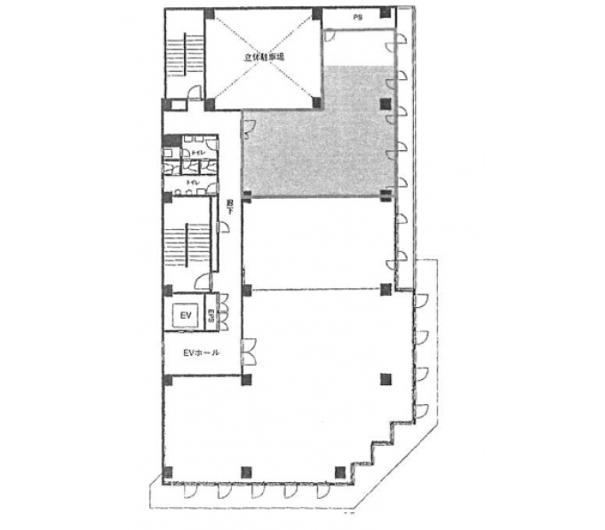
区画図(基準階)
物件概要
| 住所 | 大阪府大阪市西区江戸堀1-19-10 | 総階数 | 7階/地下1階 |
|---|---|---|---|
| 最寄駅 |
大阪メトロ四つ橋線肥後橋駅 徒歩3分 京阪中之島線渡辺橋駅 徒歩5分 大阪メトロ御堂筋線淀屋橋駅 徒歩6分 |
延床面積/基準階面積 | 867.00坪 / 98.00坪 |
| 建物構造 | 鉄骨鉄筋コンクリート造 | ||
| 竣工年月 | 1990年3月 | 備考 | - |
| リニューアル | - | ||
基準階面積は共用部面積を含む場合がございます。
物件設備・条件
| エレベーター | あり 総台数 1基 |
トイレ | 男女別 ウォシュレットあり |
|---|---|---|---|
| 空調 | 個別空調 24時間使用可 | 正面玄関 開放時間 |
平 日 8 : 00 〜 18 : 30 土 曜 - : - 〜 - : - 日・祝 - : - 〜 - : - |
| 天井高 | 2600mm | 駐車場 | 駐車場あり |
| フロア | OAフロアあり | 駐輪場 | 駐輪場なし |
| セキュリティー | 機械警備 | 貸会議室 | なし |
| BCP対応 | 新耐震基準適合 | リフレッシュルーム | なし |
| 立地 | 駅3分以内 | 店舗 | - |
| ビル規模 | 中型ビル (貸床50坪〜100坪) |
建物種別 | オフィスビル |

- 総合評価
-




4
評価の見方
- 立地
- 駅からビルまでの利便性やコンビニや郵便局などの周辺環境で評価がついています。
- 共用
- ビルの共⽤部(エントランス、外壁などのリニューアル、セキュリー他)共⽤施設の充実度で評価がついています。
- 専有
- 貸室内の設備(天井⾼・OAフロア・個別空調など)で評価がついています。
- BCP対応
- 新耐震基準や地震時強い免震・制震構造・停電時に必要な⾮常⽤電源対応などで評価がついています。
- ステージ君
- オフィステージ コンシェルジュ ステージ君のズバリの評価になります。

三共肥後橋ビルは、ガラス張りの外壁が印象的なオフィスビルです。交差点の角地に建っているため、視認性は抜群。初めてビルを訪れるお客様にも、すぐに見つけていただけます。「肥後橋駅」から歩いて2分のところにあるので、通勤や外出にも便利です!ビル内の廊下には、プラスチックのリサイクルによって造られた「ロボフロアータイル」を使用。ロボフロアータイルが持つ抗菌性能や防音性、保湿性で、どんな季節も過ごしやすい空間になっています。オフィス内のインターネット回線は光ファイバー。高速通信や、容量が大きいデータのやりとりもお手の物です。床はOAフロアにできるため、配線にとらわれないオフィスレイアウトを実現します。セキュリティー対策もバッチリなので、退社後も安心です!
評価詳細を表示
- 立地
-




- 共用
-




- 専有
-




- BCP対応
-




- ステージ君
-





非公開とは?
賃料が「非公開」の物件は、オーナー様のご希望で賃料が非公開となっております。
賃料の目安についてはお気軽にお問い合わせください。
- 肥後橋の中型ビルの平均坪単価
- 9,042円






三共肥後橋ビルは、1990年3月に竣工したオフィスビルです。大阪市西区江戸堀1-19-10にある鉄骨鉄筋コンクリート造地上7階建のオフィスビルで、大阪メトロ四つ橋線「肥後橋駅」から徒歩2分の距離にあります。ビルの外観は、ガラス張りの外壁が特徴的です。エントランスの内装は、アイボリーを基調としています。室内はOAフロアに対応しており、煩雑になりがちなOA機器の配線や電話線を床下に収納することが可能です。天井高は2,550mmとなっています。各階共用部にはウォシュレット付き男女別トイレや給湯室を完備。空調は個別空調です。駐車場は、専用の駐車場が完備されています。ビルは機械警備によって管理されており、セキュリティー面も万全です。