肥後橋ルーセントビル
印刷
物件概要
| 住所 | 大阪府大阪市西区京町堀1-6-2 | 総階数 | 11階/地下1階 |
|---|---|---|---|
| 最寄駅 |
大阪メトロ四つ橋線肥後橋駅 徒歩1分 京阪本線淀屋橋駅 徒歩6分 大阪メトロ御堂筋線本町駅 徒歩6分 |
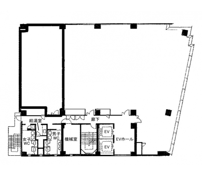
延床面積/基準階面積 | 2148.00坪 / 143.00坪 |
| 建物構造 | 鉄骨鉄筋コンクリート造 | ||
| 竣工年月 | 1993年2月 | 備考 | - |
| リニューアル | - | ||
基準階面積は共用部面積を含む場合がございます。
物件設備・条件
| エレベーター | あり 総台数 2基 |
トイレ | 男女別 ウォシュレットあり |
|---|---|---|---|
| 空調 | 個別空調 24時間使用可 | 正面玄関 開放時間 |
平 日 8 : 00 〜 19 : 00 土 曜 8 : 00 〜 18 : 00 日・祝 - : - 〜 - : - |
| 天井高 | 2600mm | 駐車場 | 駐車場あり |
| フロア | OAフロアあり | 駐輪場 | - |
| セキュリティー | 機械警備 常駐警備 |
貸会議室 | - |
| BCP対応 | 新耐震基準適合 | リフレッシュルーム | なし |
| 立地 | 駅3分以内 大通り沿い |
店舗 | - |
| ビル規模 | 大型ビル (貸床100坪〜200坪) |
建物種別 | オフィスビル |

- 総合評価
-




4
評価の見方
- 立地
- 駅からビルまでの利便性やコンビニや郵便局などの周辺環境で評価がついています。
- 共用
- ビルの共⽤部(エントランス、外壁などのリニューアル、セキュリー他)共⽤施設の充実度で評価がついています。
- 専有
- 貸室内の設備(天井⾼・OAフロア・個別空調など)で評価がついています。
- BCP対応
- 新耐震基準や地震時強い免震・制震構造・停電時に必要な⾮常⽤電源対応などで評価がついています。
- ステージ君
- オフィステージ コンシェルジュ ステージ君のズバリの評価になります。

肥後橋ルーセントビルは、西区京町堀1丁目に四ツ橋筋の西側に面して建つオフィスビルです。濃いグレーの外壁に整然と並ぶ窓とファサードの丸柱が印象的な外観で、道を挟んだ北隣のビル1階が「大阪肥後橋郵便局」ということもあって来客にも分かりやすく、視認性に優れた建物です。1993年竣工なので新耐震基準に適合、阪神大震災クラス(震度6〜7)の揺れでも建物が損壊、倒壊しない構造となっています。大阪メトロ四つ橋線「肥後橋駅」の7号出入り口から徒歩1分の好立地で、通勤や営業活動のアクセスが非常に良く、新規採用に当たっても有利なオフィス環境です。ワンフロアは約140坪、30坪程度からの分割区画があり、どの部屋もレイアウトのしやすさに配慮された四角形です。天井高は2,600mmとゆとりがあり、OAフロアも敷設済み。各階個別空調、男女別トイレ完備なので女性従業員様にも快適にお過ごしいただけます。近隣ビルのテナントとしてコンビニや飲食店も多く出店していますので、従業員様のランチや買い出しの不便はありません。
- 立地
-




- 共用
-




- 専有
-




- BCP対応
-




- ステージ君
-





非公開とは?
賃料が「非公開」の物件は、オーナー様のご希望で賃料が非公開となっております。
賃料の目安についてはお気軽にお問い合わせください。
- 肥後橋の大型ビルの平均坪単価
- 8,480円





