第三富士ビル
印刷
物件概要
| 住所 | 大阪府大阪市西区立売堀1-3-13 | 総階数 | 10階/地下1階 |
|---|---|---|---|
| 最寄駅 |
大阪メトロ四つ橋線本町駅 徒歩3分 大阪メトロ中央線本町駅 徒歩4分 大阪メトロ長堀鶴見緑地線心斎橋駅 徒歩5分 |
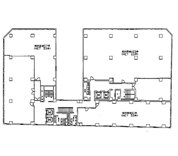
延床面積/基準階面積 | 3550.74坪 / - |
| 建物構造 | 鉄骨鉄筋コンクリート造 | ||
| 竣工年月 | 1970年9月 | 備考 | - |
| リニューアル | 2005年1月 エレベータ・トイレ リニューアル | ||
基準階面積は共用部面積を含む場合がございます。
物件設備・条件
| エレベーター | あり 総台数 4基 |
トイレ | 男女別 ウォシュレットあり |
|---|---|---|---|
| 空調 | 個別空調 24時間使用可 | 正面玄関 開放時間 |
- |
| 天井高 | - | 駐車場 | 駐車場あり |
| フロア | OAフロアあり 50mm | 駐輪場 | - |
| セキュリティー | 機械警備 常駐警備 |
貸会議室 | あり |
| BCP対応 | - | リフレッシュルーム | あり |
| 立地 | 駅3分以内 大通り沿い |
店舗 | - |
| ビル規模 | 大規模ビル (延床3,000坪以上or貸床200坪以上) |
建物種別 | オフィスビル |

- 総合評価
-




3.5
評価の見方
- 立地
- 駅からビルまでの利便性やコンビニや郵便局などの周辺環境で評価がついています。
- 共用
- ビルの共⽤部(エントランス、外壁などのリニューアル、セキュリー他)共⽤施設の充実度で評価がついています。
- 専有
- 貸室内の設備(天井⾼・OAフロア・個別空調など)で評価がついています。
- BCP対応
- 新耐震基準や地震時強い免震・制震構造・停電時に必要な⾮常⽤電源対応などで評価がついています。
- ステージ君
- オフィステージ コンシェルジュ ステージ君のズバリの評価になります。

第三富士ビルは、西区立売堀1丁目に建つ地上10階地下1階建てのオフィスビルです。四つ橋筋と阪神高速との間に挟まれた一角に建っており、光沢のある黒い外壁と等間隔に並ぶ窓が特徴的な建物です。大阪メトロ「本町駅」21・22番出口から徒歩3分、四つ橋線・御堂筋線・中央線の3路線が利用可能な立地で、従業員様の通勤や営業活動はもちろん、新規の人材確保にも大変有利なオフィス環境です。分割区画は40坪前後から100坪台まであり、様々な規模の会社様に対応します。高さ50mmのOAフロア敷設済み、空調は個別方式でレイアウトも自在です。トイレはウォシュレット付きで男女別、館内にはリフレッシュルームと喫煙室、最大で約50名まで収容可能な貸し会議室も設備されていますので、オフィス内を執務専用スペースとして有効利用できます。エレベーターは4基あり、出退勤時間やお昼時などの混み合う時間帯でもストレスなく昇降可能。近隣にコンビニやカフェ、弁当販売店、飲食店などが点在しているので従業員様のランチや買い出しにも便利な環境です。交通アクセス・ビル設備共に整っており、新規採用を見据えての立地改善をご検討の企業様に大変おすすめです。
- 立地
-




- 共用
-




- 専有
-




- BCP対応
-




- ステージ君
-





非公開とは?
賃料が「非公開」の物件は、オーナー様のご希望で賃料が非公開となっております。
賃料の目安についてはお気軽にお問い合わせください。
- 阿波座・西長堀の大規模ビルの平均坪単価
- 9,078円





