大阪産業ビル
印刷
物件概要
| 住所 | 大阪府大阪市西区新町1-10-2 | 総階数 | 9階/地下1階 |
|---|---|---|---|
| 最寄駅 |
大阪メトロ長堀鶴見緑地線西大橋駅 徒歩4分 大阪メトロ四つ橋線四ツ橋駅 徒歩4分 大阪メトロ御堂筋線心斎橋駅 徒歩5分 |
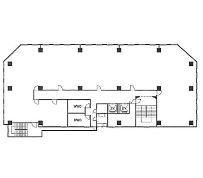
延床面積/基準階面積 | 1721.22坪 / 122.27坪 |
| 建物構造 | 鉄骨鉄筋コンクリート造 | ||
| 竣工年月 | 1972年7月 | 備考 | - |
| リニューアル | 2007年11月 耐震工事 | ||
基準階面積は共用部面積を含む場合がございます。
物件設備・条件
| エレベーター | あり 総台数 2基 |
トイレ | 男女別 ウォシュレットあり |
|---|---|---|---|
| 空調 | 個別空調 24時間使用可 | 正面玄関 開放時間 |
平 日 7 : 00 〜 19 : 30 土 曜 7 : 00 〜 19 : 30 日・祝 - : - 〜 - : - |
| 天井高 | 2500mm | 駐車場 | 駐車場あり 総台数 12台 |
| フロア | OAフロアあり 50mm | 駐輪場 | 駐輪場なし |
| セキュリティー | 機械警備 常駐警備 |
貸会議室 | あり |
| BCP対応 | - | リフレッシュルーム | なし |
| 立地 | 大通り沿い | 店舗 | - |
| ビル規模 | 大型ビル (貸床100坪〜200坪) |
建物種別 | オフィスビル |

- 総合評価
-




3
評価の見方
- 立地
- 駅からビルまでの利便性やコンビニや郵便局などの周辺環境で評価がついています。
- 共用
- ビルの共⽤部(エントランス、外壁などのリニューアル、セキュリー他)共⽤施設の充実度で評価がついています。
- 専有
- 貸室内の設備(天井⾼・OAフロア・個別空調など)で評価がついています。
- BCP対応
- 新耐震基準や地震時強い免震・制震構造・停電時に必要な⾮常⽤電源対応などで評価がついています。
- ステージ君
- オフィステージ コンシェルジュ ステージ君のズバリの評価になります。

大阪産業ビルは大阪市西区新町、四つ橋筋沿いに建つ1972年竣工のオフィスビルです。2007年に耐震工事がされ、もしもの地震の際にも安心です。大通りの角地に位置していることに加え、グレーのタイルとフロア毎にぐるりと張り巡らされたガラス窓が特徴的で、視認性に優れています。機械警備と常駐警備により、セキュリティ面は非常に良好。ウォシュレット付きの男女別トイレ完備で女性にも安心です。部屋内には個別空調が採用され、自由に温度調節が可能です。床面にはOAフロアが敷かれ、配線に困ることはありません。1階には喫茶店が営業しており、打ち合わせ等に非常に便利です。また、四つ橋筋にはコンビニは飲食店等も充実しているため、買い物やランチも近くで済ませる事が出来ます。物件から徒歩5分の大阪メトロ「心斎橋駅」は、御堂筋線と長堀鶴見緑地線の2路線が利用可能で、アクセス良好です。また、「四ツ橋駅」と地下道で繫がっているというメリットがあります。ビル付属の駐車場完備。また大通り沿いなのでお車を使われる企業様にも適しています。大通り沿いの物件をお探しの方におすすめ出来る物件です。
- 立地
-




- 共用
-




- 専有
-




- BCP対応
-




- ステージ君
-





非公開とは?
賃料が「非公開」の物件は、オーナー様のご希望で賃料が非公開となっております。
賃料の目安についてはお気軽にお問い合わせください。
- 四ツ橋・堀江の大型ビルの平均坪単価
- 10,663円





