四ツ橋中埜ビル
印刷
物件写真
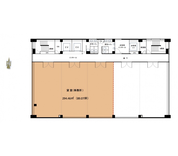
区画図(基準階)
物件概要
| 住所 | 大阪府大阪市西区南堀江1-1-14 | 総階数 | 9階/地下1階 |
|---|---|---|---|
| 最寄駅 |
大阪メトロ四つ橋線四ツ橋駅 徒歩2分 大阪メトロ御堂筋線心斎橋駅 徒歩4分 大阪メトロ長堀鶴見緑地線西大橋駅 徒歩5分 |
延床面積/基準階面積 | 2397.28坪 / 149.00坪 |
| 建物構造 | 鉄骨鉄筋コンクリート造 | ||
| 竣工年月 | 1998年8月 | 備考 | - |
| リニューアル | - | ||
基準階面積は共用部面積を含む場合がございます。
物件設備・条件
| エレベーター | あり 総台数 3基 うち荷物用EV 1基 |
トイレ | 男女別 ウォシュレットあり |
|---|---|---|---|
| 空調 | 個別空調 24時間使用可 | 正面玄関 開放時間 |
平 日 8 : 00 〜 19 : 00 土 曜 - : - 〜 - : - 日・祝 - : - 〜 - : - |
| 天井高 | 2700mm | 駐車場 | 駐車場あり 総台数 84台 |
| フロア | OAフロアあり 100mm | 駐輪場 | 駐輪場あり |
| セキュリティー | 機械警備 | 貸会議室 | なし |
| BCP対応 | 新耐震基準適合 | リフレッシュルーム | なし |
| 立地 | 駅3分以内 大通り沿い |
店舗 | - |
| ビル規模 | 大型ビル (貸床100坪〜200坪) |
建物種別 | オフィスビル |

- 総合評価
-




4.5
評価の見方
- 立地
- 駅からビルまでの利便性やコンビニや郵便局などの周辺環境で評価がついています。
- 共用
- ビルの共⽤部(エントランス、外壁などのリニューアル、セキュリー他)共⽤施設の充実度で評価がついています。
- 専有
- 貸室内の設備(天井⾼・OAフロア・個別空調など)で評価がついています。
- BCP対応
- 新耐震基準や地震時強い免震・制震構造・停電時に必要な⾮常⽤電源対応などで評価がついています。
- ステージ君
- オフィステージ コンシェルジュ ステージ君のズバリの評価になります。

四ツ橋中埜ビルは、前面がガラス張りとなっている外観が目を引くオフィスビルです。四つ橋筋沿いに建っていることから視認性はバツグン!初めて来社されたお客様でも見つけやすいビルとなっています。1998年に建てられたビルであるため耐震基準はしっかりクリア!万が一地震がきても安心です!「四ツ橋駅」から歩いて2分という駅近な立地も嬉しいポイント。毎日の通勤がラクチンなのはもちろん、仕事で外出するときにもとっても便利です!オフィスの床はOAフロアになっているので、たくさんの機器を扱う職場でも配線が邪魔になりません。空調はそれぞれの部屋で自由に設定できる個別空調。体調や気温に合わせて温度調節ができるため、いつでも快適な環境で仕事に取り組めます!
評価詳細を表示
- 立地
-




- 共用
-




- 専有
-




- BCP対応
-




- ステージ君
-





非公開とは?
賃料が「非公開」の物件は、オーナー様のご希望で賃料が非公開となっております。
賃料の目安についてはお気軽にお問い合わせください。
- 四ツ橋・堀江の大型ビルの平均坪単価
- 10,663円






四ツ橋中埜ビルは、1998年8月に竣工したオフィスビルです。大阪市西区南堀江1-1-14にあり、鉄骨鉄筋コンクリート造地上9階、地下1階、塔屋1階建のオフィスビルとなっています。最寄駅である大阪メトロ四つ橋線「四ツ橋駅」から徒歩2分の距離に位置しており、通勤や外出の際の利便性に優れています。ビルの外観は、通りに面した壁面がガラス張りになっているのが特徴的です。エレベーターは3基設置されているため、時間帯に左右されずスムーズに利用できます。新耐震基準を満たしていることから、地震などの災害時にも一定の安全性が確保されています。天井高は2,700mmで、床面はOAフロアに対応。配線を床下に収納できるため、柔軟なオフィスレイアウトが可能です。共用部には男女別のトイレが設けられています。空調は個別空調が導入されており、各オフィスで細かな温度設定ができます。