西中島NTビル
印刷
物件概要
| 住所 | 大阪府大阪市淀川区西中島3-5-9 | 総階数 | 7階 |
|---|---|---|---|
| 最寄駅 |
大阪メトロ御堂筋線西中島南方駅 徒歩5分 阪急京都本線南方駅 徒歩6分 |
延床面積/基準階面積 | 560.00坪 / 63.00坪 |
| 建物構造 | 鉄筋コンクリート造 | ||
| 竣工年月 | 1991年4月 | 備考 | - |
| リニューアル | 2015年12月 共用部 | ||
基準階面積は共用部面積を含む場合がございます。
物件設備・条件
| エレベーター | あり 総台数 1基 |
トイレ | 男女別 ウォシュレットあり |
|---|---|---|---|
| 空調 | 個別空調 24時間使用可 | 正面玄関 開放時間 |
平 日 7 : 00 〜 21 : 00 土 曜 - : - 〜 - : - 日・祝 - : - 〜 - : - |
| 天井高 | 2500mm | 駐車場 | 駐車場あり 総台数 2台 |
| フロア | OAフロアあり 60mm 1フロア1テナント |
駐輪場 | 駐輪場なし |
| セキュリティー | 機械警備 | 貸会議室 | なし |
| BCP対応 | 新耐震基準適合 | リフレッシュルーム | なし |
| 立地 | - | 店舗 | - |
| ビル規模 | 中型ビル (貸床50坪〜100坪) |
建物種別 | オフィスビル |

- 総合評価
-




3.5
評価の見方
- 立地
- 駅からビルまでの利便性やコンビニや郵便局などの周辺環境で評価がついています。
- 共用
- ビルの共⽤部(エントランス、外壁などのリニューアル、セキュリー他)共⽤施設の充実度で評価がついています。
- 専有
- 貸室内の設備(天井⾼・OAフロア・個別空調など)で評価がついています。
- BCP対応
- 新耐震基準や地震時強い免震・制震構造・停電時に必要な⾮常⽤電源対応などで評価がついています。
- ステージ君
- オフィステージ コンシェルジュ ステージ君のズバリの評価になります。

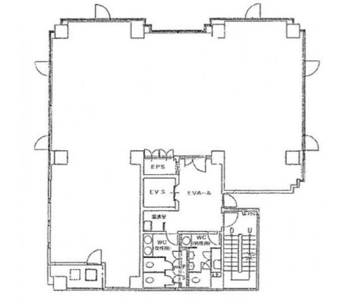
西中島NTビルは、1991年4月竣工、7階建のオフィスビルです。最寄り駅は大阪メトロ 御堂筋瀬「西中島南方駅」北改札口から徒歩5分、阪急 京都線「南方駅」から徒歩6分ですが、「新大阪駅」へも徒歩11分と徒歩圏内なのでJR線・新幹線の利用もでき、3駅4路線利用可能な立地です。ビルには平面式の駐車場が設備されており、新御堂筋の入口も近いため車を使用される企業様にもおすすめです。また、近隣にコインパーキングも多数あるので来客時も安心です。区画内は3方向を窓に囲まれた明るい空間で、レイアウトの妨げとなる柱もなく、使いやすい形状です。ワンフロア1テナント仕様なので給湯室やトイレを専有できるのも、特に女性従業員様に喜ばれるポイントです。またこのビルは一般的なオフィス使用だけでなく学習塾などのスクール系、士業系、ネイルサロンといった様々な来店型の業種も可、テナント様からの要望があれば土日の正面玄関利用も対応してもらえます。駅までの道沿いには銀行、郵便局、コンビニ、飲食店などが並び、仕事中も終業後も便利でオフィスワーカーにとって嬉しい環境です。
- 立地
-




- 共用
-




- 専有
-




- BCP対応
-




- ステージ君
-





非公開とは?
賃料が「非公開」の物件は、オーナー様のご希望で賃料が非公開となっております。
賃料の目安についてはお気軽にお問い合わせください。
- 西中島の中型ビルの平均坪単価
- 9,217円





