クリスタファイブ
印刷
物件概要
| 住所 | 大阪府大阪市中央区南船場2-5-12 | 総階数 | 10階/地下1階 |
|---|---|---|---|
| 最寄駅 |
大阪メトロ長堀鶴見緑地線長堀橋駅 徒歩1分 大阪メトロ堺筋線長堀橋駅 徒歩2分 大阪メトロ御堂筋線心斎橋駅 徒歩4分 |
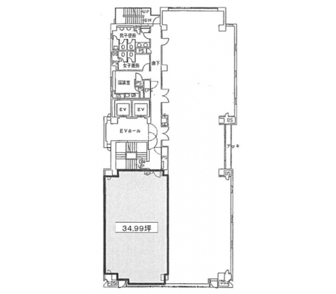
延床面積/基準階面積 | 1771.67坪 / 126.00坪 |
| 建物構造 | 鉄骨造 | ||
| 竣工年月 | 2000年2月 | 備考 | - |
| リニューアル | 2012年1月 エアコン | ||
基準階面積は共用部面積を含む場合がございます。
物件設備・条件
| エレベーター | あり 総台数 2基 |
トイレ | 男女別 ウォシュレットあり |
|---|---|---|---|
| 空調 | 個別空調 24時間使用可 | 正面玄関 開放時間 |
平 日 8 : 00 〜 19 : 00 土 曜 8 : 00 〜 19 : 00 日・祝 - : - 〜 - : - |
| 天井高 | 2600mm | 駐車場 | 駐車場あり 総台数 16台 |
| フロア | OAフロアあり | 駐輪場 | 駐輪場なし |
| セキュリティー | 機械警備 | 貸会議室 | - |
| BCP対応 | 新耐震基準適合 | リフレッシュルーム | なし |
| 立地 | 駅3分以内 大通り沿い |
店舗 | - |
| ビル規模 | 大型ビル (貸床100坪〜200坪) |
建物種別 | オフィスビル |

- 総合評価
-




4
評価の見方
- 立地
- 駅からビルまでの利便性やコンビニや郵便局などの周辺環境で評価がついています。
- 共用
- ビルの共⽤部(エントランス、外壁などのリニューアル、セキュリー他)共⽤施設の充実度で評価がついています。
- 専有
- 貸室内の設備(天井⾼・OAフロア・個別空調など)で評価がついています。
- BCP対応
- 新耐震基準や地震時強い免震・制震構造・停電時に必要な⾮常⽤電源対応などで評価がついています。
- ステージ君
- オフィステージ コンシェルジュ ステージ君のズバリの評価になります。

カフェや隠れ家的なお店が多く立ち並ぶ南船場2丁目にあるクリスタファイブは長堀通り沿いに面したガラス張りのスタイリッシュな外観が特徴的なオフィスビルです。グレー色のしっかりとした石張りにグリーン系のガラスカーテンウォールは一際目を引き来訪者へ良い印象を与えてくれます。最寄駅は大阪メトロ長堀鶴見緑地線「長堀橋駅」徒歩1分。クリスタ長堀「北4出口」をでてすぐにあり、雨の日も濡れることが少なく非常に便利です。2000年(平成12年)2月竣工の10階建地下1階の新耐震基準適合ビル!災害時などにも安心です。また、2012年(平成24年)にエアコンをリニューアルしています。クリスタファイブは延床面積5,856.76㎡(1,771.67坪)、基準階面積416.53㎡(126.00坪)の大型ビル!エレベーターは2基完備しているため通勤ラッシュ時や外出時などストレスなく移動ができます。エントランスアプローチは木々が植えられており、エントランスはクリアなイメージのすっきりとしたデザイン。広々とした空間が広がっており白色のスタイリッシュなデザイン。清掃がきちんとされており日々快適にお過ごしいただけます。また基準階も白をベースとしたスッキリとしたデザイン男女別のトイレはウォシュレット付き!区画は天井高2600mmのOAフロア式!配線も収納でき広々とした空間にお好みのレイアウトを実現することが可能です。クリスタファイブは駐車場も完備!お車を使用されるテナント様には非常に便利です。また、前面には時間貸し駐車場もあるので来訪者には大変喜ばれます。近隣にはガソリンスタンド、ホテル、医院まで幅広くあり非常に便利です。北へ行くとビジネス街、南へ行くと商業エリア。どちらへも行き来できる南船場エリアにあるクリスタファイブは中々空きが出ない人気オフィスビル!一度ご自身でその利便性を実感してみてはいかがでしょうか。
- 立地
-




- 共用
-




- 専有
-




- BCP対応
-




- ステージ君
-





非公開とは?
賃料が「非公開」の物件は、オーナー様のご希望で賃料が非公開となっております。
賃料の目安についてはお気軽にお問い合わせください。
- 心斎橋・南船場の大型ビルの平均坪単価
- 10,431円






クリスタファイブは、2000年2月に竣工したオフィスビルです。大阪市中央区南船場2-5-12にあり、鉄骨造地上10階、地下1階建のオフィスビルとなっています。最寄駅である大阪メトロ御堂筋線「心斎橋駅」からは、徒歩5分の距離に位置しています。ビルの外観は、通りに面した一面がガラス張りとなっているのが特徴的です。エレベーターは2基設置されているため、時間帯に左右されずスムーズに利用できます。新耐震基準を満たしていることから、地震などの災害時にも一定の安全性が確保されています。天井高は2,600mmで、床面はOAフロアに対応。共用部には男女別のトイレが設けられています。空調は個別空調が導入されており、各オフィスで細かな温度設定が可能です。