G-TERRACE心斎橋
印刷
物件写真
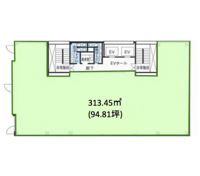
区画図(基準階)
物件概要
| 住所 | 大阪府大阪市中央区南船場4-11-20 | 総階数 | 10階/地下1階 |
|---|---|---|---|
| 最寄駅 |
大阪メトロ御堂筋線心斎橋駅 徒歩5分 大阪メトロ長堀鶴見緑地線心斎橋駅 徒歩5分 |
延床面積/基準階面積 | 1200.45坪 / 96.00坪 |
| 建物構造 | 鉄骨造 | ||
| 竣工年月 | 1991年8月 | 備考 | - |
| リニューアル | - | ||
基準階面積は共用部面積を含む場合がございます。
物件設備・条件
| エレベーター | あり 総台数 2基 |
トイレ | 男女別 ウォシュレットあり |
|---|---|---|---|
| 空調 | 個別空調 24時間使用可 | 正面玄関 開放時間 |
平 日 7 : 00 〜 20 : 00 土 曜 8 : 00 〜 20 : 00 日・祝 8 : 00 〜 20 : 00 |
| 天井高 | 2500mm | 駐車場 | 駐車場あり |
| フロア | OAフロアあり 100mm | 駐輪場 | 駐輪場あり |
| セキュリティー | 機械警備 | 貸会議室 | なし |
| BCP対応 | 新耐震基準適合 | リフレッシュルーム | なし |
| 立地 | 駅3分以内 | 店舗 | - |
| ビル規模 | 中型ビル (貸床50坪〜100坪) |
建物種別 | オフィスビル |

- 総合評価
-




4
評価の見方
- 立地
- 駅からビルまでの利便性やコンビニや郵便局などの周辺環境で評価がついています。
- 共用
- ビルの共⽤部(エントランス、外壁などのリニューアル、セキュリー他)共⽤施設の充実度で評価がついています。
- 専有
- 貸室内の設備(天井⾼・OAフロア・個別空調など)で評価がついています。
- BCP対応
- 新耐震基準や地震時強い免震・制震構造・停電時に必要な⾮常⽤電源対応などで評価がついています。
- ステージ君
- オフィステージ コンシェルジュ ステージ君のズバリの評価になります。

G-TERRACE心斎橋は、グレーの外壁と一部がガラス張りとなっている外観が目を引く複合ビルです。1991年に建てられたビルであるため耐震基準はしっかりクリア!万が一地震がきても安心です!「四ツ橋駅」から歩いて3分という駅近な立地も嬉しいポイント。毎日の通勤がラクチンなのはもちろん、仕事で外出するときにもとっても便利です!ビルには2つのエレベーターがあるので、朝の通勤ラッシュでも焦らずに出社できます。インターネット回線は光ファイバー!高速通信でインターネット環境は快適です。空調はそれぞれの部屋で自由に設定できるため、仕事中は常に快適な環境を保てます。セキュリティーもバッチリなので、いつでも安心して仕事に取り組めます!
評価詳細を表示
- 立地
-




- 共用
-




- 専有
-




- BCP対応
-




- ステージ君
-





非公開とは?
賃料が「非公開」の物件は、オーナー様のご希望で賃料が非公開となっております。
賃料の目安についてはお気軽にお問い合わせください。
- 心斎橋・南船場の中型ビルの平均坪単価
- 9,984円






G-TERRACE心斎橋は、1991年8月に竣工した複合ビルです。大阪市中央区南船場4-11-20にあり、鉄骨造地上10階、地下1階建の複合ビルとなっています。最寄駅である大阪メトロ四つ橋線「四ツ橋駅」から徒歩3分の距離に位置しており、通勤や外出の際の利便性に優れています。通りに面した壁面がガラス張りになっているのが特徴的です。エントランスの内装は、モノトーンを基調としています。エレベーターは2基設置されているため、時間帯に左右されずスムーズに利用できます。新耐震基準を満たしていることから、地震などの災害時にも一定の安全性が確保されています。光ファイバーは引込済です。共用部には男女別のトイレが設けられているほか、給湯室も完備されています。空調は個別空調が導入されており、各オフィスで細かな温度設定が可能です。機械警備によって管理されていることから、セキュリティー面も万全です。