若杉大阪駅前ビル
印刷
物件写真
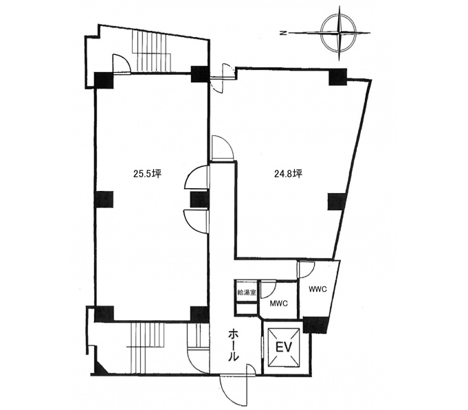
区画図(基準階)
物件概要
| 住所 | 大阪府大阪市北区曽根崎新地2-3-13 | 総階数 | 19階/地下1階 |
|---|---|---|---|
| 最寄駅 |
大阪メトロ四つ橋線西梅田駅 徒歩3分 JR東西線北新地駅 徒歩3分 JR大阪環状線大阪駅 徒歩5分 |
延床面積/基準階面積 | 1083.04坪 / 86.00坪 |
| 建物構造 | 鉄骨鉄筋コンクリート造 | ||
| 竣工年月 | 1982年1月 | 備考 | - |
| リニューアル | 1月 トイレ、エアコン、給湯室 1月 外壁 | ||
基準階面積は共用部面積を含む場合がございます。
物件設備・条件
| エレベーター | あり 総台数 1基 |
トイレ | 男女別 ウォシュレットあり |
|---|---|---|---|
| 空調 | 個別空調 24時間使用可 | 正面玄関 開放時間 |
平 日 7 : 30 〜 20 : 00 土 曜 7 : 30 〜 20 : 00 日・祝 - : - 〜 - : - |
| 天井高 | - | 駐車場 | 駐車場なし |
| フロア | OAフロアあり | 駐輪場 | - |
| セキュリティー | 機械警備 常駐警備 |
貸会議室 | あり |
| BCP対応 | - | リフレッシュルーム | なし |
| 立地 | 駅3分以内 大通り沿い |
店舗 | - |
| ビル規模 | 中型ビル (貸床50坪〜100坪) |
建物種別 | オフィスビル |

- 総合評価
-




3
評価の見方
- 立地
- 駅からビルまでの利便性やコンビニや郵便局などの周辺環境で評価がついています。
- 共用
- ビルの共⽤部(エントランス、外壁などのリニューアル、セキュリー他)共⽤施設の充実度で評価がついています。
- 専有
- 貸室内の設備(天井⾼・OAフロア・個別空調など)で評価がついています。
- BCP対応
- 新耐震基準や地震時強い免震・制震構造・停電時に必要な⾮常⽤電源対応などで評価がついています。
- ステージ君
- オフィステージ コンシェルジュ ステージ君のズバリの評価になります。

若杉大阪駅前ビルは、グレーの外壁と横に広く取られた窓が目を引くオフィスビルです。国道2号線に面していることから視認性はバツグン!初めて来社されたお客様でも見つけやすいビルとなっています。エントランスの内装は、白を基調とした落ち着いた雰囲気。清潔感もあり、お客様にも好印象です!「北新地駅」から歩いて3分という駅近な立地も嬉しいポイント。毎日の通勤がラクチンなのはもちろん、仕事で外出するときにもとっても便利です!それぞれの部屋には光ファイバーが引き込まれています。高速通信が利用できるため、インターネット環境は快適です!空調はそれぞれの部屋で設定できる個別空調。気温や体調に合わせて温度調節ができるので、いつでも快適な環境で仕事に取り組めます!
評価詳細を表示
- 立地
-




- 共用
-




- 専有
-




- BCP対応
-




- ステージ君
-





非公開とは?
賃料が「非公開」の物件は、オーナー様のご希望で賃料が非公開となっております。
賃料の目安についてはお気軽にお問い合わせください。
- 堂島・中之島の中型ビルの平均坪単価
- 14,629円






若杉大阪駅前ビルは、1982年1月に竣工したオフィスビルです。大阪市北区曽根崎新地2-3-13にあり、鉄骨鉄筋コンクリート造地上19階建のオフィスビルとなっています。最寄駅である大阪メトロ御堂筋線「梅田駅」、大阪メトロ四つ橋線「西梅田駅」、JR東西線「北新地駅」から徒歩3分、JR東海道本線・大阪環状線「大阪駅」から徒歩5分の距離に位置しており、4路線からアクセス可能であるため通勤や外出の際の利便性に優れています。エレベーターは1基設置。新耐震基準を満たしているため、地震などの災害時にも一定の安全性が確保されています。天井高は2,350mmで、光ファイバーは引込済。共用部には男女別のトイレが設けられているほか、給湯室も完備されています。空調は個別空調が導入されており、各オフィスで細かな温度設定が可能です。