堂北ダイビル
印刷
物件概要
| 住所 | 大阪府大阪市北区堂島1-2-5 | 総階数 | 7階/地下1階 |
|---|---|---|---|
| 最寄駅 |
JR東西線北新地駅 徒歩3分 大阪メトロ四つ橋線西梅田駅 徒歩5分 大阪メトロ谷町線東梅田駅 徒歩5分 |
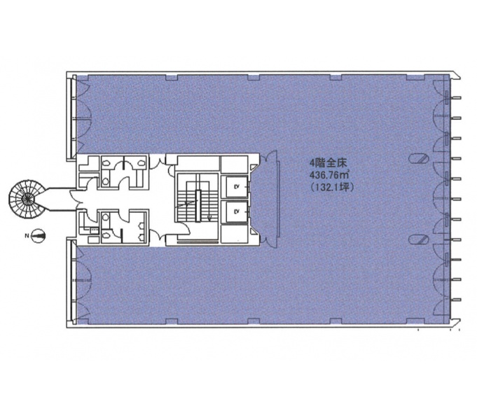
延床面積/基準階面積 | 1296.00坪 / 132.10坪 |
| 建物構造 | 鉄骨鉄筋コンクリート造 | ||
| 竣工年月 | 1986年3月 | 備考 | - |
| リニューアル | - | ||
基準階面積は共用部面積を含む場合がございます。
物件設備・条件
| エレベーター | あり 総台数 2基 |
トイレ | 男女別 ウォシュレットあり |
|---|---|---|---|
| 空調 | セントラル空調 平 日 8 : 30 〜 19 : 00 土 曜 - : - 〜 - : - 日・祝 - : - 〜 - : - |
正面玄関 開放時間 |
- |
| 天井高 | 2450mm | 駐車場 | 駐車場あり 総台数 16台 |
| フロア | OAフロアあり 50mm | 駐輪場 | 駐輪場あり |
| セキュリティー | 機械警備 | 貸会議室 | なし |
| BCP対応 | 新耐震基準適合 | リフレッシュルーム | なし |
| 立地 | 駅3分以内 | 店舗 | - |
| ビル規模 | 大型ビル (貸床100坪〜200坪) |
建物種別 | オフィスビル |

- 総合評価
-




3.5
評価の見方
- 立地
- 駅からビルまでの利便性やコンビニや郵便局などの周辺環境で評価がついています。
- 共用
- ビルの共⽤部(エントランス、外壁などのリニューアル、セキュリー他)共⽤施設の充実度で評価がついています。
- 専有
- 貸室内の設備(天井⾼・OAフロア・個別空調など)で評価がついています。
- BCP対応
- 新耐震基準や地震時強い免震・制震構造・停電時に必要な⾮常⽤電源対応などで評価がついています。
- ステージ君
- オフィステージ コンシェルジュ ステージ君のズバリの評価になります。

堂北ダイビルは大阪市北区堂島1丁目にあるオフィスビルです。堂北ダイビルがある「堂島エリア」はランドマークタワーやハイグレードビルも多くあるため活発なイメージがありますが、また違う一面では洗練された雰囲気もあり大阪市内でも大変人気のエリアです。最寄駅はJR東西線「北新地駅」徒歩3分、大阪メトロ四つ橋線「西梅田駅」徒歩5分、谷町線「東梅田駅」徒歩5分など各路線様々なアクセスが可能です。2008年に開業した京阪中之島線「大江橋駅」からは、なんと徒歩2分!!「大江橋駅」はグッドデザイン賞に選ばれるなどデザイン性にも特化しており毎日の通勤も快適です。1986年竣工の新耐震基準適合で一定の耐震性があり、災害時にも安心です。延床面積4,274.38㎡(1,293坪)、基準階436.69㎡(132.10坪)の大型ビル!一度ご入居されたテナント様は居心地の良さに中々出ることは少なく、空室がでた際にはすぐにきまってしまう人気のオフィスビルです。エレベーターは2基完備しており、外出時や通勤ラッシュ時など待ち時間が少なくストレスなく出入りができます。トイレは男女別のウォシュレット付き!もちろん駐車場と駐輪場も完備しています。区画内はセントラル空調でコアタイムが設けられていますが、時間外でも手元操作で空調を利用可能です。天井高2450mmのOA高50mmの整形空間はレイアウトがしやすく、また、分割も対応しておりニーズにあった自分たちだけの空間が表現できます。周辺にはホテルや銀行などがあり、出張で来られた来訪者にとても重宝されています。近隣の飲食店は会食にご使用いただけるお店から、お仕事帰り少しだけなど気軽にいけるお店まで様々なジャンルがありビジネスシーンでも活躍してくれます。そんな立地共に人気の堂北ダイビルで企業イメージUPを狙ってみてはいかがでしょうか。
- 立地
-




- 共用
-




- 専有
-




- BCP対応
-




- ステージ君
-





非公開とは?
賃料が「非公開」の物件は、オーナー様のご希望で賃料が非公開となっております。
賃料の目安についてはお気軽にお問い合わせください。
- 堂島・中之島の大型ビルの平均坪単価
- 12,481円






堂北ダイビルは、1986年3月に竣工したオフィスビルです。大阪市北区堂島1-2-5にある鉄骨鉄筋コンクリート造地上7階、地下1階建のオフィスビルで、大阪メトロ御堂筋線「淀屋橋駅」から徒歩5分の距離にあります。ビルの外観は、黒い外壁が特徴的です。エントランスの内装は、白を基調としています。ビル内にはエレベーターが2基完備され、混雑しがちな朝の通勤時にもスムーズに利用できます。室内はOAフロア対応で、煩雑になりがちなOA機器の配線や電話線を床下に収納することが可能です。天井高はフロア内で異なり、室内南側が2,650mm、その他は2,450mmです。各階共用部には、ウォシュレット付き男女別トイレを完備。空調は、個別空調です。駐車場は、ビル専用の機械式駐車場が完備されています。ビルは機械警備によって管理されており、セキュリティー面も万全です。