古河大阪ビル西館
印刷
物件写真
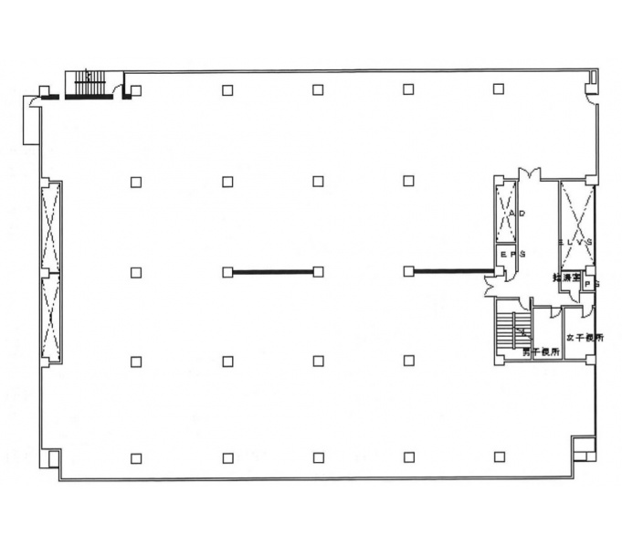
区画図(基準階)
物件概要
| 住所 | 大阪府大阪市北区堂島浜2-1-9 | 総階数 | 7階/地下3階 |
|---|---|---|---|
| 最寄駅 |
京阪中之島線渡辺橋駅 徒歩1分 大阪メトロ四つ橋線肥後橋駅 徒歩4分 阪神本線福島駅 徒歩5分 |
延床面積/基準階面積 | 4403.73坪 / 415.53坪 |
| 建物構造 | 鉄骨鉄筋コンクリート造 | ||
| 竣工年月 | 1973年3月 | 備考 | - |
| リニューアル | - | ||
基準階面積は共用部面積を含む場合がございます。
物件設備・条件
| エレベーター | あり 総台数 3基 |
トイレ | 男女別 ウォシュレットあり |
|---|---|---|---|
| 空調 | 個別空調 24時間使用可 平 日 8 : 00 〜 18 : 00 土 曜 8 : 00 〜 15 : 00 日・祝 - : - 〜 - : - |
正面玄関 開放時間 |
- |
| 天井高 | 2400mm | 駐車場 | 駐車場あり 総台数 33台 |
| フロア | OAフロアあり 50mm | 駐輪場 | 駐輪場あり |
| セキュリティー | 機械警備 常駐警備 |
貸会議室 | あり |
| BCP対応 | - | リフレッシュルーム | なし |
| 立地 | 駅3分以内 | 店舗 | - |
| ビル規模 | 大規模ビル (延床3,000坪以上or貸床200坪以上) |
建物種別 | オフィスビル |

- 総合評価
-




3.5
評価の見方
- 立地
- 駅からビルまでの利便性やコンビニや郵便局などの周辺環境で評価がついています。
- 共用
- ビルの共⽤部(エントランス、外壁などのリニューアル、セキュリー他)共⽤施設の充実度で評価がついています。
- 専有
- 貸室内の設備(天井⾼・OAフロア・個別空調など)で評価がついています。
- BCP対応
- 新耐震基準や地震時強い免震・制震構造・停電時に必要な⾮常⽤電源対応などで評価がついています。
- ステージ君
- オフィステージ コンシェルジュ ステージ君のズバリの評価になります。

古河大阪ビル西館は、大きく取られた窓が目を引くオフィスビルです。角地に建っていることから視認性はバツグン!初めて来社されたお客様でも見つけやすいビルとなっています。近くには「渡辺橋駅」や「西梅田駅」、「肥後橋駅」、「北新地駅」などがあり、いずれも歩いて5分ほどの距離です。3つの路線が利用できるので、毎日の通勤はもちろん仕事で外出するときにも便利です!ビルには3つのエレベーターがあるため、朝の通勤ラッシュでも焦ることはありません。オフィスの床はOAフロアになっているので、たくさんの機器を扱う職場でも配線が邪魔になりません!空調はそれぞれの部屋で設定できる個別空調。気温や体調に合わせて温度調節できるため、いつでも快適な環境で仕事に取り組めます!
評価詳細を表示
- 立地
-




- 共用
-




- 専有
-




- BCP対応
-




- ステージ君
-





非公開とは?
賃料が「非公開」の物件は、オーナー様のご希望で賃料が非公開となっております。
賃料の目安についてはお気軽にお問い合わせください。
- 堂島・中之島の大規模ビルの平均坪単価
- 20,108円






古河大阪ビル西館は、1973年3月に竣工したオフィスビルです。大阪市北区堂島浜2-1-9にあり、鉄骨鉄筋コンクリート造地上7階、地下2階、塔屋1階建のオフィスビルとなっています。最寄駅である京阪中之島線「渡辺橋駅」から徒歩5分、大阪メトロ四つ橋線「西梅田駅」、大阪メトロ四つ橋線「肥後橋駅」、JR東西線「北新地駅」から徒歩6分の距離に位置しています。ビルの外観は、ブラウンを基調とした外壁が特徴的です。エレベーターは3基設置されており、時間帯に左右されずスムーズに利用できます。天井高は2,430mmで、床面はOAフロアに対応。煩わしい配線を床下に収納できるため、柔軟なオフィスレイアウトが可能です。共用部には男女別のトイレが設けられており、ウォシュレットも完備されています。空調は個別空調が導入されているため、各オフィスで細かな温度設定ができます。