幸田ビル
印刷
物件概要
| 住所 | 大阪府大阪市北区西天満2-10-2 | 総階数 | 13階/地下2階 |
|---|---|---|---|
| 最寄駅 |
京阪中之島線大江橋駅 徒歩3分 大阪メトロ谷町線東梅田駅 徒歩5分 JR東西線北新地駅 徒歩5分 |
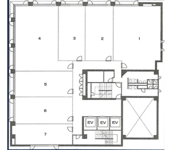
延床面積/基準階面積 | 2297.00坪 / 148.00坪 |
| 建物構造 | 鉄骨鉄筋コンクリート造 | ||
| 竣工年月 | 1978年9月 | 備考 | - |
| リニューアル | 2012年1月 エレベーター 2011年1月 空調 | ||
基準階面積は共用部面積を含む場合がございます。
物件設備・条件
| エレベーター | あり 総台数 3基 |
トイレ | 男女別 ウォシュレットあり |
|---|---|---|---|
| 空調 | 個別空調 24時間使用可 | 正面玄関 開放時間 |
平 日 7 : 00 〜 20 : 00 土 曜 7 : 00 〜 20 : 00 日・祝 - : - 〜 - : - |
| 天井高 | - | 駐車場 | 駐車場なし |
| フロア | OAフロアあり | 駐輪場 | - |
| セキュリティー | 機械警備 常駐警備 |
貸会議室 | あり |
| BCP対応 | 新耐震基準適合 | リフレッシュルーム | なし |
| 立地 | 駅3分以内 大通り沿い |
店舗 | - |
| ビル規模 | 大型ビル (貸床100坪〜200坪) |
建物種別 | オフィスビル |

- 総合評価
-




3.5
評価の見方
- 立地
- 駅からビルまでの利便性やコンビニや郵便局などの周辺環境で評価がついています。
- 共用
- ビルの共⽤部(エントランス、外壁などのリニューアル、セキュリー他)共⽤施設の充実度で評価がついています。
- 専有
- 貸室内の設備(天井⾼・OAフロア・個別空調など)で評価がついています。
- BCP対応
- 新耐震基準や地震時強い免震・制震構造・停電時に必要な⾮常⽤電源対応などで評価がついています。
- ステージ君
- オフィステージ コンシェルジュ ステージ君のズバリの評価になります。

幸田ビルは大阪市北区西天満2丁目にあるオフィスビルです。御堂筋沿いと新御堂との境目が目の前に広がっており、非常に視認性が良いです。昭和53年9月竣工ですが、2008年に耐震補強工事済みで地震対策にも備えており2007年に共用部、2011年に空調、2012年エレベーターをリニューアルしているので非常に綺麗なビルです。最寄駅は京阪本線や大阪メトロ谷町線、御堂筋線など多様なアクセスができ便利です。西天満エリアは大阪地方裁判所があるため士業の方が非常に多くテナント様としてご入居されております。幸田ビルもしっかりとした企業様が多く入居しており、安心して業務に取り組むことが出来ます。幸田ビルは、企業様から多く寄せられるニーズのひとつ、ビル付帯設備の貸会議室があり商談やミーティングなどご使用頂け非常に便利です。エレベーターは3台あり通勤ラッシュ時や外出時にも便利で、忙しいビジネスワーカーの助けになります。トイレは男女別の洋式ウォシュレット付きで非常に清潔感があるデザイン性にも特化したトイレで来訪者からもとても喜ばれます。区画内は個別空調のため自由に制御ができ省エネにも繋がります。OAフロアーに変更も可能でニーズにあった様々なレイアウトが組めるのも魅力の一つです。1Fはコンビニで道路を挟むとスーパーがありお昼など非常に便利です。道路渡ると大阪の繁華街の1つ北新地エリアとなっており、帰りの飲食や会食などにも困ることはないです。繁華街が近くにあると賑やかなイメージを持たれる方も多くいらっしゃいますが道路幅も非常に広いため落ち着いた環境で業務を行うことができます。
- 立地
-




- 共用
-




- 専有
-




- BCP対応
-




- ステージ君
-





非公開とは?
賃料が「非公開」の物件は、オーナー様のご希望で賃料が非公開となっております。
賃料の目安についてはお気軽にお問い合わせください。
- 西天満の大型ビルの平均坪単価
- 12,439円





