西天満パークビル
印刷
物件写真
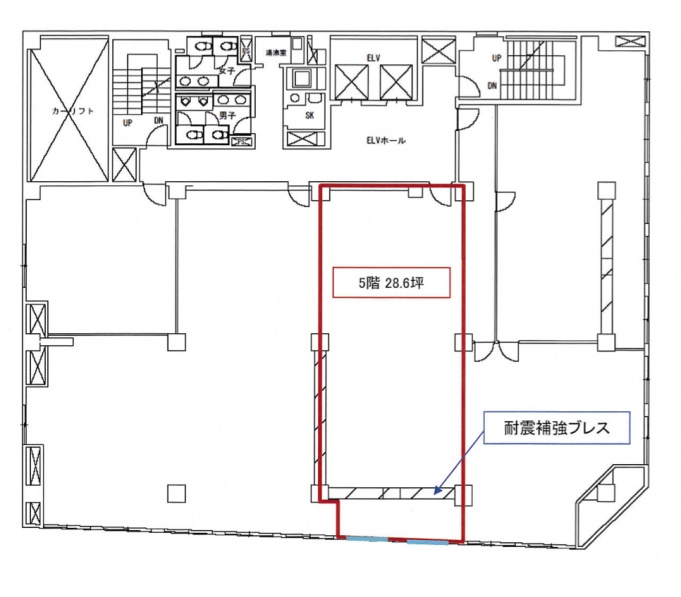
区画図(基準階)
物件概要
| 住所 | 大阪府大阪市北区西天満5-10-17 | 総階数 | 8階/地下1階 |
|---|---|---|---|
| 最寄駅 |
大阪メトロ谷町線南森町駅 徒歩4分 JR東西線大阪天満宮駅 徒歩6分 大阪メトロ堺筋線扇町駅 徒歩7分 |
延床面積/基準階面積 | 1632.00坪 / 131.00坪 |
| 建物構造 | 鉄骨鉄筋コンクリート造 | ||
| 竣工年月 | 1971年11月 | 備考 | アスベスト調査済み |
| リニューアル | 2008年9月 耐震工事 1月 共用部 | ||
基準階面積は共用部面積を含む場合がございます。
物件設備・条件
| エレベーター | あり 総台数 2基 |
トイレ | 男女別 ウォシュレットあり |
|---|---|---|---|
| 空調 | 個別空調 24時間使用可 | 正面玄関 開放時間 |
平 日 8 : 00 〜 21 : 00 土 曜 8 : 00 〜 21 : 00 日・祝 - : - 〜 - : - |
| 天井高 | 2400mm | 駐車場 | 駐車場あり 総台数 22台 |
| フロア | OAフロアあり 50mm | 駐輪場 | - |
| セキュリティー | 機械警備 | 貸会議室 | あり |
| BCP対応 | 新耐震基準適合 | リフレッシュルーム | あり |
| 立地 | - | 店舗 | - |
| ビル規模 | 大型ビル (貸床100坪〜200坪) |
建物種別 | オフィスビル |

- 総合評価
-




3.5
評価の見方
- 立地
- 駅からビルまでの利便性やコンビニや郵便局などの周辺環境で評価がついています。
- 共用
- ビルの共⽤部(エントランス、外壁などのリニューアル、セキュリー他)共⽤施設の充実度で評価がついています。
- 専有
- 貸室内の設備(天井⾼・OAフロア・個別空調など)で評価がついています。
- BCP対応
- 新耐震基準や地震時強い免震・制震構造・停電時に必要な⾮常⽤電源対応などで評価がついています。
- ステージ君
- オフィステージ コンシェルジュ ステージ君のズバリの評価になります。

西天満パークビルは、馬踏目地の外観が目を引くオフィスビルです。角地に建っていることから視認性はバツグン!初めて来社されるお客様でも見つけやすいビルとなっています。エントランスは白で統一されており、清潔感のある雰囲気。お客様にも好印象です!1971年に建てられた少々古いビルではあるものの、2008年に耐震工事が行われているため耐震基準はしっかりクリア!万が一地震がきても大丈夫です。「南森町駅」から歩いて3分という駅近な立地も嬉しいポイント!毎日の通勤がラクチンなのはもちろん、仕事で外出するときもとっても便利です。空調は、それぞれの部屋で自由に温度が設定できる個別空調。常に快適な室温の中で仕事に取り組むことができます。ビルは機械警備で守られているため、セキュリティー対策もバッチリです!
評価詳細を表示
- 立地
-




- 共用
-




- 専有
-




- BCP対応
-




- ステージ君
-





非公開とは?
賃料が「非公開」の物件は、オーナー様のご希望で賃料が非公開となっております。
賃料の目安についてはお気軽にお問い合わせください。
- 西天満の大型ビルの平均坪単価
- 12,439円






西天満パークビルは、1971年1月に竣工したオフィスビルです。大阪市北区西天満5-10-17にある鉄骨鉄筋コンクリート造地上8階、地下1階建のオフィスビルで、大阪メトロ谷町線・堺筋線「南森町駅」から徒歩3分の距離にあるため通勤や外出の際の利便性に優れています。外観は、グレーを基調としたタイル張りの外壁と大きめに設計された窓が特徴的です。交差点の角地に位置するため、視認性にも優れています。エントランスの内装は白を基調としており、植栽も置かれています。2008年9月には耐震工事を行っているため、万が一の災害時でも一定の安全性を確保しています。高層階のテナントからは、西天満公園や西天満の街並みをのぞむことができます。トイレは安心の男女別で、ウォシュレットも完備。空調は、個別空調です。ビルは機械警備で管理されており、セキュリティー面も万全です。