千代田ビル別館2号館
印刷
物件写真
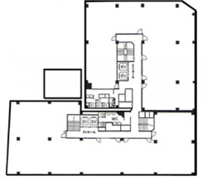
区画図(基準階)
物件概要
| 住所 | 大阪府大阪市北区西天満6-1-2 | 総階数 | 10階/地下1階 |
|---|---|---|---|
| 最寄駅 |
大阪メトロ谷町線南森町駅 徒歩5分 大阪メトロ谷町線東梅田駅 徒歩6分 JR東西線大阪天満宮駅 徒歩7分 |
延床面積/基準階面積 | 3248.00坪 / 217.00坪 |
| 建物構造 | 鉄骨鉄筋コンクリート造 | ||
| 竣工年月 | 1975年1月 | 備考 | - |
| リニューアル | - | ||
基準階面積は共用部面積を含む場合がございます。
物件設備・条件
| エレベーター | あり 総台数 2基 |
トイレ | 男女別 ウォシュレットあり |
|---|---|---|---|
| 空調 | 個別空調 24時間使用可 | 正面玄関 開放時間 |
- |
| 天井高 | - | 駐車場 | 駐車場あり |
| フロア | - | 駐輪場 | - |
| セキュリティー | 機械警備 常駐警備 |
貸会議室 | - |
| BCP対応 | - | リフレッシュルーム | なし |
| 立地 | 大通り沿い | 店舗 | - |
| ビル規模 | 大規模ビル (延床3,000坪以上or貸床200坪以上) |
建物種別 | オフィスビル |

- 総合評価
-




2.5
評価の見方
- 立地
- 駅からビルまでの利便性やコンビニや郵便局などの周辺環境で評価がついています。
- 共用
- ビルの共⽤部(エントランス、外壁などのリニューアル、セキュリー他)共⽤施設の充実度で評価がついています。
- 専有
- 貸室内の設備(天井⾼・OAフロア・個別空調など)で評価がついています。
- BCP対応
- 新耐震基準や地震時強い免震・制震構造・停電時に必要な⾮常⽤電源対応などで評価がついています。
- ステージ君
- オフィステージ コンシェルジュ ステージ君のズバリの評価になります。

「総合評価」は「立地」「共有」「専有」「BCP対応」「ステージ君」の評価の総合評価になります。
内容の詳細は「評価詳細を表示」からご確認ください。
また、「評価の見方」から各個別評価の概要を見ることができます。
評価詳細を表示
- 立地
-




- 共用
-




- 専有
-




- BCP対応
-




- ステージ君
-





非公開とは?
賃料が「非公開」の物件は、オーナー様のご希望で賃料が非公開となっております。
賃料の目安についてはお気軽にお問い合わせください。
- 西天満の大規模ビルの平均坪単価
- 11,934円






千代田ビル別館2号館は、1975年1月に竣工したオフィスビルです。大阪市北区西天満6-1-2にあり、鉄骨鉄筋コンクリート造地上10階建のオフィスビルとなっています。最寄駅である大阪メトロ堺筋線・谷町線「南森町駅」から徒歩2分の距離に位置しており、通勤や外出の際の利便性に優れています。ビルの外観は、グレーの外壁と各階で横一列に張り巡らされた窓が特徴的です。エレベーターは4基設置されているため、時間帯に左右されずスムーズに利用できます。光ファイバーは引込済。共用部には男女別のトイレが設けられています。空調は個別空調が導入されており、各オフィスで細かな温度設定が可能です。24時間対応の機械警備によって管理されていることから、セキュリティー面も万全です。