ニッセイ天王寺ビル
印刷
物件写真
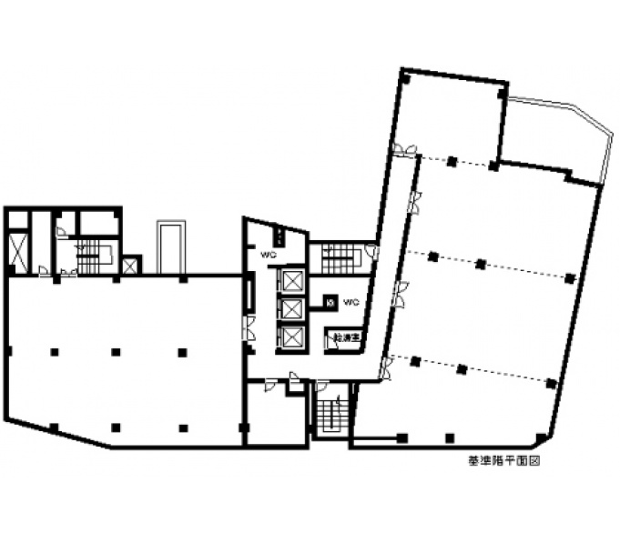
区画図(基準階)
物件概要
| 住所 | 大阪府大阪市天王寺区悲田院町8-22 | 総階数 | 8階/地下1階 |
|---|---|---|---|
| 最寄駅 |
JR大阪環状線天王寺駅 徒歩1分 近鉄南大阪線大阪阿部野橋駅 徒歩4分 阪堺電気軌道上町線天王寺駅前駅 徒歩5分 |
延床面積/基準階面積 | 3323.26坪 / 278.00坪 |
| 建物構造 | 鉄骨鉄筋コンクリート造 | ||
| 竣工年月 | 1972年 | 備考 | - |
| リニューアル | 2004年3月 リニューアル 1972年1月 増築 | ||
基準階面積は共用部面積を含む場合がございます。
物件設備・条件
| エレベーター | あり 総台数 3基 うち荷物用EV 1基 |
トイレ | 男女別 ウォシュレットなし |
|---|---|---|---|
| 空調 | セントラル空調 補助空調あり |
正面玄関 開放時間 |
平 日 8 : 00 〜 20 : 00 土 曜 8 : 00 〜 20 : 00 日・祝 - : - 〜 - : - |
| 天井高 | 2640mm | 駐車場 | 駐車場あり 総台数 28台 |
| フロア | OAフロアあり 60mm | 駐輪場 | - |
| セキュリティー | 機械警備 | 貸会議室 | - |
| BCP対応 | - | リフレッシュルーム | なし |
| 立地 | 駅3分以内 大通り沿い |
店舗 | - |
| ビル規模 | 大規模ビル (延床3,000坪以上or貸床200坪以上) |
建物種別 | オフィスビル |

- 総合評価
-




3
評価の見方
- 立地
- 駅からビルまでの利便性やコンビニや郵便局などの周辺環境で評価がついています。
- 共用
- ビルの共⽤部(エントランス、外壁などのリニューアル、セキュリー他)共⽤施設の充実度で評価がついています。
- 専有
- 貸室内の設備(天井⾼・OAフロア・個別空調など)で評価がついています。
- BCP対応
- 新耐震基準や地震時強い免震・制震構造・停電時に必要な⾮常⽤電源対応などで評価がついています。
- ステージ君
- オフィステージ コンシェルジュ ステージ君のズバリの評価になります。

ニッセイ天王寺ビルは、存在感のある佇まいが目を引くオフィスビルです。玉造筋沿いの角地に建っていることから視認性はバツグン!初めて来社されるお客様でも見つけやすいビルとなっています。エントランスの壁は大理石調で高級感があり、お客様にも好印象です。1972年に建てられたビルではあるものの、2004年にリニューアル工事が行われたため古さをまったく感じさせません。「天王寺駅」から歩いて2分という駅近な立地も嬉しいポイント!毎日の通勤がラクチンなのはもちろん、仕事で外出するときにもとっても便利です。オフィスの床はOAフロアに対応しており、たくさんのOA機器を扱う職場でも配線が邪魔になることはありません。ビルは機械警備によって守られているため、いつでも安心して仕事に取り組むことができます!
評価詳細を表示
- 立地
-




- 共用
-




- 専有
-




- BCP対応
-




- ステージ君
-





非公開とは?
賃料が「非公開」の物件は、オーナー様のご希望で賃料が非公開となっております。
賃料の目安についてはお気軽にお問い合わせください。
- 天王寺・阿倍野の大規模ビルの平均坪単価
- 12,970円






ニッセイ天王寺ビルは、1972年1月に竣工したオフィスビルです。大阪市天王寺区悲田院町8-22にある鉄骨鉄筋コンクリート造地上8階、地下1階、塔屋3階建のオフィスビルで、JR阪和線・大阪環状線・関西本線「天王寺駅」から徒歩2分の距離にあります。ビルの外観は、ベージュの外壁が特徴的です。エントランスの内装は、白を基調としています。ビル内にはエレベーターが2基完備され、混雑しがちな朝の通勤時にもスムーズに利用できます。室内はOAフロア対応で、煩雑になりがちなOA機器の配線や電話線を床下に収納することが可能です。天井高は2,700mmです。各階共用部には、男女別トイレや給湯室を完備。空調は、セントラル空調です。ビルは機械警備によって管理されており、セキュリティー面も万全です。