アーバンリサーチビル(旧)りそな京町堀ビル

印刷
  • アーバンリサーチビル(旧)りそな京町堀ビル
  • 正面玄関
  • エントランス
  • EVホール(1階)
  • EVホール(基準階)
  • 廊下
  • トイレ1
  • トイレ2
  • 給湯室
  • 室内(空間1)
  • 室内(空間2)
  • 室内(空間3)
  • 室内(その他1)
  • 室内(その他2)
  • 室内エアコン(本体)
  • 室内エアコン(コントローラー)
  • 郵便受け
  • 駐車場
  • 駐車場入口
  • 駐車場寸法
  • 駐車場その他
  • 前面道路1
  • 前面道路2
  • 外観2
  • 区画図
物件写真
  • アーバンリサーチビル(旧)りそな京町堀ビル
  • 正面玄関
  • エントランス
  • EVホール(1階)
  • EVホール(基準階)
  • 廊下
  • トイレ1
  • トイレ2
  • 給湯室
  • 室内(空間1)
  • 室内(空間2)
  • 室内(空間3)
  • 室内(その他1)
  • 室内(その他2)
  • 室内エアコン(本体)
  • 室内エアコン(コントローラー)
  • 郵便受け
  • 駐車場
  • 駐車場入口
  • 駐車場寸法
  • 駐車場その他
  • 前面道路1
  • 前面道路2
  • 外観2
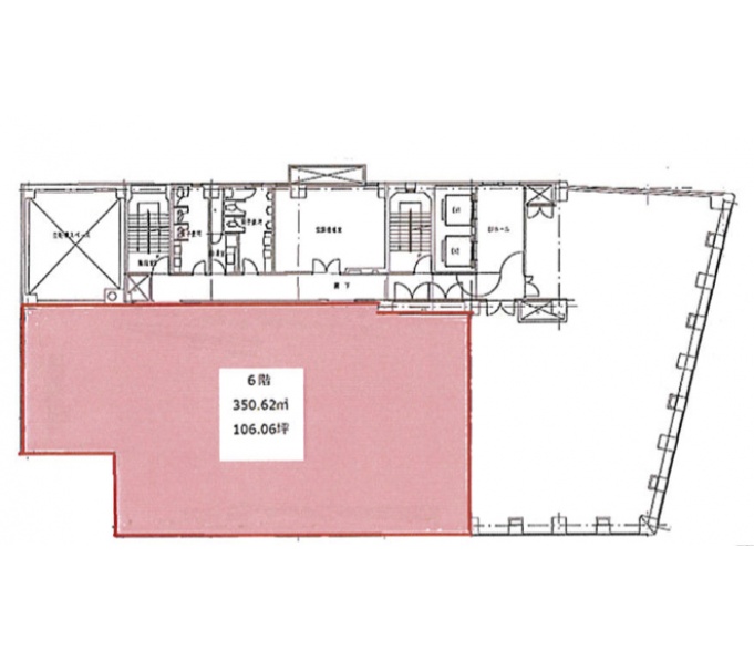
区画図(基準階)
  • 区画図

物件概要

住所 大阪府大阪市西区京町堀1-6-4 総階数 10階/地下1階
最寄駅 大阪メトロ四つ橋線肥後橋駅 徒歩4分
大阪メトロ御堂筋線淀屋橋駅 徒歩5分
京阪本線淀屋橋駅 徒歩6分
延床面積/基準階面積 2693.42坪 / 183.00坪
建物構造 鉄骨鉄筋コンクリート造
竣工年月 1989年11月 備考 -
リニューアル -

基準階面積は共用部面積を含む場合がございます。

物件設備・条件

エレベーター あり
総台数 2基
うち荷物用EV 1基
トイレ 男女別
ウォシュレットあり
空調 個別空調 24時間使用可 正面玄関
開放時間
平 日 7 : 00 〜 19 : 00
土 曜 - : - 〜 - : -
日・祝 - : - 〜 - : -
天井高 2550mm 駐車場 駐車場あり
フロア OAフロアあり 50mm 駐輪場 駐輪場あり
セキュリティー 機械警備 貸会議室 -
BCP対応 新耐震基準適合 リフレッシュルーム なし
立地 大通り沿い 店舗 -
ビル規模 大型ビル
(貸床100坪〜200坪)
建物種別 オフィスビル
総合評価
3.5

評価の見方

立地
駅からビルまでの利便性やコンビニや郵便局などの周辺環境で評価がついています。
共用
ビルの共⽤部(エントランス、外壁などのリニューアル、セキュリー他)共⽤施設の充実度で評価がついています。
専有
貸室内の設備(天井⾼・OAフロア・個別空調など)で評価がついています。
BCP対応
新耐震基準や地震時強い免震・制震構造・停電時に必要な⾮常⽤電源対応などで評価がついています。
ステージ君
オフィステージ コンシェルジュ ステージ君のズバリの評価になります。

アーバンリサーチビル (旧)りそな京町堀ビルは、重厚感のある佇まいが目を引くオフィスビルです。歩いて4分ほどの距離には、「肥後橋駅」があります。1989年に建てられたビルなので、耐震基準はしっかりクリア!万が一地震がきても安心です。ビルには2つのエレベーターがあるため、朝の通勤ラッシュ時でも焦る必要はありません。インターネット回線は、光ファイバー!高速通信でストレスのない快適なネット環境が実現できます。床はOAフロアで配線を床下に収納できることから、たくさんのOA機器を扱う職場でも配線が邪魔になりません。オフィスレイアウトも自由自在です!空調は自由に温度が調節できる個別空調。体調や気温に合わせて自由に温度管理ができるので、仕事中は常に快適です!ビルは機械警備によって守られていることから、いつでも安心して仕事に取り組めます!

評価詳細を表示
立地
共用
専有
BCP対応
ステージ君

アーバンリサーチビル (旧)りそな京町堀ビルは、1989年11月に竣工したオフィスビルです。大阪市西区京町堀1-6-4にある鉄骨鉄筋コンクリート造地上10階、地下1階、塔屋2階建のビルで、大阪メトロ四つ橋線「肥後橋駅」から徒歩4分の距離にあります。ビルの外観は、明るい赤茶色の外壁が特徴的です。エントランスの内装は、白とグレーを基調としています。ビル内にはエレベーターが2基完備され、朝の通勤ラッシュ時でもスムーズに利用することが可能です。室内はOAフロア対応のほか、光ファイバー引込済です。天井高は、2,550mm。各フロアの共用部には、ウォシュレット付き男女別トイレと給湯室が完備されています。空調は個別空調で、細かな温度設定が可能。正面玄関の開放時間は平日8時~19時までで、時間外はセキュリティーカードにより24時間入退館可能です。ビルは機械警備によって管理されているため、セキュリティー面も安心です。

非公開とは?

賃料が「非公開」の物件は、オーナー様のご希望で賃料が非公開となっております。
賃料の目安についてはお気軽にお問い合わせください。

肥後橋の大型ビルの平均坪単価
8,480円

おすすめ物件

面積が近い エリアが同じ 最寄駅が同じ ビルの規模が近い